Kontor, Gustav Adolfs torg 12, Centrum , Malmö
- 361 m²
Central kontorslokal på 360 m² vid Gustav Adolfs torg
Om lokalen
- Lokaltyp
- Kontor
- Total yta
- 361 m²
- Adress
- Gustav Adolfs torg 12
- Område
- Centrum
- Kommun
- Malmö kommun
- Objektsnummer
- 41993209
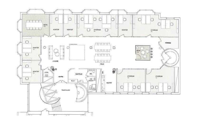
Beskrivning
Denna kontorslokal på 360 m² ligger på våning 5 vid Gustav Adolfs torg och erbjuder en ljus, välplanerad miljö med centralt läge.
Lokalen erbjuder:
5 privata kontor för ostört arbete
Öppet kontorslandskap som främjar samarbete
Stort konferensrum för möten och presentationer
Fullt utrustat kök för gemensamma måltider och pauser
Toalett och badrum för extra komfort
Tyst rum för fokus och koncentration
De stora fönstren släpper in gott om dagsljus och ger en härlig utsikt över stadens puls. Här sitter du mitt i city med närhet till butiker, restauranger och kommunikationer.
Adress: Gustav Adolfs torg, Malmö
Kontakta oss på: 0732-400008 för mer information eller för att boka en visning!






















