Utbildningslokal, Blekingegatan 11, Södermalm, Stockholm
- 660 m²
- Enligt överenskommelse
Förskolelokal med stor potential – Blekingegatan 11, 660 kvm
Om lokalen
- Lokaltyper
- Utbildningslokal / Kontor / Vårdlokal
- Total yta
- 660 m²
- Adress
- Blekingegatan 11
- Område
- Södermalm
- Kommun
- Stockholms kommun
- Tillträde
- Enligt överenskommelse
- Ingår i hyra
- Hyra lämnas ut på förfrågan.
- Objektsnummer
- 41992235
Beskrivning
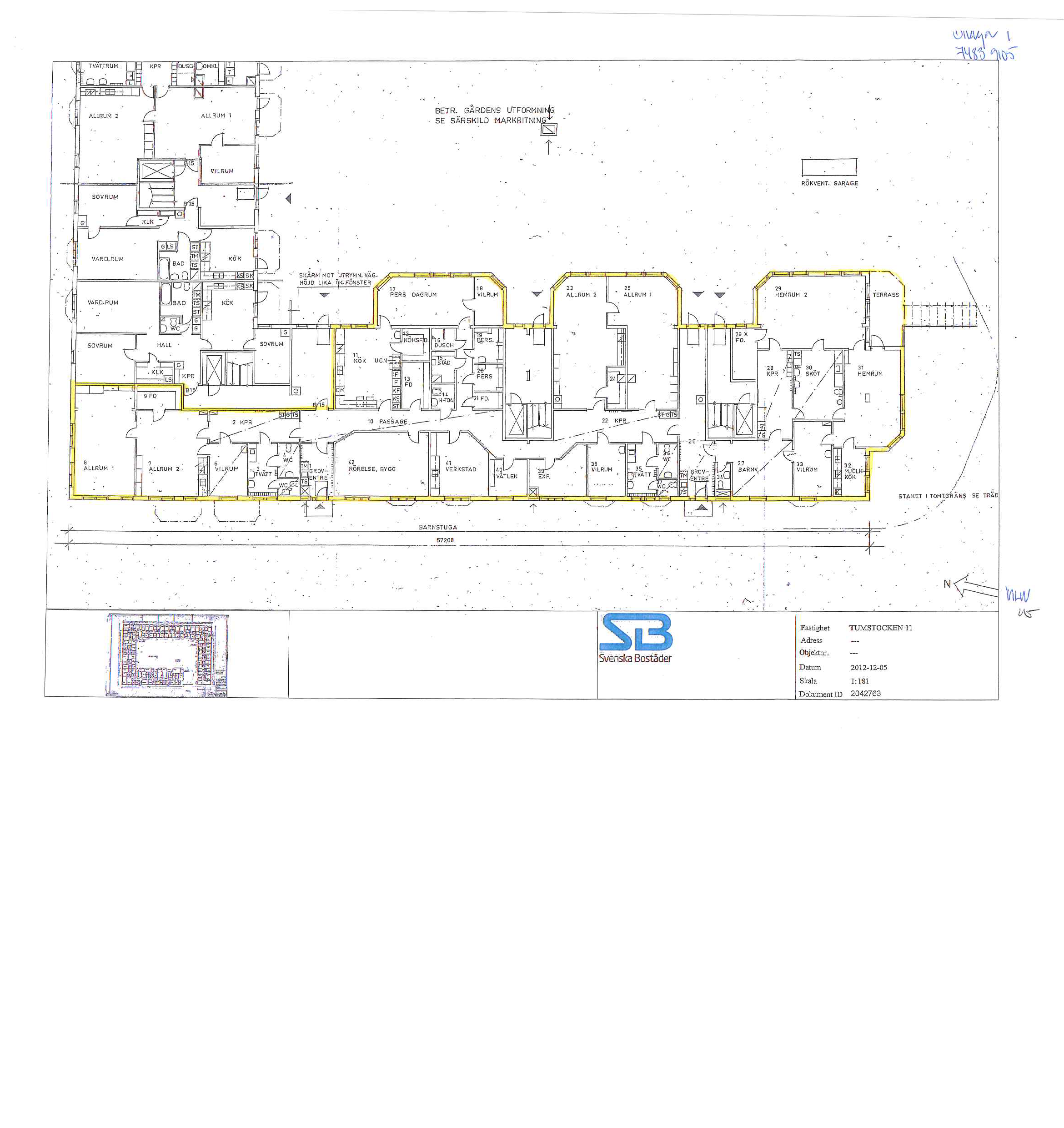
Letar ni efter en rymlig lokal med utmärkta förutsättningar för förskoleverksamhet? På Blekingegatan 11 finns nu en funktionell lokal på 660 kvm, perfekt anpassad för förskola eller liknande verksamhet.
Lokalen erbjuder:
- Flera stora rum som ger gott om plats för olika verksamhetsdelar och grupper.
- Många toaletter, både för barn och vuxna,
- Förberedningskök med goda arbetsytor.
- Rum för vattenlek, en uppskattad funktion för barnens lek och utveckling.
- Tillhörande gård,
Lokalen är i okej skick men har stor potential. Med en enklare ytskiktsuppfräschning kan ni skapa moderna, trivsamma och inspirerande miljöer som uppmuntrar både lärande och lek.
Det centrala läget på Blekingegatan ger närhet till kommunikationer och service, vilket gör vardagen smidigare för både personal och vårdnadshavare.
Sammanfattning:
Adress: Blekingegatan 11
Yta: 660 kvm
Omsorgsfullt planerad för förskoleverksamhet
Tillhörande gård för utevistelse och lek
Stor utvecklingspotential
En lokal som väntar på att fyllas med liv, lek och lärande!
Omgivning
Det centrala läget på Blekingegatan ger närhet till kommunikationer och service, vilket gör vardagen smidigare för både personal och vårdnadshavare.
Planlösning
- Flera stora rum som ger gott om plats för olika verksamhetsdelar och grupper.
- Många toaletter, både för barn och vuxna,
- Förberedningskök med goda arbetsytor.
- Rum för vattenlek, en uppskattad funktion för barnens lek och utveckling.
- Tillhörande gård,











