Arvid Mörnes väg 1, Blackeberg, Bromma
Svenska Bostäder
Annons max74 m²
Hyra: 1624 kr/m²/år
Tillträde: Enligt överenskommelse
Kontor/Showroom 74 m² – Blackeberg / Arvid Mörnes väg
Ljus hörnlokal i markplan med stora fönsterpartier och två egna entréer. Här får ni ett trevligt läge nära Blackebergs centrum – perfekt för det lilla kontoret, showroomet eller en butik med fokus på visning och möten.
Lokalen omfattar 74 kvm med månadshyra 10 013 kr (årshyra 120 155 kr). Tillträde enligt överenskommelse. Belägen i bottenvåning med smidig access från gatan. Kontakt: Mats Odenlid.
Området erbjuder 5 minuters gång till Blackebergs tunnelbanestation och centrum med service, caféer och vardagsutbud. God tillgänglighet för kunder och medarbetare, parkering sker på gatan i direkt anslutning.
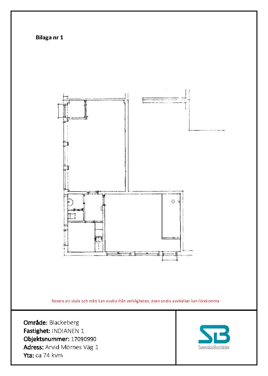
Planlösningen består av två rymliga kontorsrum/showrooms, pentry samt WC. Nyrenoverade ytskikt ger ett fräscht intryck och arbetsplatser för cirka 4–5 personer ryms bekvämt. Egen ingång, bredband och gallerfönster bidrar till funktion och trygghet. Lokalen lämpar sig för kontor/showroom eller butik utan livsmedel eller frisörverksamhet.
Boka visning eller skicka en intresseanmälan till Mats Odenlid för mer information.
Vissa bilder i annonsen kan vara digitalt redigerade för att visa lokalens potential - faktisk inredning och utseende kan skilja sig från bildmaterialet.
Lokaltyper
Typ: Kontor, Butikslokal, Övrig lokal
Minsta storlek: 74 m²
Största storlek: 74 m²
Antal rum: 3
Våningsplan: BV
Villkor lokal
Hyra: 1624 kr/m²/år
Tillträde: Enligt överenskommelse
Omgivning
Området erbjuder 5 minuters gång till Blackebergs tunnelbanestation och centrum med service, caféer och vardagsutbud. God tillgänglighet för kunder och medarbetare, parkering sker på gatan i direkt anslutning.
Närservice: Området erbjuder 5 minuters gång till Blackebergs tunnelbanestation och centrum med service, caféer och vardagsutbud.
Företag i närheten: Området erbjuder 5 minuters gång till Blackebergs tunnelbanestation och centrum med service, caféer och vardagsutbud.
Vägbeskrivning: God tillgänglighet för kunder och medarbetare, parkering sker på gatan i direkt anslutning.
Planlösning
Planlösningen består av två rymliga kontorsrum/showrooms, pentry samt WC. Nyrenoverade ytskikt ger ett fräscht intryck och arbetsplatser för cirka 4–5 personer ryms bekvämt. Egen ingång, bredband och gallerfönster bidrar till funktion och trygghet. Lokalen lämpar sig för kontor/showroom eller butik utan livsmedel eller frisörverksamhet.
Annonsinformation
Publicerad: 2026-03-25
Objektsnummer: 41997735







