Butikslokal, Kosterögatan 15, Östra hamnen, Malmö
- 357 m²
- Omgående
Representativ lokal för lager/showroom i anrika Tobaksfabriken, Malmö
Om lokalen
- Lokaltyper
- Butikslokal / Kontor / Lagerlokal / Övrig lokal
- Total yta
- 357 m²
- Adress
- Kosterögatan 15
- Område
- Östra hamnen
- Kommun
- Malmö kommun
- Byggår
- 1962
- Hiss
- Ja
- Våning
- 1 av 2
- Tillträde
- Omgående
- Objektsnummer
- 41993234
Beskrivning
Representativ lokal för lager/showroom i anrika Tobaksfabriken, Malmö
Välkommen till Tobaksfabriken – en historisk och karaktärsfull fastighet där modern funktion möter industriell charm, perfekt för företag som söker kombinerade ytor för showroom, lager och kontor i en inspirerande miljö.
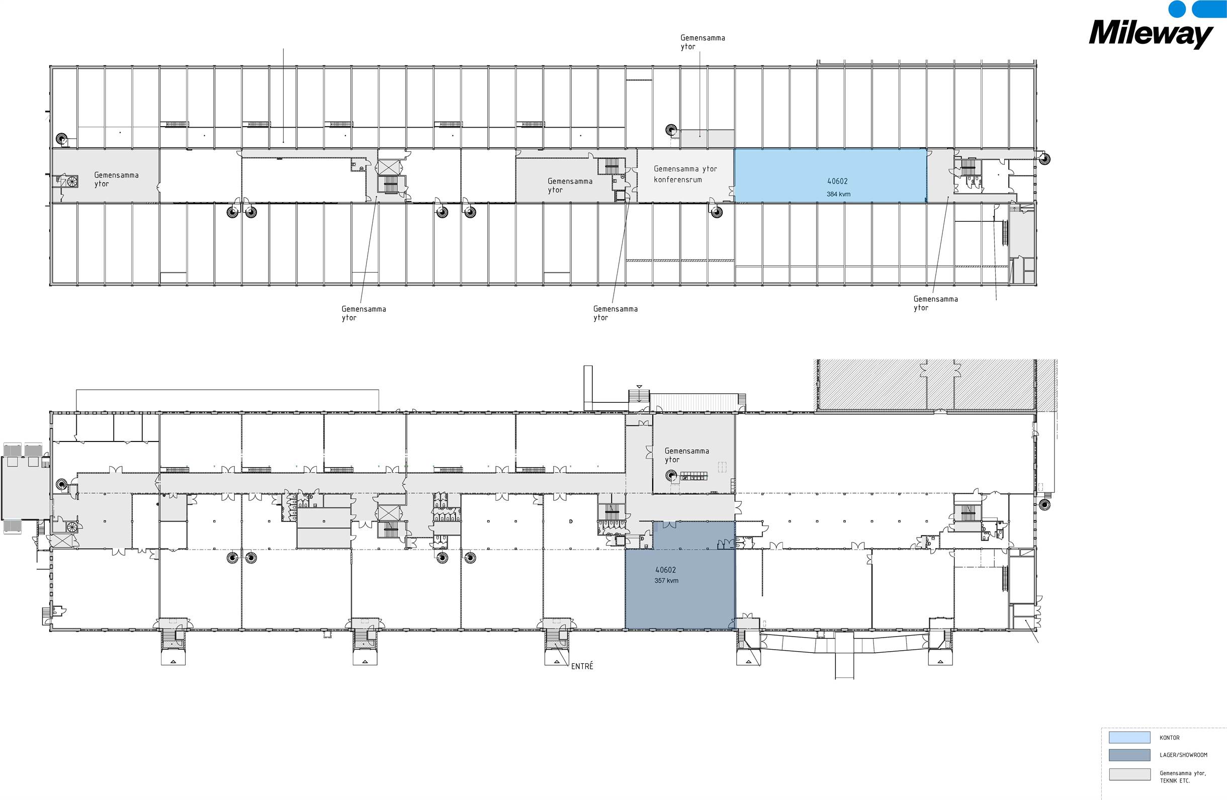
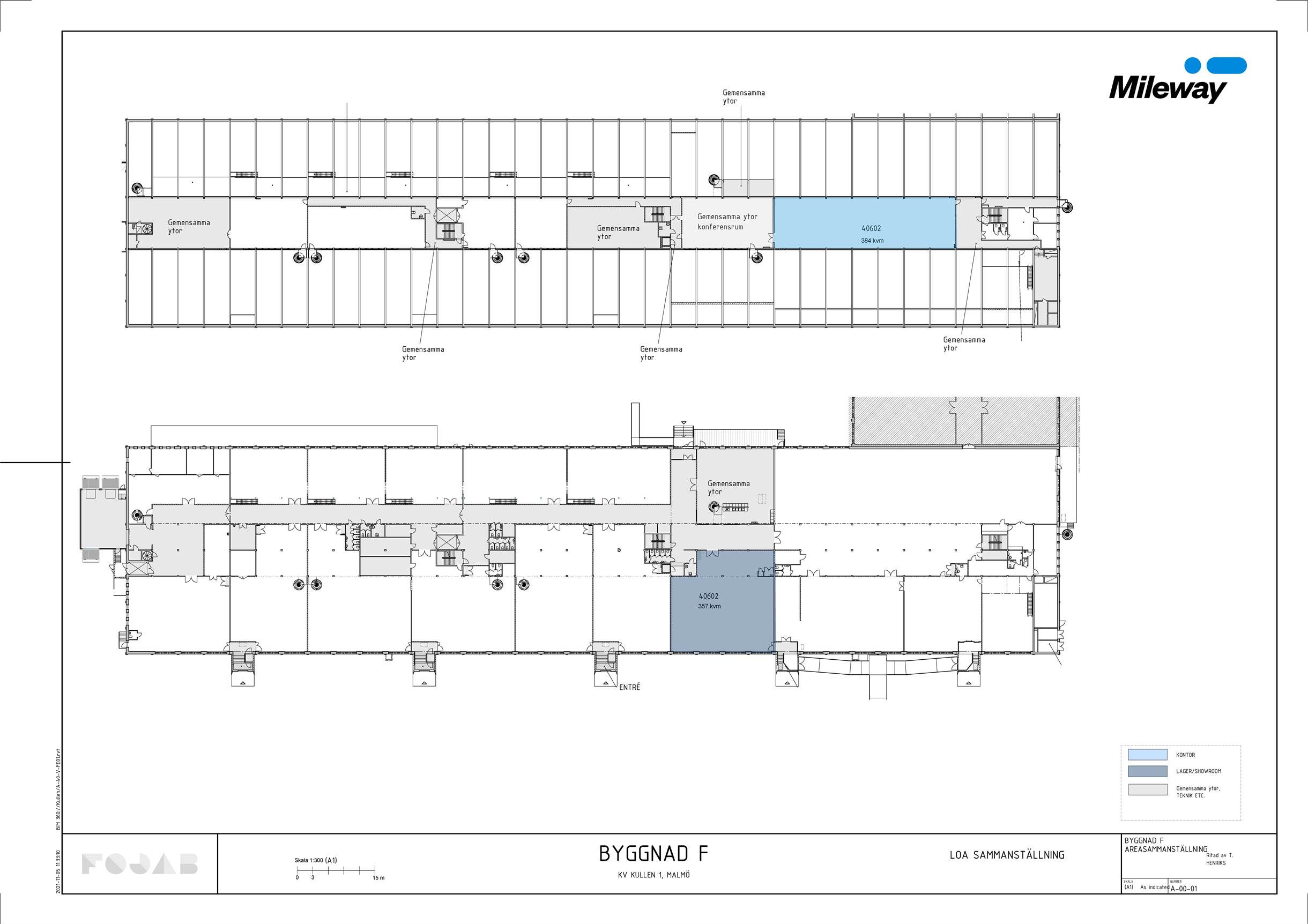
Detta lager/showroom om 357 kvm erbjuder en öppen planlösning med generös takhöjd på cirka 5 meter, som skapar rymd och ger plats för både utställning och funktionell lagerhantering. Kontorsdel om 384 kvm finns tillgängligt att hyra till vid behov.
Två separata entréer – en representativ huvudentré mot Kosterögatan samt en personalingång på baksidan – bidrar till en smidig logistik och ett välkomnande intryck för både kunder och personal.
Utrustning och standard:
• Energibesparande LED-belysning
• Förberett för WiFi och larm
• Omgående tillträde möjligt
• Ställage ingår om så önskas
Gemensamma faciliteter i fastigheten:
• Tre lasthus och markhiss via gemensam servicegång
• Moderna personalutrymmen: WC, omklädningsrum/dusch, stort pausrum med kök och terrass
• Fem mötesrum fritt att nyttja för hyresgäster
• Besöksparkering för bil och cykel
• Kommande tillgång till garage, cykelrum och elbilsladdning
Området:Östra Hamnen är ett utbrett och väletablerat industriområde på centralt läge vid stadens norra infartsleder, endast 3 km norr om centrala Malmö. Här finns goda transportförbindelser via Västkustvägen vidare till Inre Ringvägen, E6/E20 och E22. Området präglas av lättindustri samt lager- och logistikverksamheter och det erbjuds ett enklare serviceutbud av handel och lunchrestauranger. Det finns goda kollektivtrafikförbindelser med buss till centrala Malmö.
Omgivning
Östra Hamnen är ett utbrett och väletablerat industriområde på centralt läge vid stadens norra infartsleder, endast 3 kilometer norr om centrala Malmö. Här finns goda transportförbindelser via Västkustvägen vidare till Inre Ringvägen, E6/E20 och E22. Området präglas av lättindustri samt lager- och logistikverksamheter och det erbjuds ett enklare serviceutbud av handel och lunchrestauranger. Det finns goda kollektivtrafikförbindelser med buss till centrala Malmö.
Kommunikationer
Goda kollektivtrafikförbindelser med buss till centrala Malmö, stadsbuss 32, närmsta hållplats Kosterögatan
Planlösning
Se bilder/PDF.
Parkering
Fri parkering
Service
Enklare serviceutbud av handel och lunchrestauranger i närområdet
Vägbeskrivning
Direkt anslutning till Västkustvägen som leder till Inre Ringvägen, E6/E20 och E22
Skyltläge
Bra exponering av skyltläge mot Kosterögatan
Närliggande företag
Cargobike of Sweden, Ventil studios, Beijer Electronics, Levtek, Konkral, INR Försäljning Sverige AB och Exakta Print AB



















