Kontor, Återbruksvägen 7A, 1079, Örebro
- 35–108 m²
- Enligt överenskommelse
Liten, mellan eller stor? Välj ytan som passar er bäst!
Om lokalen
- Lokaltyp
- Kontor
- Total yta
- 35–108 m²
- Adress
- Återbruksvägen 7A
- Område
- 1079
- Kommun
- Örebro kommun
- Byggår
- 1960
- Renoveringsår
- 2023
- Hiss
- Ja
- Våning
- BV
- Tillträde
- Enligt överenskommelse
- Objektsnummer
- 41994516
Beskrivning
Stenvalvet erbjuder nu en flexibel lokal på Återbruksvägen 7A!
Lokalen kan hyras i sin helhet om 108 kvm, eller anpassas till mindre lokaler om 35 eller 73 kvm. Den är lättåtkomlig på bottenvåningen och har stora fönster som skapar en ljus och trivsam miljö. Här finns rymliga kontorsrum, mötesrum och lunchrum med pentry.
Byggnaden är utrustad med fiber, och i hyran ingår både värme och vatten.
- Gott om parkeringsmöjligheter nära entrén. Parkeringsplatser finns att hyra för 300 kr per månad och laddplatser finns i närheten.
- Bra kommunikationer med busslinje 3 och 4 samt fina cykelvägar till och från Örebro centrum.
- Finns möjlighet med tidigare inflytt!
- Närhet till ICA Nära Eko, bensinstation, restaurang, återvinningscentral och hud- och hårvårdssalong.
Fastigheten ligger i ett område som kombinerar liv och lugn, med äldre- och gruppboenden, skolor, företag och bostäder. I närheten finns även ett nyanlagt vattenområde och ett mysigt promenadstråk som är perfekt för lunchpromenaden!
Välkommen att kontakta oss!
Omgivning
Fastigheten Athena 19 består av flera byggnader som omges av en grönskande park. I parkens mitt finner du Mellringe herrgård, en historisk pärla från 1600-talet.
Området kombinerar både liv och lugn med verksamheter inom utbildning, vård, äldreomsorg och idrott. I närheten finns även ett nyanlagt vattenområde och ett mysigt promenadstråk som ytterligare bidrar till den avkopplande atmosfären.
Framtidsplanerna för området inkluderar byggnation av flertalet nya bostäder och ett större idrottsområde. Dessutom övervägs en utbyggnad av BRT-systemet, vilket skulle innebära snabbare busstrafik till stora delar av Örebro, tätare avgångar och större punktlighet.
Kommunikationer
Det är lätt att ta sig till området oavsett färdmedel. Från motorvägen når du adressen på mindre än 5 minuter. Busslinje 3 och 4 passerar området, och det finns cykelvägar hela vägen till och från Örebro centrum.
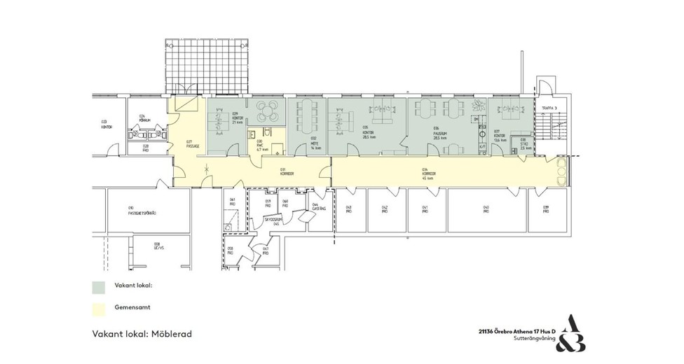
Planlösning
Lokalen erbjuder:
- Rymliga kontorsrum
- Mötesrum
- Samtalsrum
- Lunchrum med pentry
- Städförråd
- Gemensam toalett och entré med annan hyresgäst
Parkering
Det finns gott om parkeringsmöjligheter i området. Bilparkering finns i nära anslutning till entrén, vilket gör det bekvämt för både besökare och anställda att enkelt komma till lokalen.
Service
I närområdet finns ICA Nära Eko med postombud, en bensinstation, restaurang, återvinningscentral samt en hud- och hårvårdssalong som även erbjuder kroppsbehandlingar. Inom cirka 5–10 minuter med bil når man Boglundsängen eller Västhaga, där det finns ett brett utbud av butiker som ICA Maxi, Rusta, Clas Ohlson och Systembolaget, samt flera restauranger och bensinstationer.








