Stortorget 13, Malmö City, CBD, Malmö
Sundsstaden AB
Annons plus338 m²
Hyra: Ej angiven
Tillträde: Ej angivet
Nytt kontor. Ny energi. Ny inspiration.
I samarbete med Addentity Interiör förbereder vi denna fantastiska lokal för ny hyresgäst. Lokalen ska byggas om till moderna kontorsytor med plats för ca 20 arbetsplatser i kreativ miljö. En lokal utöver det vanliga!
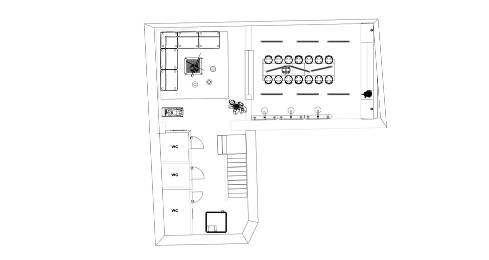
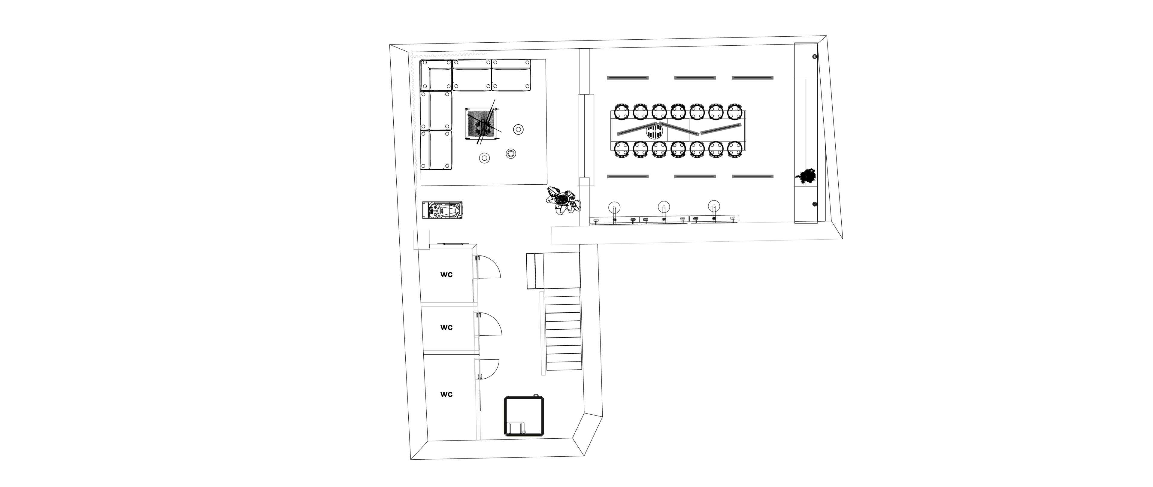
Planlösningen fördelar sig över totalt 338 kvm med fantastik rymd och ca 4m i takhöjd. Härligt ljusinsläpp från de stora partierna mot Stortorget och stora fönster in mot gården.
När man kliver in i lokalen hamnar man i en trevlig entré med plats för reception alternativt lounge med soffgrupp och touchdown-platser. Två stycken kontorslandskap med plats för 8 respektive 12 arbetsplatser, två rejäla mötesrum samt WC och kaffe/vattenstation. En trappa ner planeras för loungeytor och stort kök samt tre st WC. Perfekt ställe att hänga, spela pingis och flipper eller ordna afterwork! Lokalen är såklart anpassningsbar om ni har andra önskemål lokalens utformning.
Gott klimat i hela lokalen med AC i samtliga utrymmen.
Tillträde ca 4-6 månader från tecknat hyresavtal.
Ring Nils och boka en visning idag! 0709-753434
Lokaltyper
Typ: Kontor
Minsta storlek: 338 m²
Största storlek: 338 m²
Annonsinformation
Publicerad: 2024-07-08
Objektsnummer: 41977817











