Kontor, Sjögatan 6G, Örnsköldsvik

  • 385–1 035 m²
  • Enligt överenskommelse

Toppmoderna kontorslokaler med terrass och havsutsikt från Sjögatan

Om lokalen

Lokaltyper
Kontor / Lagerlokal
Total yta
385–1 035 m²
Adress
Sjögatan 6G
Kommun
Örnsköldsviks kommun
Byggår
1969
Hiss
Ja
Våning
1
Tillträde
Enligt överenskommelse
Objektsnummer
41996601

Beskrivning

Dessa toppmoderna kontorslokaler utgör en unik möjlighet att hyra ett drömkontor med egna terrasser och havsutsikt från parkettplats på Sjögatan. Lokalen består i dagsläget av mycket fräscha ytor som färdigställts för en befintlig hyresgäst, vilken kan tänka sig att avträda delar av de förhyrda ytorna, upp till sammanlagt c:a 1 035 kvm.



Lokalerna är genomgående med stora fönsterpartier såväl i söderläge, mot havet, som mot Sjögatan i norr och som tar tillvara och sprider ljuset i lokalerna. Och med de egna takterrasserna finns här med andra ord ett fantastiskt tillfälle att tillträda kontorslokaler som har det där lilla extra, långt utöver det vanliga, som gjord för att trivas i tillsammans med kollegor och visa upp för besökande kunder.



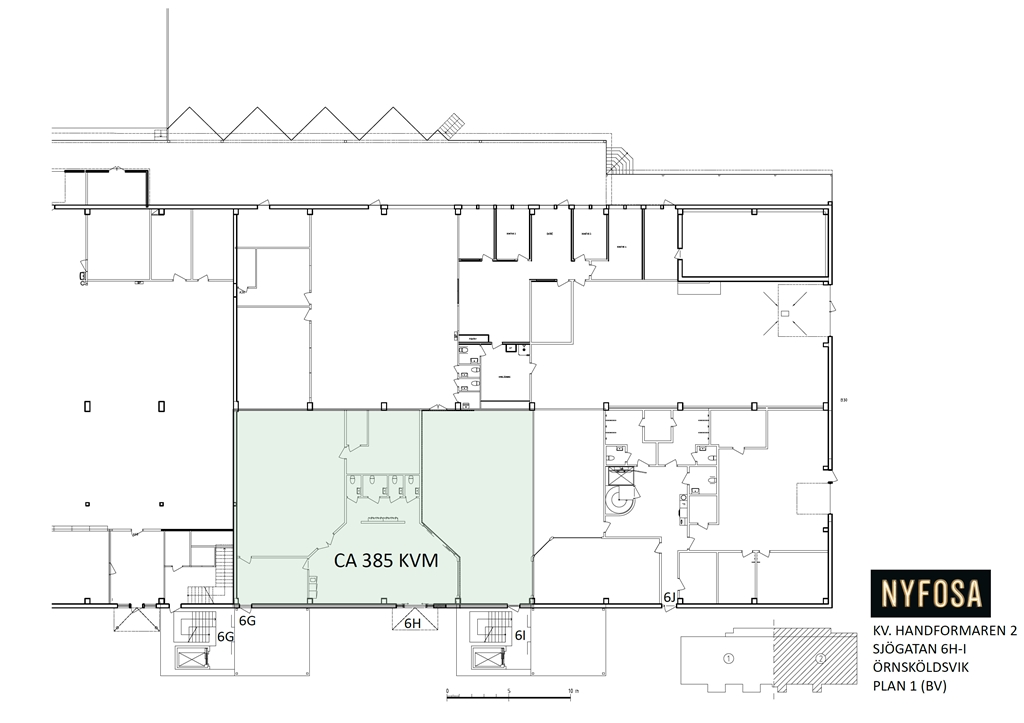
De bifogade planritningarna visar lokalernas befintliga planlösning, och då väggarna i lokalerna ej är bärande så finns mycket goda möjligheter att anpassa dessa efter behov. Välkommen att kontakta oss för visning och en presentation av de möjligheter vi har att hjälpa er med att skapa den ideala lokalen som passar er specifika verksamhet och behov.

Omgivning

Fastighetens närmaste omgivningar utgörs av en blandning av kontors- och lättare industrifastigheter.

Kommunikationer

Fastigheten nås väldigt enkelt genom sitt lättillgängliga läge på Sjögatan intill korsningen med Bromsvägen. Endast ca 200 meter från fastigheten finns busshållplats Gammelängsvägen, som trafikeras av flera olika busslinjer: 402 (Bodum-Centrum-Själevad), 404 & 405 (Centrum-Sjukhuset Vintergatan) .

Planlösning

Ytorna i lokalen om sammanlagt c:a 1 035 kvm fördelar sig över två våningsplan, plan 1 (BV) och plan 2, och utgörs till övervägande delar av kontorsytor, där planlösningen är flexibel och medger uppdelning av ytorna till mindre lokaler från c:a 385 kvm och uppåt.

Parkering

Det finns gott om parkeringsplatser med motorvärmare att hyra i direkt anslutning till fastigheten.

Service

I företagsområdet vid Sjögatan finns gott om företag som erbjuder en mängd olika tjänster och service till andra företag, och till centrum, med all önskvärd service, tar det bara några minuter med bil.

Övrigt

Fastigheten omfattar en areal om 31 796 m² och innehas med äganderätt. Tomten är plan och den obebyggda delen är asfalterad.

Karta

Bilder på lokalen