Sigurdsgatan 6, Sigurd, Västerås
Nyfosa Västerås
Annons plus34 m²
Hyra: Ej angiven
Tillträde: Enligt överenskommelse
Rum i kontorshotell i bra läge!
Kontorsrum i kontorshotell i Sigurdsområdet med närhet till det mesta.
I kontorshotellet har du tillgång till gemensamma ytor såsom konferensrum, kök/lunchrum och toaletter.
På lunchen kan man gå en promenad längs Mälaren eller besöka någon av restaurangerna i närområdet.
Lokaltyper
Typ: Kontor, Kontorshotell
Minsta storlek: 34 m²
Största storlek: 34 m²
Våningsplan: 1
Egenskaper
Villkor lokal
Tillträde: Enligt överenskommelse
Omgivning
Sigurdsområdet ligger mitt emellan Västerås city och Mälaren med Centralstationen som närmsta granne. I området finns det en blandning av kontor, gym, restauranger och hotell. Det finns gott om parkeringsplatser, laddstationer för el-bilar och cykelställ. Vid Mälarens strand finns det ett flertal restauranger, butiker och promenadstråk och Västerås city erbjuder ett stort utbud av butiker, restauranger samt övrig service.
Parkeringsmöjlighet: Goda parkeringsmöjligheter för bilar och cyklar i hela området. Laddstationer till el-bilar finns.
Närservice: Restauranger, gym och hotell finns i området.
Kommunikation
Mycket goda kommunikationer med buss och tåg till området i och med närheten till centralstationen. Det är lätt att ta sig till området med bil och det finns goda parkeringsmöjligheter. Gångavstånd till Centralstationen och Västerås City.
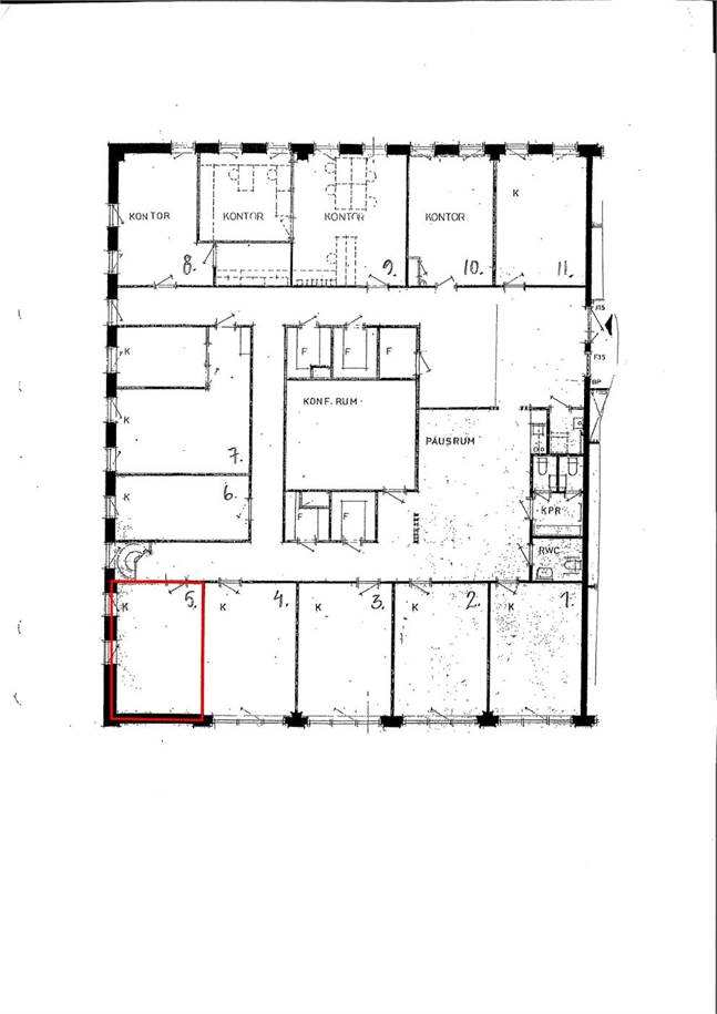
Planlösning
Ytan består av kontorsrum 22 kvm och 12 kvm delade gemensamma ytor.
Annonsinformation
Publicerad: 2026-02-18
Objektsnummer: 41996713






