Pilgatan 8 A, Kungsängen, Västerås
Nyfosa Västerås
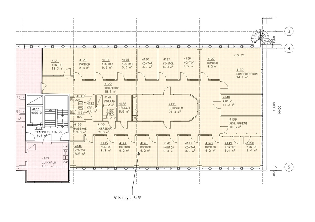
Annons plus315 m²
Hyra: Ej angiven
Tillträde: Enligt överenskommelse
Bra lokal på Ängsgärdet!
Lokalen består idag av kontorsrum. Layouten går att anpassa efter era önskemål.
Lokaltyper
Typ: Kontor
Minsta storlek: 315 m²
Största storlek: 315 m²
Våningsplan: 1
Egenskaper
Villkor lokal
Tillträde: Enligt överenskommelse
Omgivning
Ängsgärdet är ett populärt och lättillgängligt område med närhet till E18 och endast cirka 15 minuters promenad från Västerås Centralstation och city. Här samsas kontor, butiker, hotell, gym och bostäder i en trivsam blandning. Området är väl anpassat för både bilburna och de som föredrar cykel eller att gå med goda parkeringsmöjligheter samt utbyggda gång- och cykelvägar.
Parkeringsmöjlighet: I området finns goda parkeringsmöjligheter för både bilar och cyklar, vilket gör det enkelt för såväl personal som besökare att ta sig till och från fastigheten oavsett färdmedel.
Närservice: Gångavstånd till Västerås centrum
I området finns bland annat restauranger, hotell och mataffär.
Kommunikation
Området kring Pilgatan är lätt att nå oavsett färdsätt. Det finns goda bussförbindelser som gör det enkelt att ta sig hit med kollektivtrafik, och för den som reser med bil finns det gott om parkeringsmöjligheter i direkt anslutning till fastigheten. Den goda tillgängligheten gör området attraktivt för både anställda, kunder och samarbetspartners.
Planlösning
Idag består lokalen av cellkontor. Ny hyresgäst kan vara med att påverka utseendet av lokalen så att den passar er verksamhet.
Annonsinformation
Publicerad: 2026-02-17
Objektsnummer: 41996687
















