Nygatan 74, Örebro
Husherren Lokaler AB
91 m²
Hyra: Ej angiven
Tillträde: 2026-10-01
Nyrenoverad lokal med centralt läge på en av stans mest attraktivaste adresser.
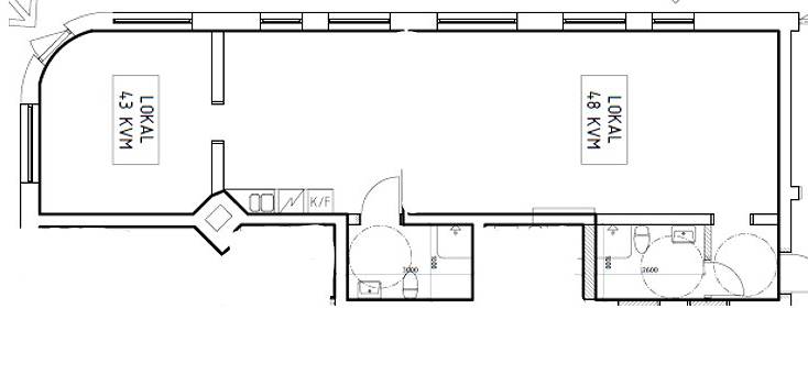
Vi hyr ut en lokal på Nygatan 74 som ligger ett stenkast från city. De 91m2 har en öppen planlösning och ett tillhörandepentry, samt 2st toaletter.
Möjligt att göra om till 2st mindre lokaler om 48m2 och 43m2.
Lokalen lämpar sig som butik, kontor eller ex frisörsalong.
Lokaltyper
Typ: Kontor, Butikslokal, Övrig lokal
Minsta storlek: 91 m²
Största storlek: 91 m²
Antal rum: 2
Byggnad
Renoveringsår: 2026
Villkor lokal
Tillträde: 2026-10-01
Kommunikationer
Busshållsplats ca 200m.
Centralstation ca 2km.
Planlösning
91m2.
Övrigt
Parkeringsmöjligheter: Betalparkering längs närliggande gator.
Dusch
Fiberanslutning
Kök/pentry
Skyltfönster
Skyltläge
WC


