Drottning Kristinas Esplanad 51, Solna
RP Retail & Properties AB
Annons plus58 m²
Hyra: Ej angiven
Tillträde: Ej angivet
Attraktiv kontorslokal på Drottning Kristinas Esplanad 51 – strategiskt läge i hjärtat av Solna!
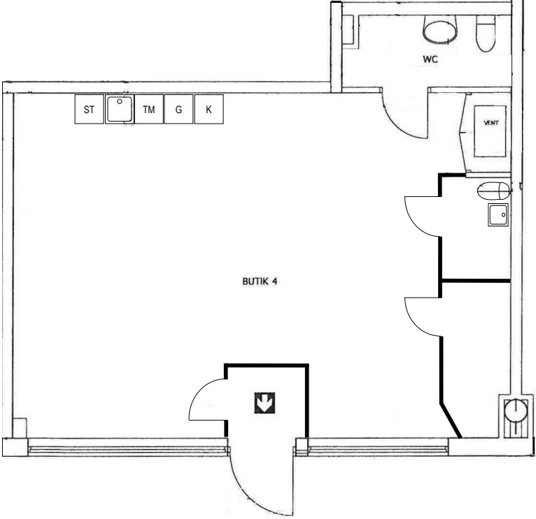
###Beskrivning Välkommen till en ljus och flexibel lokal om cirka 58 kvm med attraktivt skyltläge och stora skyltfönster mot gatan på Drottning Kristinas Esplanad 51. Lokalen erbjuder en öppen och lättmöblerad yta med fint parkettgolv och god takhöjd, vilket skapar en trivsam och professionell arbetsmiljö. De generösa fönsterpartierna ger ett fint ljusinsläpp och god exponering mot förbipasserande. I lokalen finns även ett praktisk pentry samt tillgång till WC, vilket gör den funktionell för både personal och besökare. Fastigheten är belägen i ett område med både bostäder och verksamheter, vilket skapar ett naturligt flöde av människor i närområdet. ###Område Lokalen på Drottning Kristinas Esplanad 51 har ett attraktivt och strategiskt läge i Solna med utmärkta kommunikationer. Ulriksdals station ligger inom kort gångavstånd och erbjuder pendeltåg och bussförbindelser. För bilpendlare erbjuds god tillgänglighet till E4 och E18, och Stockholm Arlanda Airport nås smidigt. I närområdet finns ett brett utbud av service, restauranger samt shopping i Westfield Mall of Scandinavia. Inom kort promenadavstånd ligger även Ulriksdals slottspark. Parken är ett uppskattat grönområde vid Ulriksdals slott med promenadstråk längs Edsviken samt restaurangen Ulriksdals Wärdshus. Adressen erbjuder en attraktiv och lättillgänglig miljö för företag som söker en dynamisk etablering. ###Fakta Hyra: 10 633 SEK/mån F-skatt: 740 SEK/mån Pris: Uthyres Visning: Kontakta ansvarig mäklare för att boka visning. ###Kontakt Vänligen respektera säljarens önskemål om att all kontakt sker genom ansvarig mäklare Viktor Ingemarsson, Mobil: +46 (0)760 50 24 50 Tel: +46(0)8-23 20 70, Mail: viktor@rpretail.se. www.rpretail.se. RP Retail & Properties
Om lokalen
- Kommun
- Solna kommun
- Objektsnummer
- 41997205
Karta
Bilder på lokalen
Drottning Kristinas Esplanad 51 Drottning Kristinas Esplanad 51 Drottning Kristinas Esplanad 51 Drottning Kristinas Esplanad 51 Drottning Kristinas Esplanad 51 Drottning Kristinas Esplanad 51 Drottning Kristinas Esplanad 51 Drottning Kristinas Esplanad 51 Drottning Kristinas Esplanad 51 Drottning Kristinas Esplanad 51 Drottning Kristinas Esplanad 51












