Bangårdsvägen 21, Kållered
Relier - Real Estate Advisor Göteborg
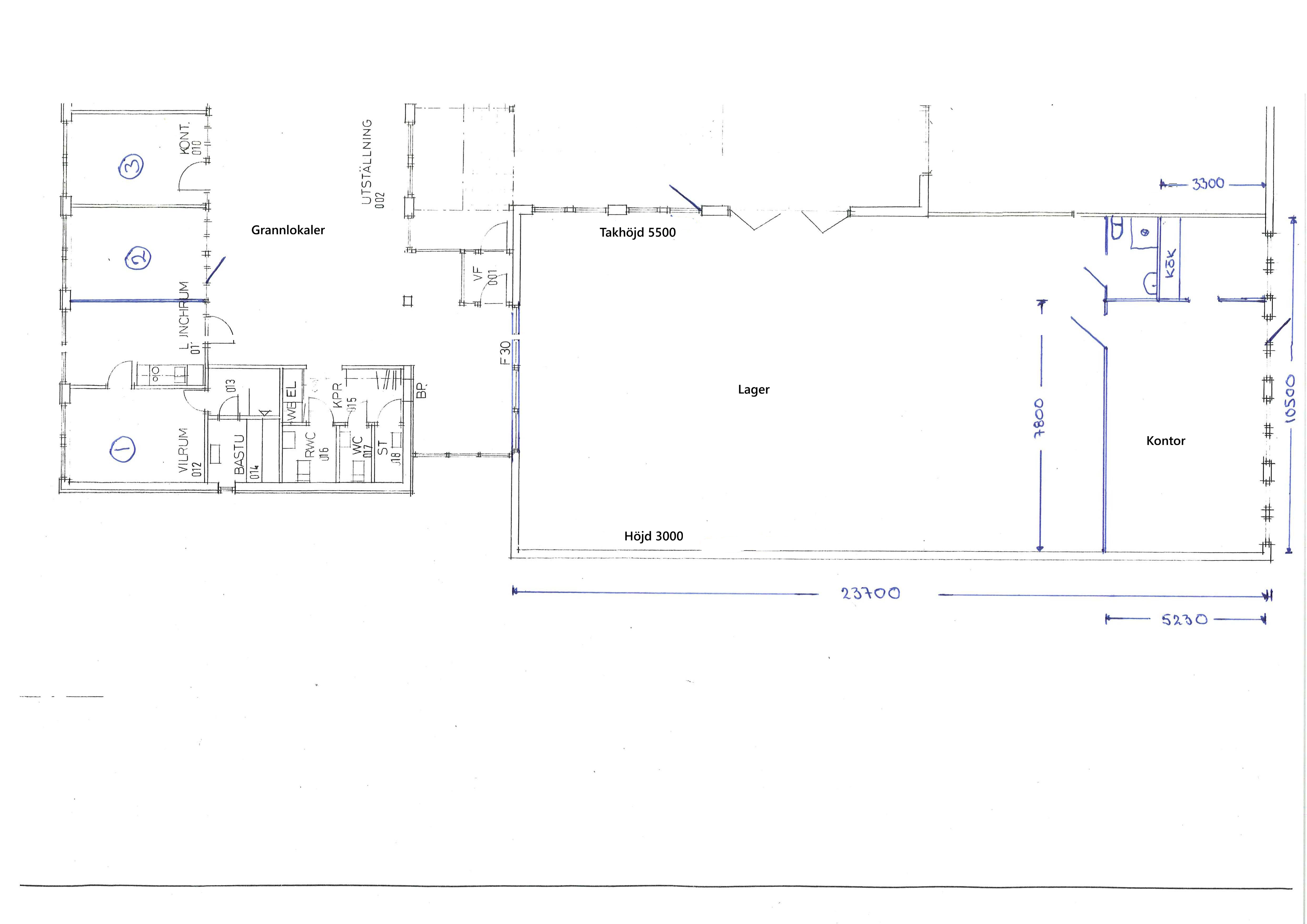
Annons plus259 m²
Hyra: Ej angiven
Tillträde: Ej angivet
Tillfälle! Bra lagerlokal med port. Egen ingång till kontoret. Bra fördelning på ytorna. Möjlighet finns även att hyra stor gårdsyta.
På Bangårdsvägen 21, mitt emot IKEA finns nu en mycket bra lokal i strategisk läge till uthyrning.
Ytorna är ca 259 kvm. Till lagret om ca 200 kvm hör en port (ca 4x4 m). Tjockleken på bottenplattan uppskattas till ca 30 cm, vilket ger bra bärighet.
I lokalen finns även dusch och wc. Till lagret hör ett kontor med egen ingång med kök om ca 59 kvm.
Möjlighet till skyltning finns mot motorvägen (ansökan om bygglov görs av hyresgäst).
Om intresse finns så ges även möjlighet till att hyra stor gård.
Lokalen ligger i en inhägnad fastighet.
3 parkeringsplatser ingår i hyran.
Möjlighet finns även att hyra till fler kontorsplatser (1-3 st) i grannlokalerna.
OBS: Bilverksamheter undanbedes.
Välkomna att kontakta oss på Relier för mer information samt visning!
Lokaltyper
Typ: Butikslokal
Minsta storlek: 259 m²
Största storlek: 259 m²
Annonsinformation
Publicerad: 2025-10-07
Objektsnummer: 41992731
















