Kontor, Kungsgatan 8, Centrum, Örebro
- 151 m²
- 2026-01-01. Enligt överenskommelse.
- 26 425 kr/mån
Möjlighet till att hyra denna anpassningsbara kontorslokal mitt i Örebros stadskärna!
Om lokalen
- Lokaltyp
- Kontor
- Total yta
- 151 m²
- Adress
- Kungsgatan 8
- Område
- Centrum
- Kommun
- Örebro kommun
- Hiss
- Ja
- Våning
- 2
- Tillträde
- 2026-01-01. Enligt överenskommelse.
- Objektsnummer
- 41993573
- Hyra
-
26 425 kr/mån
2 100 kr/m²/år
Beskrivning
Möjlighet till att hyra denna anpassningsbara kontorslokal mitt i Örebros stadskärna!
Lokalen erbjuder en flexibel planlösning som enkelt kan anpassas efter just ert arbetssätt och era behov.
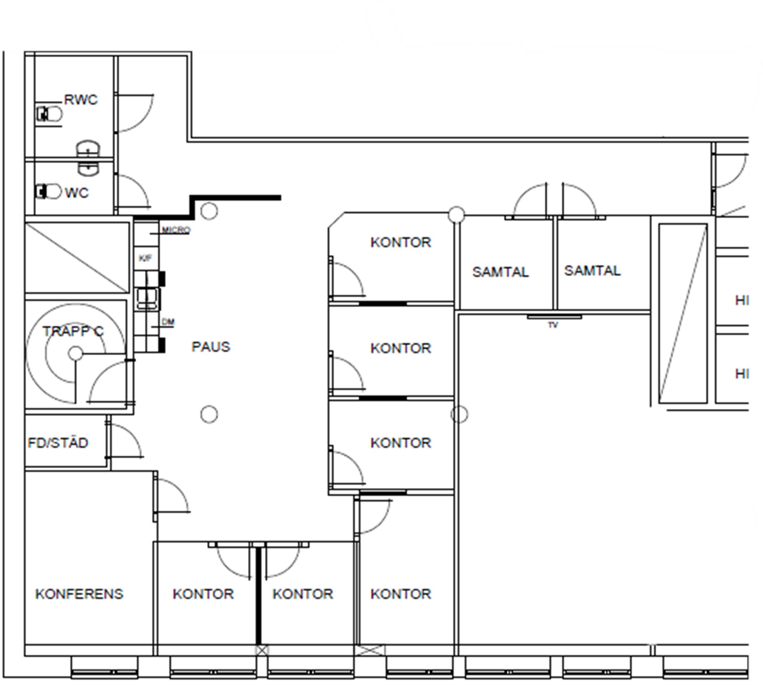
Med sina 151 kvm rymmer den 6 kontorsrum, 2 samtalsrum, ett välplanerat konferensrum samt 2 WC – allt samlat i en effektiv och trivsam arbetsmiljö.
Här får ni möjlighet att hyra ett kontor med absolut närhet till Stortorget och stadens puls.
Välkommen att kontakta oss för att boka visning!
Kommunikationer
Nära flertalet busshållplatser samt Örebro Resecentrum.
Planlösning
Möjlighet till anpassning av planlösningen finns.
Service
Gott utbud om restauranger, mataffärer och övrig service.
Närliggande företag
Danske Bank, SEB, Johnells, TNG med mera.
Uppvärmning
Fjärrvärme


