Borrgatan 5, Östra Hamnen, Malmö
Sundsstaden AB
Annons plus738 m²
Hyra: Ej angiven
Tillträde: Ej angivet
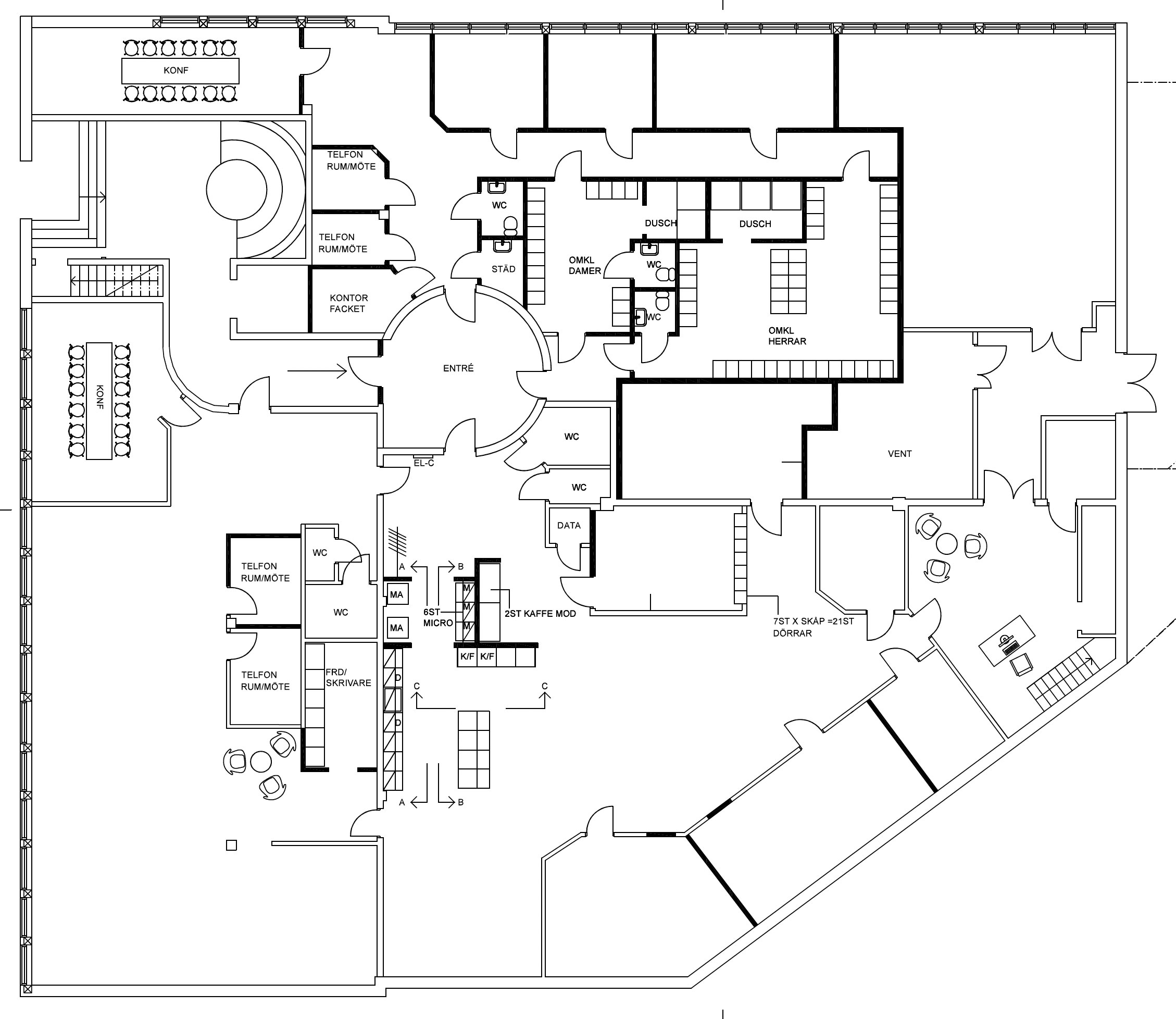
Modern och rymlig kontorslokal om ca 738 kvm i Östra Hamnen – inflyttning sommaren 2026
Nu finns möjlighet att hyra en relativt nyrenoverad och välplanerad kontorslokal om cirka 738 kvm med tillträde från den 1 juli 2026. Lokalen är belägen på Borrgatan 5, i ett mycket strategiskt läge i början av Östra Hamnen, direkt efter Frihamnsviadukten och endast cirka 1,5 kilometer från Malmö City. Kontoret erbjuder en effektiv och flexibel planlösning med ett stort öppet kontorslandskap som kompletteras av två rymliga mötesrum anpassade för cirka tolv personer vardera. Här finns även telefonrum samt flera enskilda kontorsrum i varierande storlekar, varav flera är dimensionerade för att rymma flera arbetsplatser. Det generösa och välutrustade köket har gott om plats för att samla hela företaget och skapar en naturlig mötespunkt i lokalen. Därtill finns omklädningsrum för både dam och herr samt goda förrådsmöjligheter med smidig inlastning från fastighetens baksida. Lokalen är även utrustad med två säkerhetsklassade rum, ett i klass 3 och ett i klass 2, vilket gör den särskilt lämpad för verksamheter med höga krav på säkerhet. Fastigheten erbjuder gott om parkeringsmöjligheter både på den egna tomten och på den intilliggande parkeringsytan direkt framför byggnaden. Dessutom fina skyltmöjligheter mot Västkustvägen! Sammantaget är detta en modern och funktionell kontorslokal i ett mycket tillgängligt läge, väl anpassad för företag som söker en representativ arbetsmiljö med närhet till stadskärnan och god logistik.
Egenskaper
Om lokalen
- Kommun
- Malmö kommun
- Hiss
- Ja
- Objektsnummer
- 41996180












