Verkstad, Strömgatan 4, Sege, Malmö
- 180–430 m²
- Enligt överenskommelse
- 15 750 - 37 625 kr/mån
Lokaler för kontor och lager uthyres på strategiskt läge i Malmö.
Om lokalen
- Lokaltyper
- Verkstad / Kontor
- Total yta
- 180–430 m²
- Adress
- Strömgatan 4
- Område
- Sege
- Kommun
- Malmö kommun
- Byggår
- 1965
- Tillträde
- Enligt överenskommelse
- Objektsnummer
- 41993030
- Hyra
-
15 750 - 37 625 kr/mån
1 050 kr/m²/år
Beskrivning
Lokaler för kontor och lager uthyres på strategiskt läge i Malmö.
Vi har möjlighet att utföra specifika hyresgästanpassningar utifrån era behov och önskemål.
En trappa ner finns lediga lager från 50-200 m²
Trevlig luchrestaurang finns i fastigheten.
Ring gärna för mer information eller boka in en visning!
Kommunikationer
E22:an, buss 130
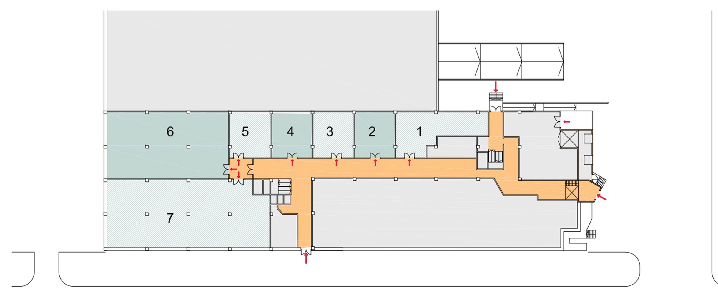
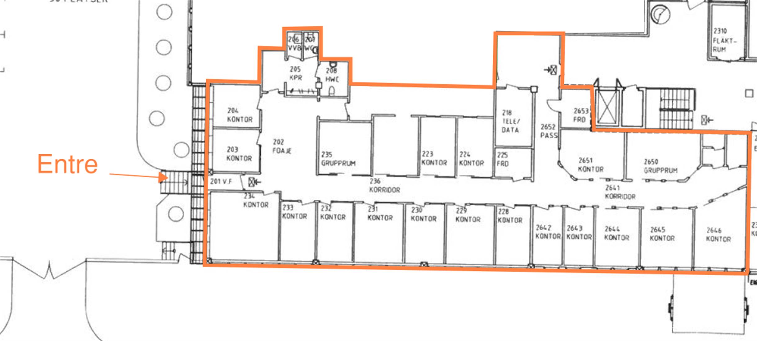
Planlösning
kontorsytor med möjlighet till lager under samma tak.
Parkering
Ca 30
Service
Röda Oliven Restaurang, Snabbgross, Burlöv Center.
Skyltläge
Ja
Närliggande företag
Röda Oliven Restaurang, NISA Utbildning, Snabbgross, Netonnet, Ettiketto, Swedish Logistic Property.
Uppvärmning
Fjärrvärme

















