Lagerlokal, Hantverkarvägen 24, Handen

  • 114 m²

Kombilokal med kontor, kök och dusch


Lokaltyper Lagerlokal / Kontor / Produktionslokal
Total yta 114 m²
Adress Hantverkarvägen 24
Kommun Haninge kommun
Objektsnummer 41993550

Övrigt

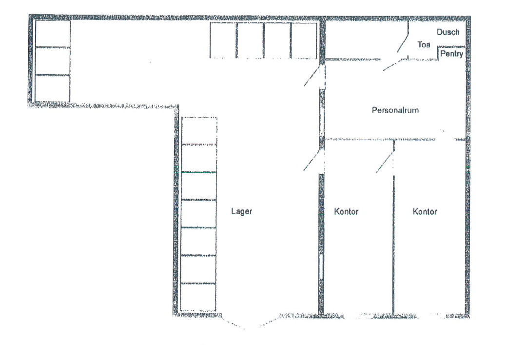
Praktisk och välplanerad lokal om 114 kvm med både kontorsdel och lager, belägen i markplan med egen port. Passar utmärkt för mindre företag inom service, hantverk, e-handel eller liknande verksamheter.

Lokalen består av två kontorsrum, personalrum med pentry, wc med dusch samt lagerdel med port. Tack vare fönster i flera väderstreck upplevs lokalen som ljus och trivsam.

Lagerdelen har en generös takhöjd och direktaccess via port, vilket ger smidig in- och utlastning. (Observera att golvbrunn ej finns i lokalen.)

Sammanfattning:




114 kvm kombilokal i markplan




Lagerdel med port




Två kontorsrum och personalrum




Pentry och wc med dusch




Ljus lokal med god tillgänglighet




Passar service-, lager- och hantverksverksamhet




Lokalen ligger i Haninge företagsområde med närhet till Nynäsvägen, väg 73 och goda kommunikationer mot Stockholm, Nynäshamn och Tyresö.

Locus Advice är ett fastighetskonsultbolag med fokus på kommersiella fastigheter och lokaler.
Vi arbetar med


Lokaluthyrning
Lokalöverlåtelser 
Fastighetsöverlåtelse
Transaktionsrådgivning
Värdering
Projektledning
Vi representerar även hyresgäster som vill ha hjälp med sitt lokalsökande.


Genom etablerade samarbeten med både stora och små fastighetsägare har vi tillgång till ett stort utbud av lokaler utöver vad vi kan marknadsföra i vår egen regi. Via dessa samarbeten kan vi med stor sannolikhet hjälpa er hitta den lokal ni söker efter.


Karta

Bilder på lokalen