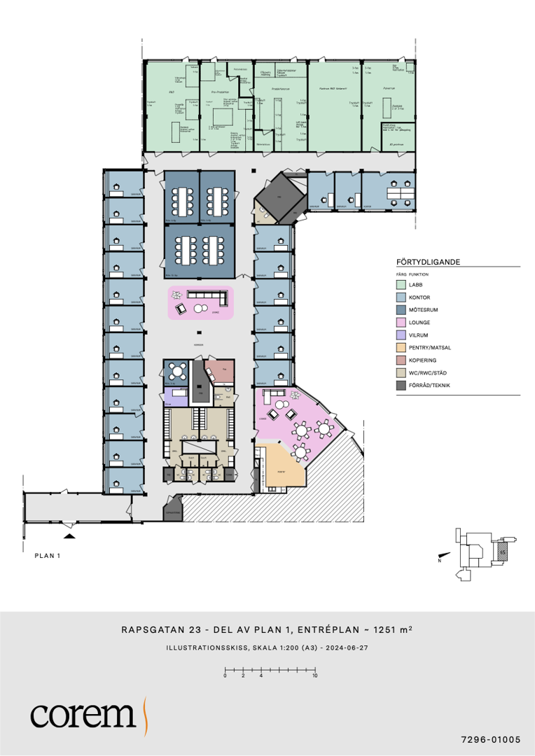
Produktionslokal, Rapsgatan 23, Uppsala Business Park, Uppsala
- 1 251 m²
Stor och välutrustad labblokal i innovativ miljö
Om lokalen
- Lokaltyper
- Produktionslokal / Kontor
- Total yta
- 1 251 m²
- Adress
- Rapsgatan 23
- Område
- Uppsala Business Park
- Kommun
- Uppsala kommun
- Tillgänglighet
- Enligt överenskommelse
- Objektsnummer
- 41993672
Beskrivning
Välkommen till Rapsgatan och innovativa Uppsala Business Park. Nu finns en unik chans att hyra en stor labblokal i markplan med många kontor, konferensrum och ett rymligt kök. Här finns dessutom all utrustning du kan tänkas behöva; bänkar, hyllor, dragskåp, tryckluft, labbvatten, punktsug, 3-fas-uttag och avjonat vatten.
Du arbetar i ett utmärkt kommunikationsläge nära busshållplatsen. För den som reser med bil finns en stor parkering med laddmöjligheter.
Kontakta oss gärna för mer information eller för att boka en visning.
Omgivning
Uppsala Business Park är ett starkt varumärke som förknippas med världsledande bolag, globala koncerner med avancerad forskning och produkter. Här blomstrar en innovationsmiljö som attraherar talanger från hela världen. Centrat har ett strategiskt och lättillgängligt läge för att driva utveckling och nå resultat. Här kan du samla hela din verksamhet och hyra effektiva produktionslokaler i anslutning till labbmiljöer, kontor och gemensamma mötesplatser. Som hyresgäst får du också tillgång till det tjänsteutbud och den logistik som erbjuds inom centrat. Uppsala Business Park konferens och möten välkomnar alla företag i Uppsala med omnejd.
Parkering
Det finns gott om parkeringsmöjligheter i anslutning till området.







