Kontor, Fredsgatan 21, Värnhem, Malmö
- 460–1 250 m²
- Enligt överenskommelse
Nyrenoverat kontor med välplanerade, representativa ytor och med ett otroligt kommunikationsläge på Värnhem - ett kontor att trivas i!
Om lokalen
- Lokaltyp
- Kontor
- Total yta
- 460–1 250 m²
- Adress
- Fredsgatan 21
- Område
- Värnhem
- Kommun
- Malmö kommun
- Byggår
- 2009
- Hiss
- Ja
- Våning
- 3
- Tillträde
- Enligt överenskommelse
- Objektsnummer
- 41995577
Beskrivning
Nyrenoverat kontor med välplanerade, representativa ytor och med ett otroligt kommunikationsläge på Värnhem - ett kontor att trivas i!
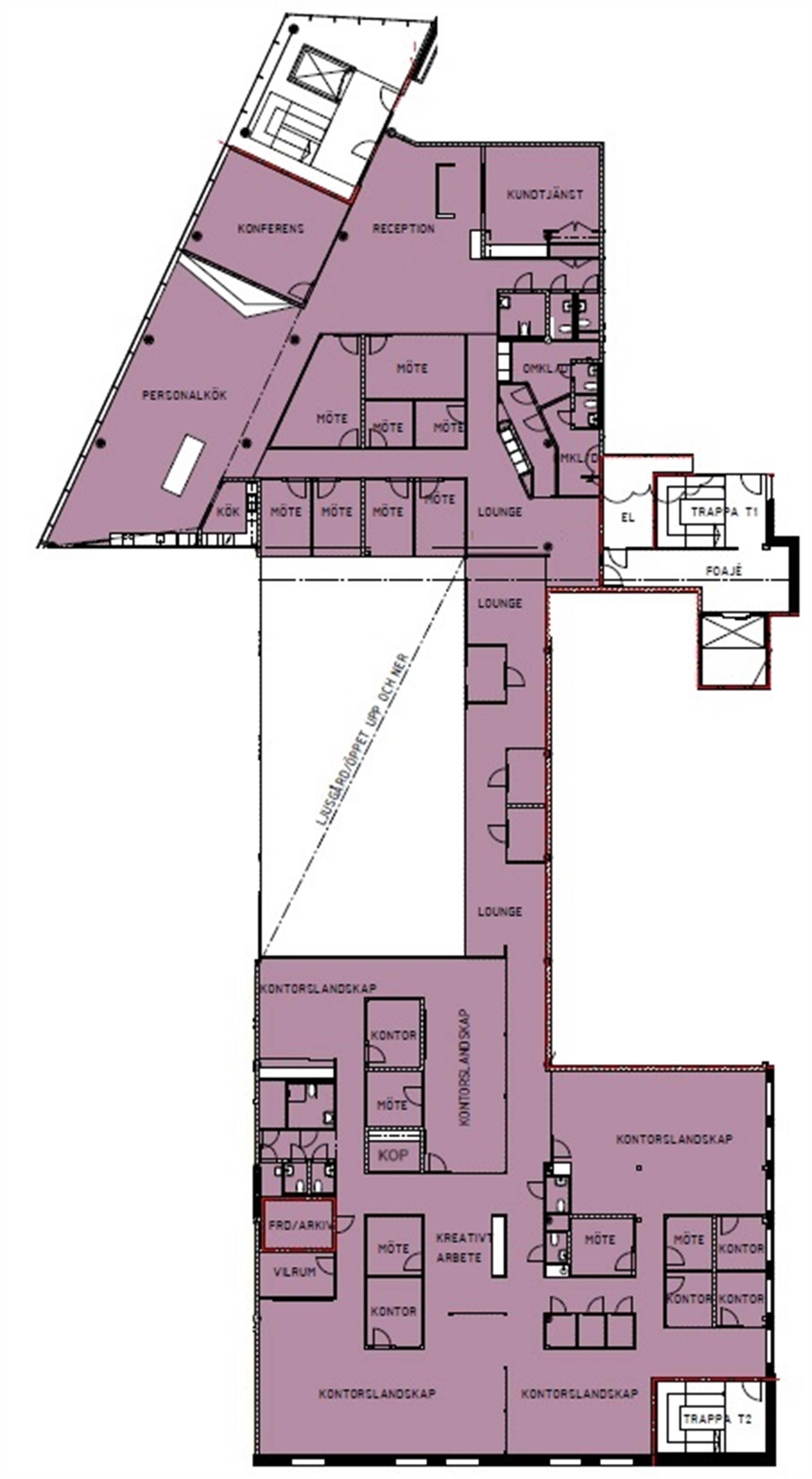
Nyrenoverat kontor med moderna, stilrena materialval på ett fantastiskt kommunikationsläge vid Entré på Värnhem.Stora öppna ytor för arbete i landskap samt enskilda kontorsrum, flera mötesrum, större konferensrum, reception samt kundtjänst, samtalsrum, arkivrum, flera loungeytor, många toaletter samt två omklädningsrum med duschar - se planlösningen. Väl valda materialval och ljudabsorberande träväggar.Stort lunchrum och samlingsrum med två kök/pentryn som har otroligt ljus och stämning tack vare takhöjden och fasad helt i glas. Detta rum lämpar sig också för representationer eller interna stormöten med många medarbetare närvarande. Här finns två diskmaskiner, många micros, flera kylar, frys, spisplattor och bubbelvatten i vattenkranen.Kontoret har tre möjliga entréer, en mer representativ med reception samt två personalentréer med anslutning till garaget och Ringgatan. På taket finns en terrass som delas med fastighetens kontorshyresgäster.Möjlighet finns att ta hela ytan på 1 250 kvm eller mindre storlekar. Kontakta oss med ert behov på storlek så ser vi över möjligheterna!Låter detta som ert nästa kontor? Kontakta oss för mer information och visning!
Omgivning
Närhet till köpcentret Entré med handel, vård, service och nöje samt det myllrande Värnhemstorget som ligger i direkt anslutning till den vackra Kungsallén, som tar er vidare rakt in i Malmös Centrum via en kort promenad. I området finns bostäder, kontor, vård, handel och service.
Kommunikationer
Utmärkt kommunikationsläge med Malmös tredje största knutpunkt för region- och stadsbussar ett stenkast bort samt ett läge mitt i Malmös norra infart med lätta anslutningar till Stockholmsvägen /E22/E6, Lundavägen, Västkustvägen, Nobelvägen med flera. Även utmärkt läge för cyklister och promenadavstånd till tågstationen Östervärn. Mindre än 2 km till centrala Malmö.
Planlösning
Blandad planlösning med både öppet landskap och enskilda kontorsrum. En främre mer representativ del med reception, kundtjänst, mötesrum och kök med lunchrum samt en bakre intern del för arbetsplatser, fler mötesrum, telefonrum med mera. Se bild med planlösning.
Parkering
Entrés parkeringsgarage i fastighetens källare, direktanslutning till kontoret via hiss och trapphus. Uppvärmt.
Service
Stort tjänsteutbud som grannar vilka erbjuder dagligvaruhandel, lunchrestauranger, skönhetssalonger, biografer, upplevelser, tandvård, vårdcentraler med mera.
Vägbeskrivning
Se Google maps.
Skyltläge
Skyltmöjligheter på fasad och entré.
Närliggande företag
Malmö Stad, vårdcentraler, Nabo, SBC, Kitchen961, Hemköp, Normal, Apoteket, O'Learys, Filmstaden, Leklust, Aiko Sushi med flera.
























