Kontor, Bergfotsgatan 4, Lackarebäck, Mölndal
- 118 m²
Mindre nyrenoverade kontor med avtalstider som passar just er! Egen utgång till innergården.
Om lokalen
- Lokaltyp
- Kontor
- Total yta
- 118 m²
- Adress
- Bergfotsgatan 4
- Område
- Lackarebäck
- Kommun
- Mölndals kommun
- Hiss
- Ja
- Våning
- 1 av 6
- Objektsnummer
- 41992552
Beskrivning
Mindre nyrenoverade kontor med avtalstider som passar just er! Egen utgång till innergården.
Nu har ni chansen att hoppa på vårt nya koncept som vi har valt att kalla för flexkontor. Enkelt beskrivet är det mindre nyrenoverade kontor som går att hyra med flexiblare avtalstider. I varje kontor finns eget pentry, toalett och mötesrum men sedan finns det tillgång till gemensamma mötesrum, omklädningsrum och cykelrum i entrén. Passar perfekt för er som är en start up och inte vet vart ni befinner er om ett år, för er som har ett projekt som endast löper en kortare tid alternativt för er som bara vill ha ett mindre kontor med en enkel lösning.
Önskar man att hyra en längre period går det självklart också bra.
Omgivning
Fint grönt naturområde i närheten.
Kommunikationer
Buss 758 stannar precis utanför och går från Heden via korsvägen.
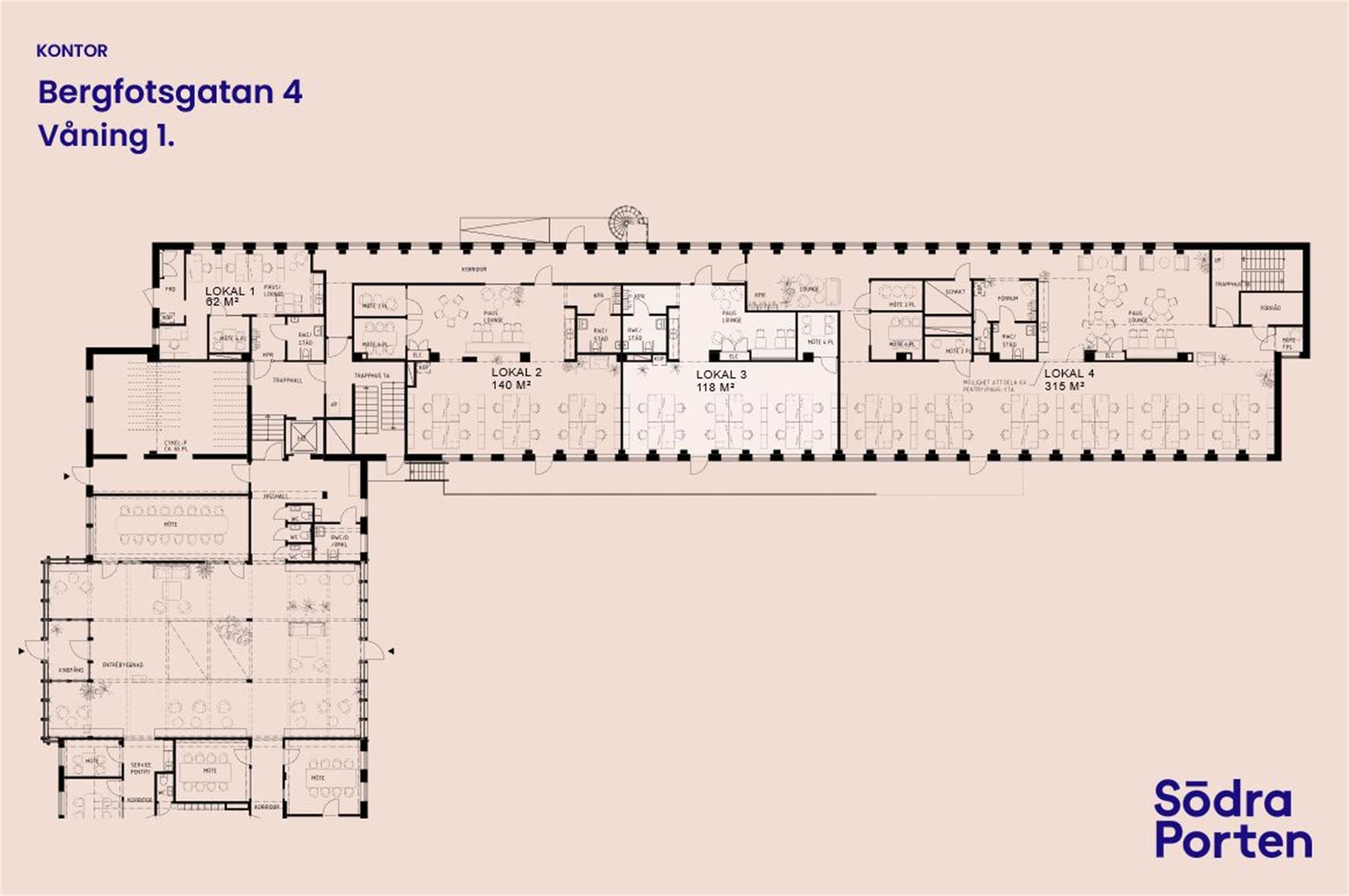
Planlösning
Se bifogad fil.
Parkering
Parkeringar finns både i ett p-hus och utanför lokalen. Finns även tillgång till gästparkeringar.
Service
I området finns det två lunchrestauranger och en konferensanläggning. Under hösten öppnas en kiosk vid Flöjelbergsgatan 1C.
Vägbeskrivning
se www.hitta.se
Skyltläge
Mycket bra.
Närliggande företag
Thorlabs, IF, Papyrus, Qrtech, Schneider electric.














