Kontor, Södra Tullgatan 3, Centrum, Malmö
- 325–650 m²
- 20260701
Om lokalen
- Lokaltyp
- Kontor
- Total yta
- 325–650 m²
- Adress
- Södra Tullgatan 3
- Område
- Centrum
- Kommun
- Malmö kommun
- Byggår
- 1963
- Renoveringsår
- 2010
- Tillträde
- 20260701
- Objektsnummer
- 41994791
Beskrivning
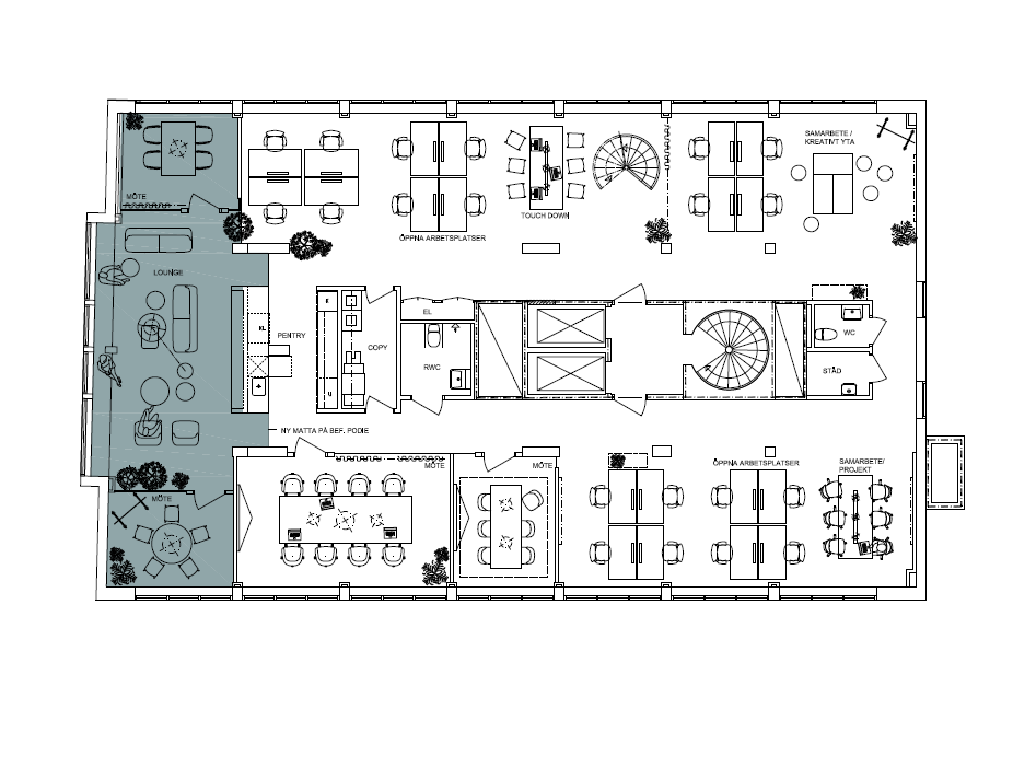
Lokalen – ljus, rymd och modern känsla I ett av Malmös bästa lägen erbjuder vi en effektiv och snygg lokal i vårt klassiska sextiotalshus vid Södertull. Lokalen är ca 650 kvadratmeter på de två översta våningarna och har fantastisk utsikt över takåsarna. Det finns även möjlighet att dela av och hyra enbart ett våningsplan om 325 kvadratmeter. Här får du ett fritt läge med utsikt i flera väderstreck. De många fönstren ger dagsljus till alla arbetsplatser, och planlösningen – med rymliga ytor, tydliga arbetszoner och mötesrum nära till hands – gör det enkelt att arbeta både fokuserat och tillsammans. Den öppna strukturen ger bra överblick och naturlig kontakt mellan ytorna, och spiraltrappan knyter ihop de två planen på ett smidigt och modernt sätt. Redan när man kliver in på morgonen märks ljuset och den luftiga känslan som präglar hela lokalen. Läget – Malmö city utanför dörren Södertull och Gustav Adolfs torg erbjuder ett brett utbud av restauranger, caféer, butiker och service. Triangeln når ni på tio minuter, Centralstationen lika snabbt. Oavsett om ni jobbar, tar lunch eller rör er mellan möten finns allt inom nära räckhåll. Läs mer om läge Södertull
Fastigheten – modern komfort i ett klassiskt hus Byggnaden stod klar 1963 och är ett av Malmös tydligaste exempel på modernistisk arkitektur. Fastigheten är LEED Guld-certifierad och rymmer kontor, butiker och bostäder, vilket skapar liv och rörelse hela dagen. Här sitter ni i en hållbar och modern miljö med omtanke om både funktion och estetik. I huset finns cykelparkering, möjlighet att hyra garageplats och service som gör arbetsdagen smidig. Några våningar ner i huset finns dessutom en gemensam terrass – perfekt för kaffe, paus eller ett möte i solen. Välkommen att boka en visning – vi hjälper er hitta rätt lösning för ert företag.
Kommunikationer
Promenadavstånd till strategiska platser i Malmö: Triangeln - 10 minuter Gustav Adolfs Torg - 0 minuter Stortorget - 5 minuter Centralstationen - 10 minuter Information om buss- och tågtider finner du på Skånetrafikens hemsida.
Parkering
Bilplatser finns att hyra i garaget med infart från Torggatan. Dessa platser disponeras av hyresgästerna i fastigheten och för inpassering krävs passerbricka. I garaget finns också 16 stycken laddstolpar. Från 1 Juli 2022 administreras alla garageplatser av Apcoa Parkering Sverige AB. Kunder med rörliga parkeringsplatser måste registrera sina bilar i Apcoas serviceportal för att inte riskera att få en kontrollavgift. Varje hyrd plats ger möjlighet till max 5 registrerade bilar men endast en bil kan parkeras åt gången Om du redan hyr plats i garaget och vill utöka antalet platser eller byta plats, vänligen maila vasakronan@apcoa.se . Om du vill rapportera en felparkerad bil i något av våra garage, ring 08-55630670 (tonval 3) Nya kunder kontaktar Apcoa på vasakronan@apcoa.se , på 08-55630670 (tonval 1) eller via chatt på www.apcoa.se . Mer information finns även tillgänglig på deras hemsida .
Service
I närområdet kring Södertull och Gustav Adolfs torg hittar du ett brett utbud av restauranger, butiker och annan service. Njut av måltider på charmiga caféer och restauranger. Med detta precis runt hörnet erbjuder vår fastighet på Gustav Adolfs torg 12 och Torggatan 2 en kombination av bekvämlighet och stadsliv.
Karta
Bilder på lokalen
Öppet kontorslandskap med spiraltrappa och stora fönster. Öppet kontorslandskap med stora arbetsbord och stora fönster. Utsikt över Malmö innerstad med kanalen och omgivande byggnader. Samlingsyta i ljus lokal med fönster och spiraltrappa. Ljust mötesrum med stora fönster och utsikt över Malmö Mötesrum med glasväggar och naturligt ljus. Ljus kontorsyta med utsikt och lång vy genom lokalen. Social yta med stora fönster och utsikt över takåsarna i Malmö. Social yta med stora fönster och utsikt över takåsarna i Malmö. Presentation med ritning











