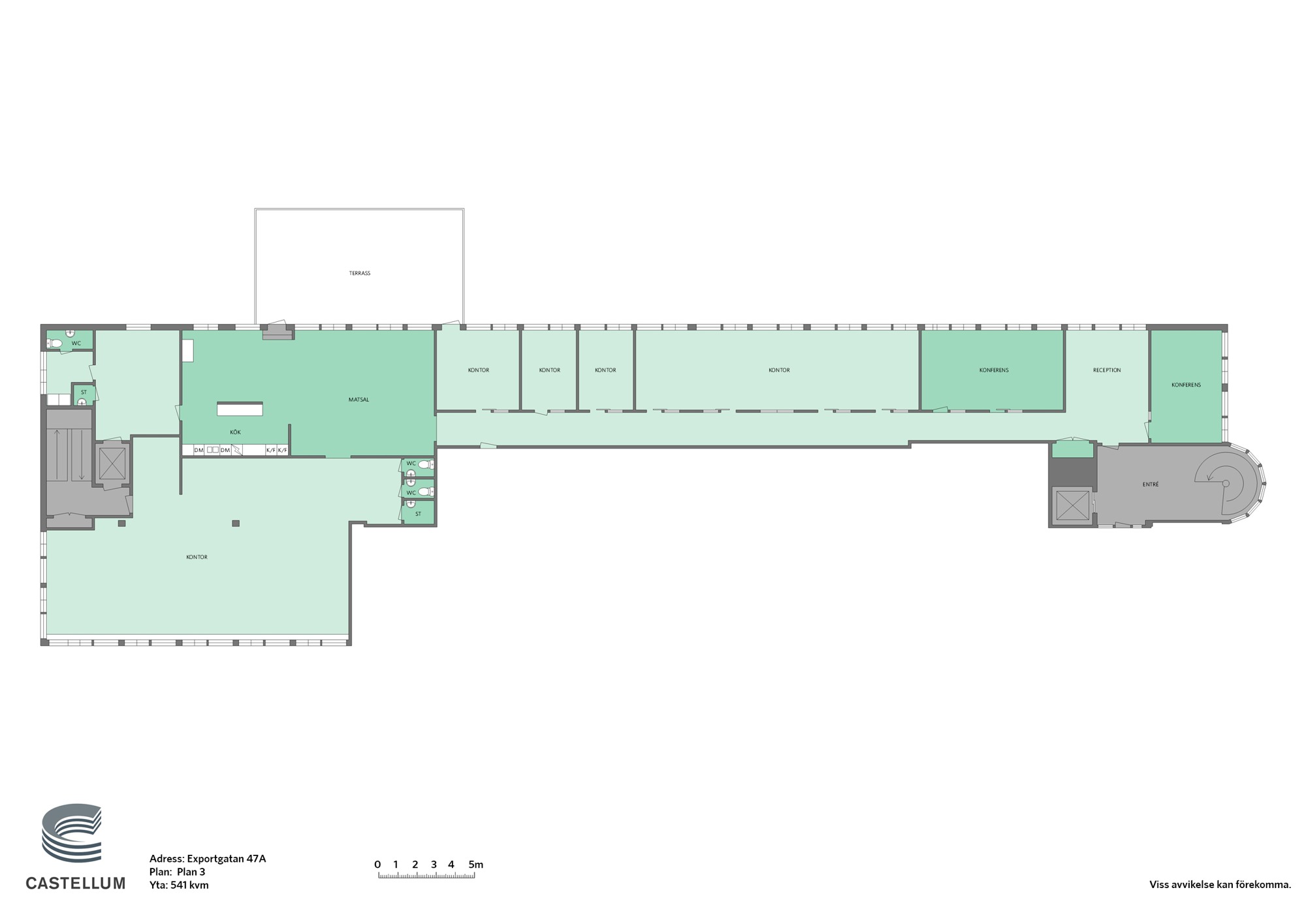
Kontor, Exportgatan 47a, Hisingen, Göteborg
- 541 m²
- 2024-05-15
Kontor med härlig takterrass!
Om lokalen
- Lokaltyp
- Kontor
- Total yta
- 541 m²
- Adress
- Exportgatan 47a
- Område
- Hisingen
- Kommun
- Göteborgs kommun
- Byggår
- 1989
- Hiss
- Ja
- Våning
- 3
- Tillträde
- 2024-05-15
- Objektsnummer
- 41956602
Beskrivning
Lokalen har mycket ljusinsläpp med fönster i tre väderstreck och utsikt mot vattnet. Parkeringsplatser intill fastigheten och hiss i båda entréerna. En härligt rymlig takterrass för lunch och fika utomhus under sommarhalvåret och för sociala aktiviteter.
Ta gärna hjälp av oss på Castellum, vi har nycklarna för att utforma en hållbar och attraktiv arbetsplats där medarbetarna mår bra och presterar på topp. I samband med anpassningar försöker vi alltid ha hållbarhet och återbruk i åtanke.
Fastigheten som ligger intill Göta älv har fin utsikt över vattnet. All tänkbar service finns i området och direkt närhet till E6 och vidare förbindelser till andra trafikleder.
Välkommen att kontakta oss för mer information och visning!
Omgivning
Trevligt område med all tänkbar service. Fastigheten ligger intill Göta Älv med sjöutsikt
Kommunikationer
Goda bussförbindelser och närhet till E6
Planlösning
Planlösningen består av öppna ytor och kontorsrum och går att anpassa efter er önskemål och behov.
Övrigt
Kontors -och industrifastighet










