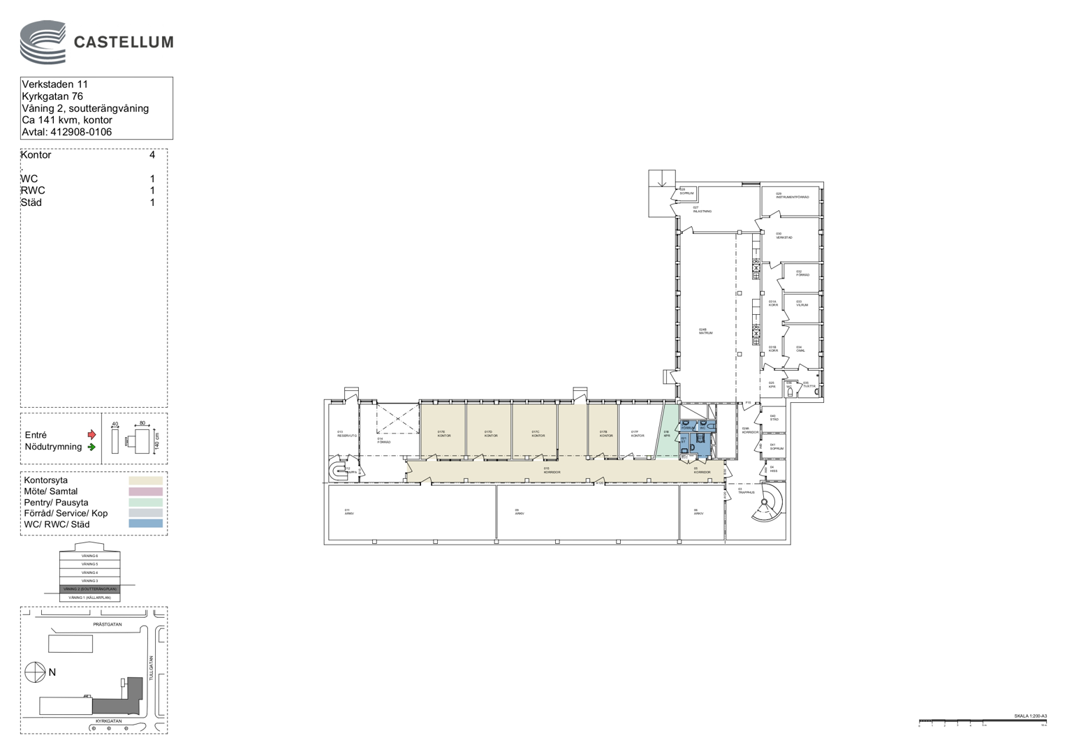
Kontor, Kyrkgatan 76, Centrala Östersund, Östersund
- 141 m²
- 2023-12-28
Kontor för det mindre företaget med tillgång till parkering.
Om lokalen
- Lokaltyp
- Kontor
- Total yta
- 141 m²
- Adress
- Kyrkgatan 76
- Område
- Centrala Östersund
- Kommun
- Östersunds kommun
- Byggår
- 1968
- Hiss
- Ja
- Våning
- 2
- Tillträde
- 2023-12-28
- Objektsnummer
- 41961422
Beskrivning
Kontorslokal i markplan med tillhörande förrådsutrymme med garageport. Tillgång till gemensamt matrum samt omklädningsrum med bastu och träningslokal. 1 minuts gångavstånd till centrala Östersund samt bussförbindelser via Busstorget. Fastigheten har egna p-platser som finns tillgängliga för dess hyresgäster.
Omgivning
Centralt belägen kontorsfastighet i centrala Östersund.
Kommunikationer
Fastigheten är belägen två kvarter från busstorget med såväl lokal- som landsortsbusstrafik. Flygbuss från Åre-Östersund flygplats angör busstorget. Östersunds tågstation ligger ca 4 kvarter bort.
Service
Två kvarter från fastigheten ligger Östersunds handelscentrum med all tänkbar service som t ex livsmedel, tand- och sjukvård, apotek, lunchrestauranger samt övrig shopping.
Övrigt
Kontorsfastighet på 6 våningar med soutterrängvåning med handikappanpassad entré mot Kyrkgatan.







