Vårdlokal, Karl Gustavsgatan 32, Centrum, Göteborg
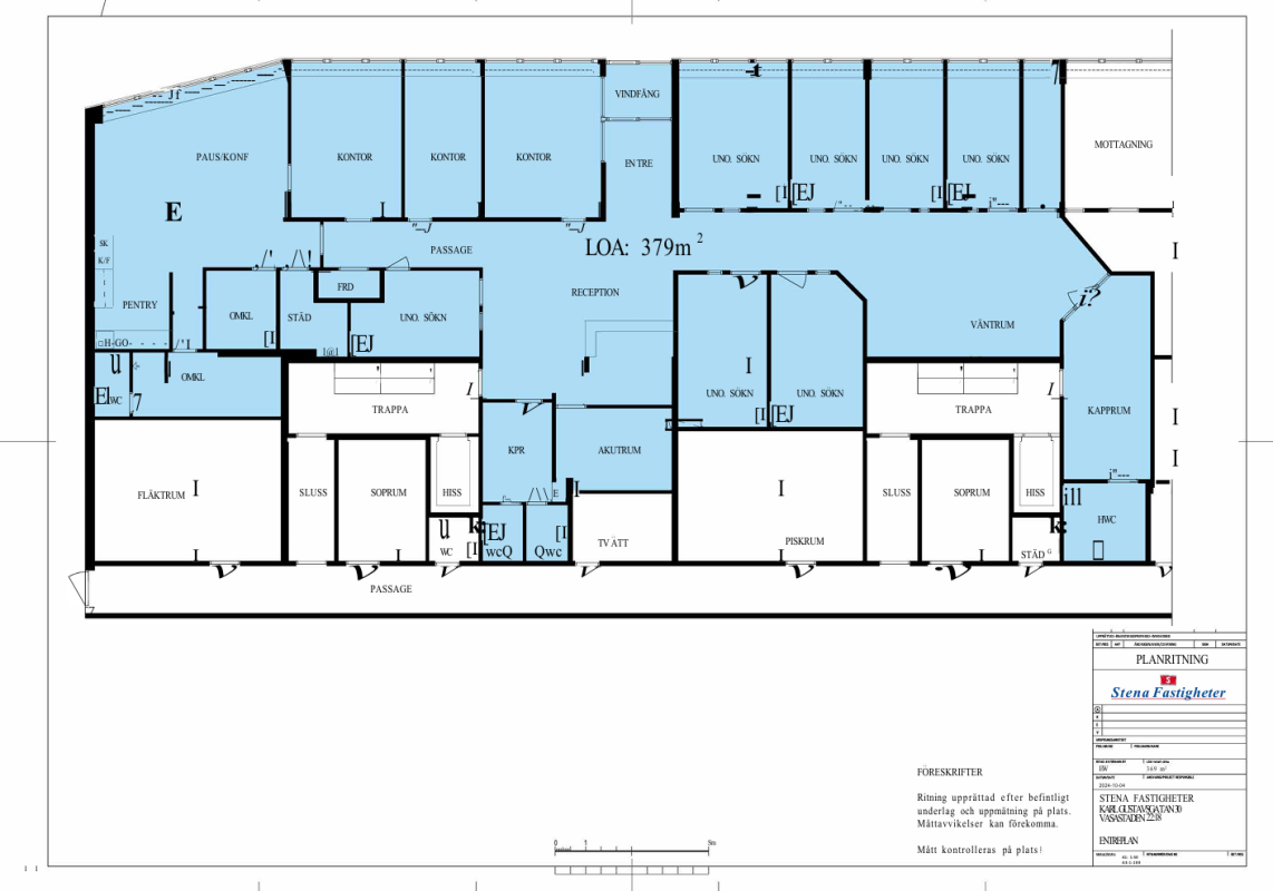
- 379 m²
- Tidigast i november 2025
Vårdlokal ledig på Karl Gustavsgatan! Nu har ni chansen att ta över en rymlig och välanpassad lokal på ca 379 kvm i attraktiva Vasastan! Denna lokal har tidigare använts som vårdcentral och är perfekt för liknande verksamhet, men kan även anpassas för andra ändamål. Lokalen erbjuder en flexibel planlösning med både mindre rum och större öppna ytor, vilket ger stora möjligheter att skapa en verksamhet som passar just era behov. Här finns även ett stort kök och flera toaletter, samt indraget vatten i alla rum – en stor fördel för vård- och kontorsverksamheter. Med sitt strategiska läge mitt i ett bostadsområde finns här en fantastisk möjlighet att möta efterfrågan från lokalbefolkningen och skapa en verksamhet med starkt kundunderlag. Lokalen har en takhöjd på 2,50 meter och tillåter omomsad verksamhet. Inflyttning möjlig från november 2025. Ta chansen att etablera er i denna mångsidiga lokal – kontakta oss för mer information och visning!
Om lokalen
- Lokaltyper
- Vårdlokal / Kontor
- Total yta
- 379 m²
- Adress
- Karl Gustavsgatan 32
- Område
- Centrum
- Kommun
- Göteborgs kommun
- Tillträde
- Tidigast i november 2025
- Objektsnummer
- 41976119
Beskrivning
Vårdlokal ledig på Karl Gustavsgatan!
Nu har ni chansen att ta över en rymlig och välanpassad lokal på ca 379 kvm i attraktiva Vasastan! Denna lokal har tidigare använts som vårdcentral och är perfekt för liknande verksamhet, men kan även anpassas för andra ändamål.
Lokalen erbjuder en flexibel planlösning med både mindre rum och större öppna ytor, vilket ger stora möjligheter att skapa en verksamhet som passar just era behov. Här finns även ett stort kök och flera toaletter, samt indraget vatten i alla rum – en stor fördel för vård- och kontorsverksamheter.
Med sitt strategiska läge mitt i ett bostadsområde finns här en fantastisk möjlighet att möta efterfrågan från lokalbefolkningen och skapa en verksamhet med starkt kundunderlag. Lokalen har en takhöjd på 2,50 meter och tillåter omomsad verksamhet.
Inflyttning möjlig från november 2025.
Ta chansen att etablera er i denna mångsidiga lokal – kontakta oss för mer information och visning!
Fastigheten
Fastigheten är belägen i en vändzon mitt i ett bostadsområde, närhet till kollektivtrafik och andra bekvämligheter.
Bekvämt med parkeringsmöjligheter i närheten.
Kommunikation
Flera spårvagnslinjer passerar i närheten, bland annat linjerna 2, 3, 7 och 10, med hållplatser vid Vasaplatsen, Valand och Hagakyrkan. Detta ger smidiga förbindelser till både centrum, Linné och andra stadsdelar.
Flera busslinjer trafikerar området och knyter samman Vasastaden med resten av Göteborg.
Lokalen ligger nära större trafikleder, vilket gör det enkelt att ta sig hit med bil.
Vasastaden är en cykelvänlig stadsdel med bra cykelbanor och gott om cykelparkeringar i området.
Med sitt centrala läge och utmärkta kommunikationer är lokalen lättillgänglig för både anställda och besökare, oavsett färdsätt.
Parkering
Ja







