Argongatan 14, Åbro, Mölndal
Lokalisera AB
2 003 m²
Hyra: Ej angiven
Tillträde: Ej angivet
Lager med stora uppställningsytor och utmärkt logistikläge i Åbro.
Med ett utmärkt läge i Åbro, ett av Göteborgs mest tillgängliga och expansiva företagsområden, finns nu denna välplanerade kombinationslokal för uthyrning.
Här erbjuds stora lagerytor, flera portar för smidig in- och utlastning samt en generös, asfalterad och inhägnad gårdsyta som lämpar sig väl för uppställning, rangering och fordonshantering. Lokalen är utrustad med två lastbryggo och tre markportar (i dagsläget förbyggda) som ger mycket god tillgänglighet för transporter och logistik.
Ytfördelning:
Höglager: ca 1 600 m (2st lastbryggor och 3st markportar)
Verkstad: ca 118 m
Kontor: ca 285 m (plan 2)
Uppställningsyta: ca 2 500 m
Till lokalen hör en inhägnad gårdsyta om upp till cirka 2 500 m med direkt access från lager- och verkstadsdelen. Ett ypperligt tillfälle för verksamheter inom exempelvis entreprenad, logistik, fordon eller materialhantering som söker en säker, lättillgänglig och välbelägen uppställningsyta.
Läget i Åbro är både närcentralt och strategiskt, med direkt anslutning till Söderleden, E6, R40 och E45. Landvetter flygplats nås på cirka 20 minuter, och kollektivtrafiken är väl utbyggd med bland annat Lila Express och regionaltåg från Mölndals station.
Kontakta Lokalisera för mer information eller för att boka en visning.
Lokaltyper
Typ: Kontor, Produktionslokal, Lagerlokal, Övrig lokal
Minsta storlek: 2003 m²
Största storlek: 2003 m²
Omgivning
Åbro Företagsområde, som ligger i Mölndal, har ett gott företagsklimat som passar såväl det lilla som stora företaget. Området har god tillväxt och i nuläget byggs flertalet fastigheter inom handel, logistik och life science/forskning. Tack vare det goda läget längsmed Söderleden och E6/E20 finns även möjlighet till god tillgänglighet och bra exponering.
Parkeringsmöjlighet: Bra parkering runt fastigheten
Närservice: Det finns ett bra utbud av lunchrestauranger i området. Närhet till både Mölndals centrum/Mölndals Galleria och Sisjöns handelsområde där all tänkbar service finns tillgänglig.
Kommunikation
Med bil kommer du snabbt ut på både söderleden och E6:an. Restid med bil till Mölndals centrum ca 5 min, Sisjön ca 7 min, Frölunda Torg ca 10 min, Göteborg city ca 15-20 min, Landvetter flygplats ca 20 min.
Med kollektivt reser du enkelt och snabbt till/från Mölndals centrum för vidare anknytningar med tåg/buss/spårvagn. Hållplatsen Kryptongatan finns direkt utanför fastigheten med frekventa avgångar.
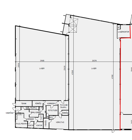
Planlösning
Ytor
Höglager: 1600 m (3st markportar och 2st lastbryggor)
Kontor: 285 m (plan 2)
Verkstad: 118 m
Uppställnignsyta: 2500 m
Annonsinformation
Publicerad: 2025-10-09
Objektsnummer: 41992816
















