Vuoskonjärvivägen 17, Gällivare
NP3 Fastigheter AB (publ)
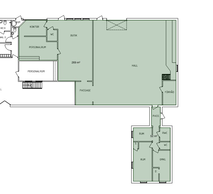
Annons max269–321 m²
Hyra: Ej angiven
Tillträde: Ej angivet
Industrilokal på Gällivare företagscentrum
Industrilokal blir ledig för uthyrning på Gällivare företagscentrum.
Lokalen består av en industrihall, förrådsytor, butiksyta, kontorsrum, wc och personalytor. Möjlighet finns till anpassning av lokalen.
I anslutning till lokalen finns parkeringsplatser och möjlighet till markarrende.
Välkommen att kontakta oss för mer information och visning!
Dokument
Lokaltyper
Typ: Kontor, Butikslokal, Produktionslokal, Lagerlokal, Verkstad, Logistiklokal
Minsta storlek: 269 m²
Största storlek: 321 m²
Omgivning
På Gällivare företagscentrum blir ni granne med Konecranes, Granitor, PostNord, Metso m.fl.
Annonsinformation
Publicerad: 2026-03-30
Objektsnummer: 41997831





