von Utfallsgatan 24, Östra Göteborg, Göteborg
loqalo AB
440 m²
Hyra: Ej angiven
Tillträde: Ej angivet
Lokalens egenskaper
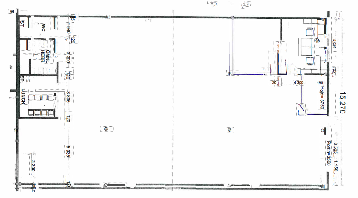
Välplanerad lagerlokal om totalt ca 440 kvm med tillhörande kontors- och personalytor om ca 90 kvm. Lokalen är belägen i markplan och erbjuder smidig access via en port (ca 4 x 4 meter), vilket gör den idealisk för logistik- och lagerverksamhet. Takhöjden varierar mellan 4–6 meter och bärigheten uppgår till 1 ton/kvm, vilket ger goda förutsättningar för olika typer av verksamheter.
Planlösningen är funktionell med kontor placerat vid entré och port för bra överblick, medan pentry och omklädning är avskilt placerade längre in i lokalen. Möjlighet finns att skapa fler mötesrum efter behov. Lokalen har även goda parkeringsmöjligheter direkt utanför samt ytterligare parkering i närområdet. Anpassningar kan göras i samråd med ny hyresgäst för att optimera lokalen efter verksamhetens behov.
Område
Fastigheten är belägen i Sävenäs industriområde – ett etablerat och strategiskt läge för företag inom logistik, industri och handel. Här finns närhet till flera verksamheter samt serviceutbud i form av lunchrestauranger och annan närservice inom kort avstånd. Läget ger bra förutsättningar för både verksamhet och personal.
Kommunikationer
Området har goda kommunikationer med närhet till större trafikleder som E20 och god koppling till centrala Göteborg. Bussförbindelser finns i närheten och gör det enkelt att ta sig till och från lokalen, både för personal och besökare.
Snabbfakta 🚀
✔ Lager om ca 440 kvm
✔ Kontor och personalytor ca 90 kvm
✔ Port i markplan (ca 4 x 4 m)
✔ Takhöjd 4–6 meter
✔ Bärighet 1 ton/kvm
✔ Flexibel planlösning och anpassningsmöjligheter
✔ Parkering direkt utanför lokalen
✔ Strategiskt läge i Sävenäs industriområde
Har ni frågor eller vill ni boka tid för en visning? Välkommen att kontakta oss på 031-3504900 eller hej@loqalo.se
!
Dokument
Om lokalen
- Kommun
- Göteborgs kommun
- Hiss
- Nej
- Objektsnummer
- 41998143










