Valands promenad 1-3, Kungsbacka
loqalo AB
311 m²
Hyra: Ej angiven
Tillträde: Ej angivet
Lokalens egenskaper:
Nu finns möjlighet att hyra en ljus och modern lokal om cirka 311 kvm i fastigheten Kulören, belägen mitt i Valand i Kungsbacka.
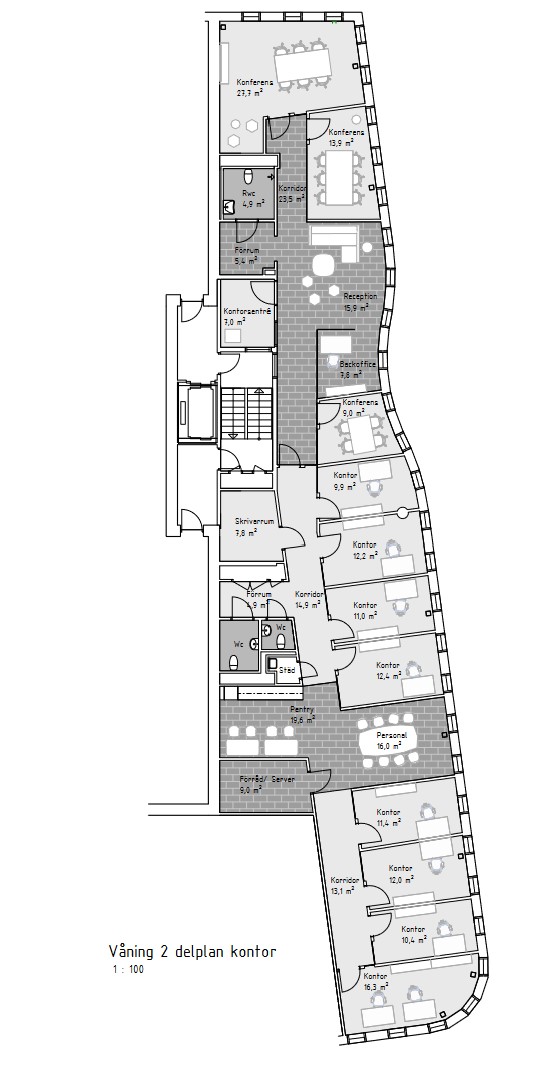
Lokalen är belägen på våningsplan 2 av 5 och erbjuder moderna kontorsrum och mötesrum. Planlösningen omfattar även rum som passar för möten och konferens samt ett stängt kontorsrum för avskildhet och digitala möten.
Lokalen har ljusa toner och ett fint ljusinsläpp från stora fönsterpartier. Hjärtat i lokalen är ett kök med en öppen social yta som lämpar sig för lunch, fika eller informella möten.
Fastigheten Kulören består till hälften av ett inbyggt parkeringshus, vilket möjliggör smidig parkering av både bil och cykel. I källaren finns omklädningsrum samt dusch som nås med hiss från entréplan.
Område:
Lokalen är belägen i stadsdelen Valand – en ny stadsdel i centrala Kungsbacka där bostäder och kontor samsas längs Valands promenad. Området knyter ihop Kungsmässan med den äldre trästaden vid Kungsbacka torg och erbjuder ett utbud av restauranger och butiker.
Valand har en genomtänkt identitet med fokus på arkitektur, utbud och miljöer.
Kommunikationer:
Resecentrum nås på cirka fem minuters promenad. E6 nås på cirka tre minuter med bil.
Snabbfakta:
Yta: ca 311 kvm
Våningsplan: 2 av 5
Moderna kontorsrum och mötesrum
Rum för konferens och digitala möten
Stängt kontorsrum
Kök med öppen social yta
Stora fönster med bra ljusinsläpp
Omklädningsrum och dusch i källare
Har ni frågor eller vill boka tid för visning?
Välkomna att kontakta oss på 031-350 49 00 eller hej@loqalo.se!
Lokaltyper
Typ: Kontor
Minsta storlek: 311 m²
Största storlek: 311 m²
Egenskaper
Annonsinformation
Publicerad: 2026-04-03
Objektsnummer: 41997939







