Västmannagatan 3, Vasastan, Stockholm
NEXTOR AB
92 m²
Hyra: 3100 kr/m²/år
Tillträde: Ej angivet
Toppfräsch lokal utan överlåtelseavgift!
Välkommen till denna mycket centralt belägna kontorslokal om 92 kvm på adress Västmannagatan 3!
Lokalen är belägen i ett centralt och väl etablerat kontorsläge i Vasastan, med närhet till Odenplan och city. Det direkta närområdet utgörs av en blandning av kontor, bostäder och service, vilket skapar en trevlig och mångsidig stadsmiljö.
I direkt närhet finns flertalet trevliga restauranger, caféer och övrig service. Gatan i sig har en lugnare karaktär, samtidigt som närheten till större stråk ger enkel tillgång till kollektivtrafik och övrigt serviceutbud.
Kommunikationerna är mycket goda, med Odenplans tunnelbana och pendeltåg samt flera busslinjer inom kort gångavstånd.
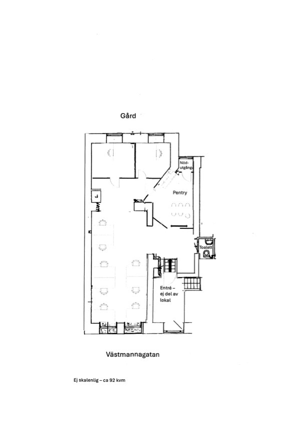
Lokalen nås via en ingång direkt från gatan. Här möter en öppen kontorsyta upp med plats för flertalet skrivbord. Vidare in i lokalen finns två separata rum som fungerar utmärkt som mötesrum eller arbetsrum för 1-2 personer.
I lokalen finns ett kök i ett eget utrymme med gott om plats för ett matbord.
Lokalen har ett trevligt ljusinsläpp från fönstren mot gatan i den främre delen samt mot gården i de bakre rummen.
En mekanisk ventilation finns installerad som skapar ett gott arbetsklimat i lokalen årets alla dagar.
Ingen överlåtelseavgift utgår!
Se gärna film om objektet via länken!
Yta: 92 kvm
Hyra: 23 767 kr/mån ex moms
Fastighetsskatt: 2869 kr/mån
Nextor Group AB
Viktor Ritterstrandh
viktor@nextor.se
0736-877397
08-309200
Lokaltyper
Typ: Kontor, Butikslokal, Övrig lokal
Minsta storlek: 92 m²
Största storlek: 92 m²
Villkor lokal
Hyra: 3100 kr/m²/år
Annonsinformation
Publicerad: 2026-02-10
Objektsnummer: 41996361










