Verkstad, Terminalvägen 21, Timrå, Sörberge
- 300–4 900 m²
- Omgående
Nybyggd (April 2023) lagerbyggnad som utgörs av moderna lager- och kontorslokaler av hög kvalitet, fördelat på ett markplan samt entresol.
Om lokalen
- Lokaltyper
- Verkstad / Kontor / Lagerlokal
- Total yta
- 300–4 900 m²
- Adress
- Terminalvägen 21
- Område
- Timrå
- Kommun
- Timrå kommun
- Byggår
- 2023
- Tillträde
- Omgående
- Objektsnummer
- 41992802
Beskrivning
Nybyggd (April 2023) lagerbyggnad som utgörs av moderna lager- och kontorslokaler av hög kvalitet, fördelat på ett markplan samt entresol.
Fastigheten Vivsta 13:92 är belägen på Terminalvägen 21 i Timrå, med direkt anslutning till Timrå industriområdes infart intill Europaväg E4.
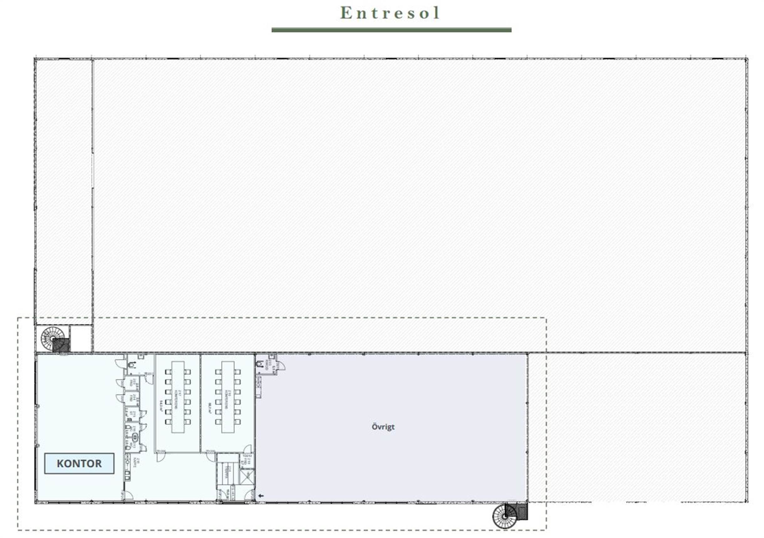
Övervägande del av markplan utgörs av lagerytor och i anslutning till lagerlokalen finns två portar avsedda för ankommande och avgående gods, samt en yta avsedd för varuutlämning. Resterande del av markplanet utgörs av en större kontorsdel, övriga lagerutrymmen, teknikrum och en maskinhall. Entresolplanet inrymmer kontorslokaler.
Kommunikationer
Europaväg E4
Närhet till E4:an med av- och påfarter är av största vikt för lager- och logistikverksamhet.
Sundsvall centralstation
Sundsvalls resecentrum genomgick en omfattande upprustning 2019-2021 vilket gjort staden än mer tillgänglig för både gods- och persontransport.
Planlösning
Byggnadens totala uthyrbara area uppgår till cirka 4 900 m2, varav 3 100 m2 utgörs av lager och
resterande 1 800 m2 av kontorsytor. Den befintliga byggnaden upptar cirka 35 procent av tomtarealen. Obebyggda ytor utgörs främst av asfalterade körytor, parkeringsplatser, samt ett
bevarat skogsparti. Tomten är helt inhägnad och vid infarten finns en elektrisk grind.
Service
Fastigheten är strategiskt belägen i Timrå industriområde med direkt anslutning till E4:an. Närheten till hamnområde, flygplats och centralstation länkar även samman Fastigheten med nationella och
internationella marknader.
Vägbeskrivning
Terminalvägen 21, Timrå Vivsta
Uppvärmning
Fjärrvärme





