Lagerlokal, Skogsvägen 1A, Hisingen, Göteborg
- 200 m²
Lagerlokal från ca 200 kvm
Om lokalen
- Lokaltyp
- Lagerlokal
- Total yta
- 200 m²
- Adress
- Skogsvägen 1A
- Område
- Hisingen
- Kommun
- Göteborgs kommun
- Hiss
- Nej
- Objektsnummer
- 41990822
Beskrivning
Letar du efter en flexibel industrilokal med både lager, kontor och goda personalutrymmen?
Då är denna fastighet något för dig!
Denna rymliga industrifastighet erbjuder en kombination av funktionella ytor – perfekt för verksamheter som kräver både lager, kontor och verkstad.
Lokalen består av en stor lagerdel med generös takhöjd och port för smidig in- och utlastning, en ljus kontorsdel med plats för flera arbetsplatser samt välplanerade personalutrymmen med kök, omklädning och pausytor.
Utomhus finns en stor asfalterad parkering och gott om upplagsyta, vilket gör fastigheten idealisk för företag inom logistik, bygg, service eller produktion.
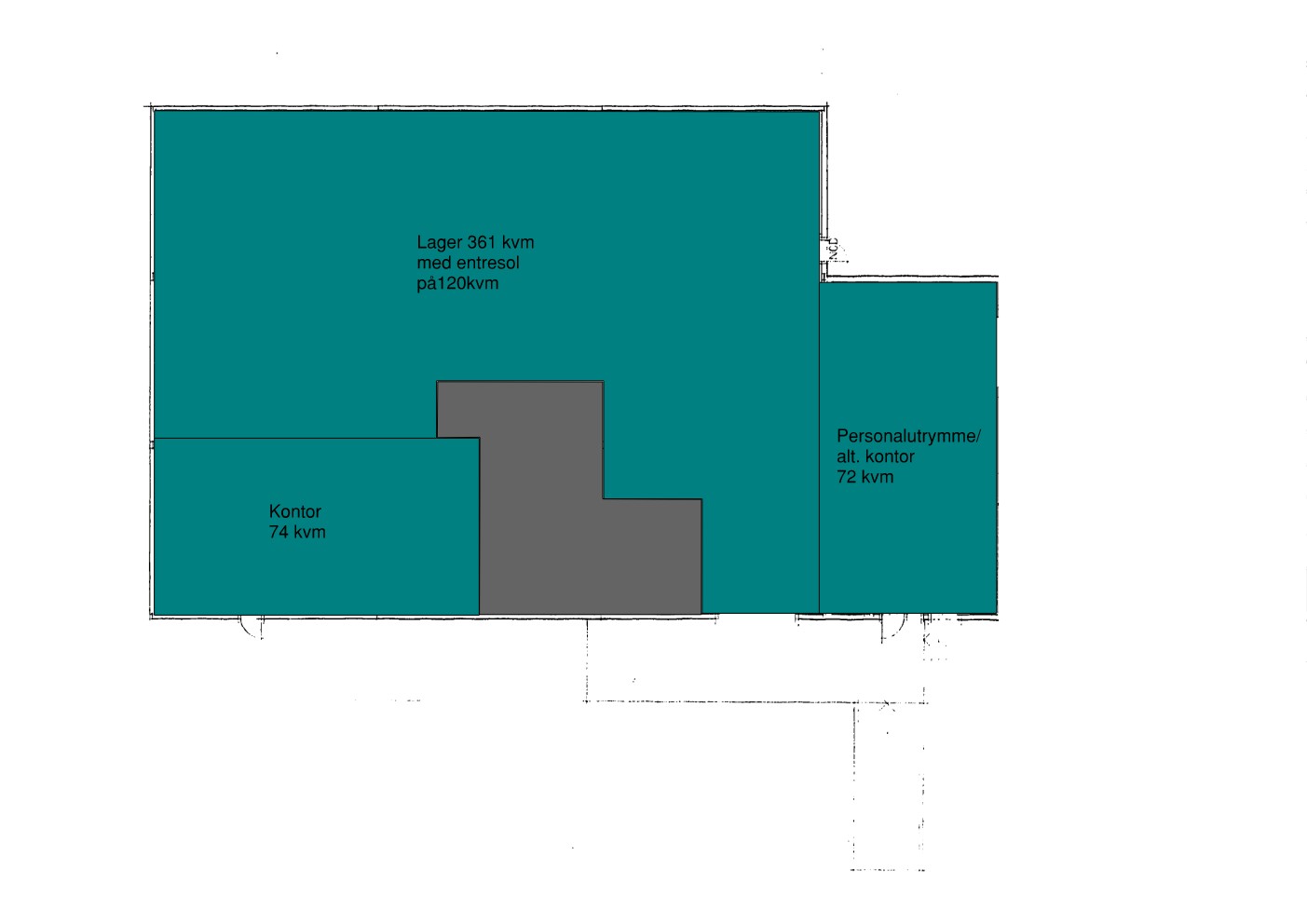
Industrifastighet - lager 361kvm, entresol 120kvm, två separata kontor/personalutrymmen 146kvm.
Fastigheten kan hyras i sin helhet – eller delas upp i två separata enheter om mindre lokal önskas.
________________________________________
Fack 1 – Lager, kontor och personalutrymmen (180kvm lager, 80kvm entresol, 74 kvm kontor).
Fack 1 erbjuder en stor lagerdel med port, tillhörande kontorsrum och personalytor.
Perfekt för verksamheter som behöver både kontors- och lagerytor i direkt anslutning till varandra.
Fack 2 – Flexibel lokal för lager, verkstad eller kontor (Lager 130kvm, enteresol 40kvm, Kontor 72kvm).
Fack 2 består av en öppen och anpassningsbar yta som lämpar sig för flera typer av verksamheter.
Här finns möjlighet till separat tillträde och tillgång till gemensamma personalutrymmen.











