Sjögatan 1B, Sjögatan, Örnsköldsvik
Nyfosa Sundsvall
Annons plus75 m²
Hyra: Ej angiven
Tillträde: Enligt överenskommelse
Behändig lokal för lager, kontor, ateljé e.t.c. i attraktivt läge på Sjögatan invid Järvedsleden
Denna behändiga lokal i ett attraktivt och lättillgängligt läge på Sjögatan, invid Järvedsleden, medger en mängd olika användningsområden. Lokalen ligger på källarvåningen och kan fungera som exempelvis kontor, ateljé eller lager, och den har även ett personalutrymme i form av pentry med pausyta, samt WC med dusch. Lokalen hyrs i dagsläget av en befintlig hyresgäst, vilken kan tänka sig att flytta ut med kort varsel.
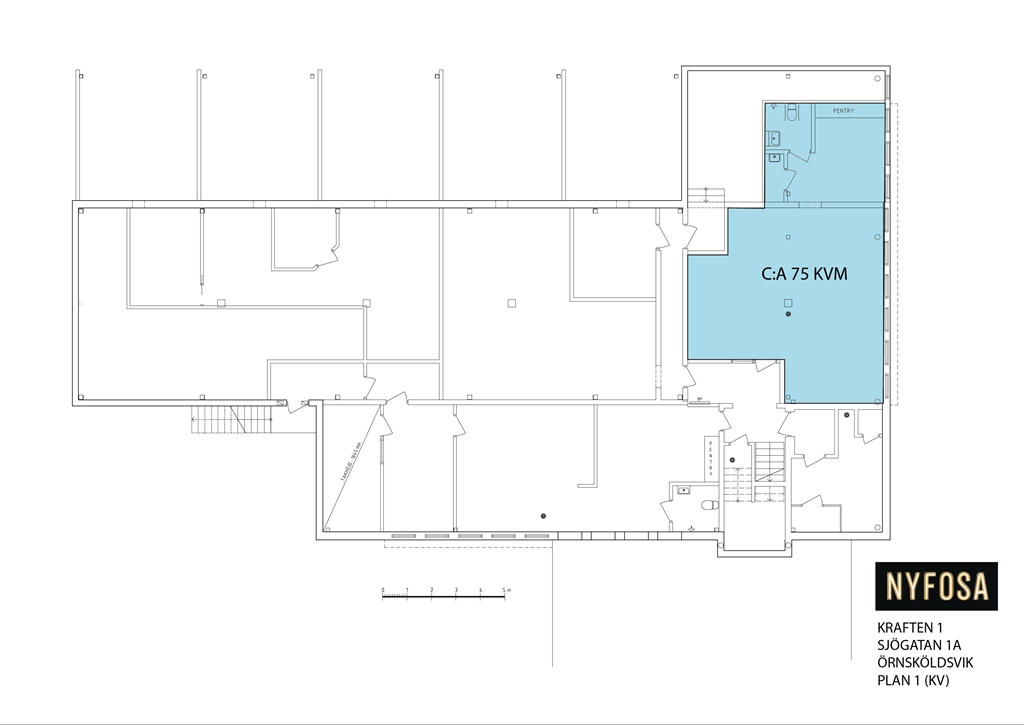
Den bifogade planritningen visar lokalens befintliga planlösning, vilken dock medger vissa möjligheter till anpassning vid behov. Välkommen att kontakta oss för visning och en presentation av de möjligheter vi har att hjälpa er med att skapa den ideala lokalen som passar er specifika verksamhet och behov.
Lokaltyper
Typ: Kontor, Lagerlokal
Minsta storlek: 75 m²
Största storlek: 75 m²
Våningsplan: -1
Villkor lokal
Tillträde: Enligt överenskommelse
Omgivning
Fastigheten ligger cirka en halv km sydöst om centrala Örnsköldsvik. Fastighetens närmaste omgivningar utgörs av en blandning av kontors- och lättare industrifastigheter.
Parkeringsmöjlighet: Det finns gott om motorvärmarplatser på fastigheten i nära anslutning till lokalen
Närservice: I företagsområdet vid Sjögatan finns gott om företag som erbjuder en mängd olika tjänster och service till andra företag, och till centrum, med all önskvärd service, tar det bara några minuter med bil.
Kommunikation
Det är mycket enkelt att ta sig till fastigheten som ligger strategiskt belägen intill Järvedsleden. Busshållplats Sjögatan som trafikeras av ett stort antal busslinjer, ligger mindre än 100 meter från lokalen.
Planlösning
Lokalen består i huvudsak av en större öppen yta, som kan fungera som lager, kontor, ateljé etc. Det finns även ett personalutrymme med pentry, pausyta, WC, dusch samt städskrubb.
Övrig information
Fastigheten omfattar en areal om 26 726 m² och innehas med äganderätt. Tomten är plan och den obebyggda delen är asfalterad.
Annonsinformation
Publicerad: 2026-02-16
Objektsnummer: 41996603








