Butikslokal, Rydsdalsvägen 11, Norra Ryd, Skede
- 3 800 m²
- Omgående. Enligt ÖK
“Rymlig, modern lokal 3 800 kvm med öppna ytor, högt i tak, bra skyltläge och lättillgängligt läge på Rydsdalsvägen, Skövde.”
Om lokalen
- Lokaltyper
- Butikslokal / Kontor / Lagerlokal / Kontorshotell / Övrig lokal / Verkstad
- Total yta
- 3 800 m²
- Adress
- Rydsdalsvägen 11
- Område
- Norra Ryd
- Kommun
- Vetlanda kommun
- Byggår
- 2020
- Våning
- 2
- Tillträde
- Omgående. Enligt ÖK
- Objektsnummer
- 41994414
Beskrivning
“Rymlig, modern lokal 3 800 kvm med öppna ytor, högt i tak, bra skyltläge och lättillgängligt läge på Rydsdalsvägen, Skövde.”
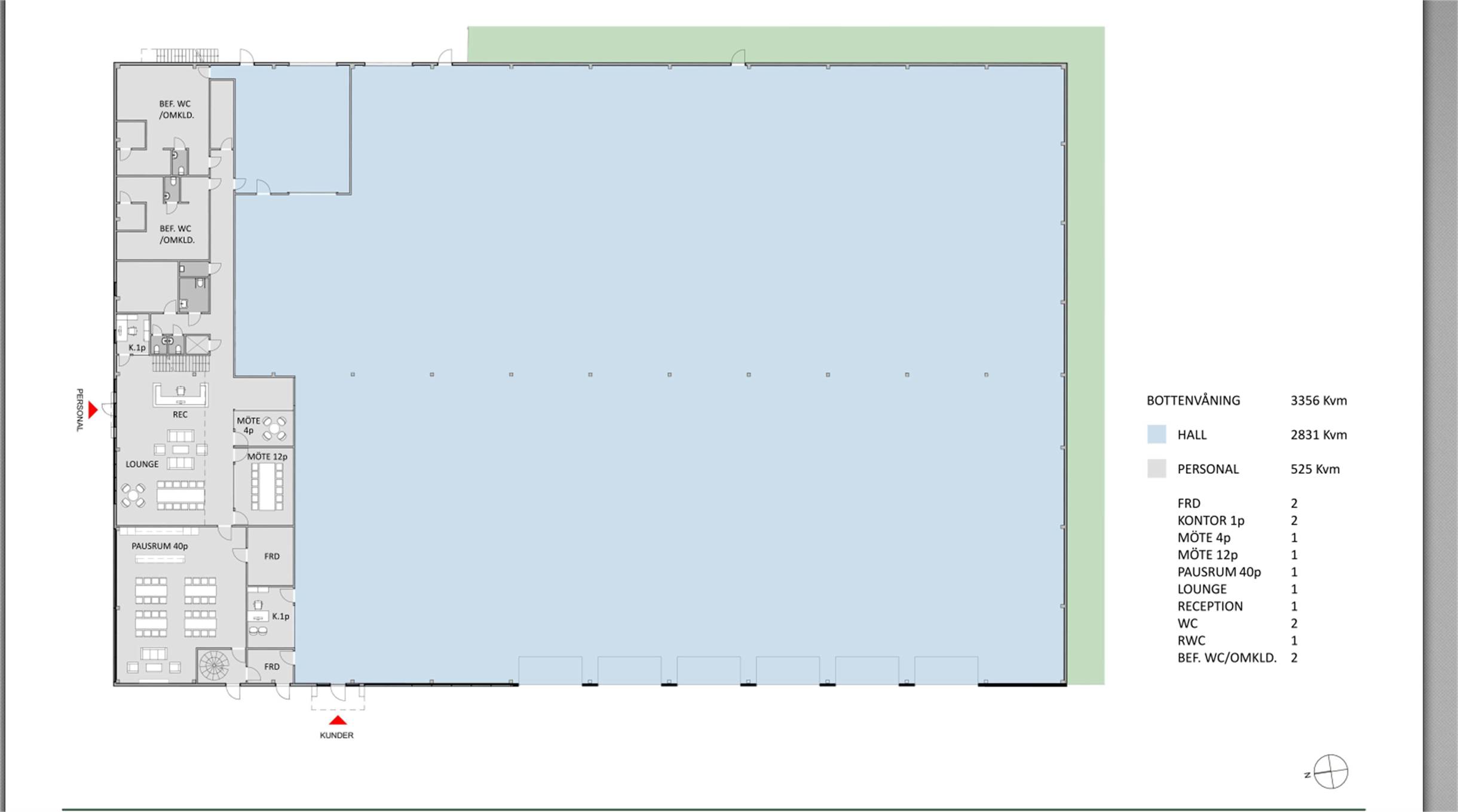
modern, nybyggd lokal med generösa ytor och hög standard, belägen i ett etablerat verksamhetsområde på Rydsdalsvägen 11 i Skövde. Lokalen erbjuder totalt 3 800 kvm, vilket inkluderar stora öppna hallytor samt moderna kontors- och personalutrymmen.
Lokalbeskrivning
Fastigheten har stora, öppna ytor utan störande pelare och hög takhöjd, vilket skapar en flexibel miljö som lämpar sig för olika typer av verksamheter såsom lager, produktion, idrott, event eller showroom. Lokalen har även moderna kontor, mötesrum, omklädningsrum och pausutrymmen, vilket gör den komplett för både administrativ och operativ verksamhet.
Omgivning
Fastigheten ligger i ett lugnt och öppet verksamhetsområde med omgivande grönområden och fri utsikt.
Området präglas av moderna industribyggnader och gott om utrymme, vilket skapar en trivsam och lättillgänglig miljö.
Kommunikationer
Läget på Rydsdalsvägen kombinerar hög tillgänglighet med bra synlighet.
Härifrån tar du dig snabbt ut på väg 26 och riksväg 49, och du når centrala Skövde på bara några minuter.
Tågstationen och E20 finns inom kort räckhåll, vilket ger utmärkta förutsättningar för både personal, kunder och transporter.
Planlösning
Öppen.
Parkering
Bra parkeringsmöjligheter
Service
I närområdet finns god service med flera butiker, restauranger och serviceföretag.
På bara några minuters bilväg ligger handelsområdena Stallsiken och Elins Esplanad, som erbjuder ett brett utbud av butiker, matställen och annan service.
Vägbeskrivning
Fastigheten är belägen i Norra Ryd, ett etablerat industri- och företagsområde i Skövde, med närhet till både stadens centrum och större trafikleder.
Vägbeskrivning:
Från Skövde centrum, följ Mariestadsvägen norrut mot Norra Ryd.
Sväng vänster i
Skyltläge
Lokalen erbjuder utmärkt skyltläge mot Rydsdalsvägen – en vältrafikerad väg med hög synlighet. Här finns goda möjligheter att profilera företaget och stärka varumärket med tydlig exponering mot både biltrafik och besökare.
Närliggande företag
AF Fordonsvård Skövde
Rydsdal i Skövde AB
Parafon (Rockwool)
Uppvärmning
Fjärrvärme






