Kontor, Rökerigatan 20, Johanneshov/Globen, Johanneshov
- 741 m²
Välplanerad kontorslokal med inlastning i Slakthusområdet!
Om lokalen
- Lokaltyper
- Kontor / Övrig lokal
- Total yta
- 741 m²
- Adress
- Rökerigatan 20
- Område
- Johanneshov/Globen
- Kommun
- Stockholms kommun
- Objektsnummer
- 41995268
Beskrivning
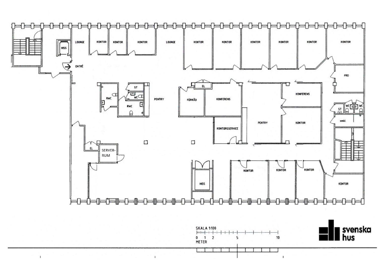
Välkommen till en välplanerad och funktionell kontorslokal om ca 741 kvm på Rökerigatan 20, plan 1, mitt i Slakthusområdet. Här erbjuds en lokal med tydlig struktur, god rumsindelning och stora möjligheter att anpassa efter verksamhetens behov – i ett område som just nu genomgår en av Stockholms mest spännande stadsutvecklingar.
Lokalen nås enkelt via markplan och personhiss som stannar direkt utanför entrén. Därutöver finns lasthiss som stannar i lokalen, med in och utlastning via port i markplan från ena långsidan, vilket gör lokalen väl lämpad även för verksamheter med behov av varuhantering eller teknisk utrustning. Planlösningen kombinerar enskilda rum med öppnare ytor och gemensamma funktioner, vilket skapar goda förutsättningar för både fokus och samarbete.
Två pentryn med tillhörande loungeytor fungerar som naturliga samlingspunkter för personalen. Därtill finns flera mötesrum i olika storlekar, inklusive större konferensrum som lämpar sig väl för möten, presentationer och utbildningar.
Lokalen är fullt utrustad för kontorsverksamhet med flera WC inklusive RWC, serverrum, förråd och teknikytor. Fiber är indraget.
Fördelar med lokalen i korthet:
✅ Många kontorsrum i varierande storlek
✅ Flera mötesrum samt större konferensrum
✅ Två pentryn med loungeytor
✅ Flera WC inklusive RWC
✅ Serverrum, förråd och teknikytor
✅ Lasthiss som stannar i lokalen med in och utlastning via port i markplan
✅ Personhiss som stannar direkt utanför lokalens entré
✅ Flexibel lokal som kan anpassas för kontor, showroom, studio eller lätt verksamhet
Området erbjuder redan idag god service för företag, med bland annat kontorshotell, coworking såsom "Fabriken" i fastigheten samt gemensamma konferensmöjligheter. Här får ni en funktionell etablering i ett område med stark företagsam puls och tydlig framtidsinriktning.
Lokalen hyrs ut utan besittningsskydd, då området genomgår en större förändring och fastighetsägaren vill ha möjlighet att utveckla fastigheten i takt med att området tar ny form.
Kontakta uthyraren för mer information eller för att boka visning!
Omgivning
Slakthusområdet är ett av Stockholms mest expansiva områden och genomgår just nu en omfattande stadsutveckling. Området utvecklas till en levande stadsdel med arbetsplatser, service, kultur och nöjen, samtidigt som den industriella karaktären bevaras.
Här har ni chansen att vara med från början av en ny era – att profilera er som ett företag som värdesätter innovation, samverkan och ett dynamiskt sammanhang. Områdets pågående utveckling och ökande attraktionskraft kommer sannolikt att gynna de företag som redan etablerat sig här, genom ökad synlighet, nätverksmöjligheter och personalrekrytering (många talanger lockas av den moderna, kreativa miljön).
Närheten till Globen, Tele2 Arena och Gullmarsplan ger området både puls och stark tillgänglighet, vilket gör det attraktivt för företag som vill etablera sig i ett område med tydlig framtidspotential.
Parkering
Parkeringsplatser finns att hyra intill fastigheten.













