Lundavägen 142, Kirseberg, Malmö
CA Fastigheter AB - Malmö
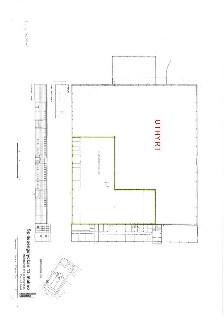
Annons plus3 006 m²
Hyra: Ej angiven
Tillträde: Enligt överenskommelse
Lager med tillhörande kontor på 1,2 eller 3 våningsplan.
Nu finns möjlighet att hyra en rymlig och flexibel lager- och kontorslokal om totalt ca 3 000 kvm i ett av områdets mest strategiska lägen, med direkt access till både ringleden och intilliggande Europavägar. Lokalen erbjuder stora anpassningsmöjligheter och kan utformas i nära dialog med ny hyresgäst för att möta specifika krav och verksamhetsbehov.
Lager & kontor
Lagerdelen omfattar ca 1 680 kvm och är utrustad med ny LED-belysning för en ljus och energieffektiv arbetsmiljö. Här finns även en port samt en separat butiksentré , vilket ger smidig logistik och god kundtillgänglighet.
Kontorsytorna är flexibla och kan anpassas mellan 386 kvm och totalt 1 326 kvm. De rymmer bland annat pentry, kontorsrum, konferensrum och omklädningsrum allt med möjlighet att fräschas upp och anpassas efter önskemål.
På plan 1 finns ca 386 kvm kontorsyta i direkt anslutning till lagret, vilket skapar ett effektivt flöde mellan administration och lager.
På plan 2 och 3 finns ytterligare 470 kvm per plan, sammanbundna av spiraltrappor som knyter ihop hela lokalen.
Fastigheten är utrustad med hiss och erbjuder dessutom god tillgång till parkeringsplatser.
Lokalen lämpar sig utmärkt för verksamheter inom lager, logistik, distribution eller produktion särskilt för företag som söker en kombination av funktionella lagerytor och representativa kontorsutrymmen med mycket god tillgänglighet.
Lokalens höjdpunkter
1 680 kvm lageryta med ny LED-belysning
1 port samt separat 1 butiksentré
Flexibla kontorsytor: 386 - 1 326 kvm
Kontorsdel med hiss
Goda anpassningsmöjligheter efter hyresgästens behov
Direkt anslutning mellan lager och kontor
Lokaltyper
Typ: Kontor, Butikslokal, Lagerlokal
Minsta storlek: 3006 m²
Största storlek: 3006 m²
Våningsplan: 2
Byggnad
Byggår: 1970
Egenskaper
Villkor lokal
Tillträde: Enligt överenskommelse
Omgivning
Fastigheten är belägen i ett attraktivt område med närhet till ringleden och Europavägarna, vilket ger utmärkta kommunikations- och transportmöjligheter. Området domineras av verksamheter inom handel, logistik och lätt industri en fördelaktig miljö för företag med behov av både lager och kontor på ett strategiskt läge.
Parkeringsmöjlighet: Erbjuder god tillgång till parkeringsplatser.
Annonsinformation
Publicerad: 2023-11-27
Objektsnummer: 41969032











