Kontor, Kungsgatan 55, Inom Vallgraven, Göteborg
- 261 m²
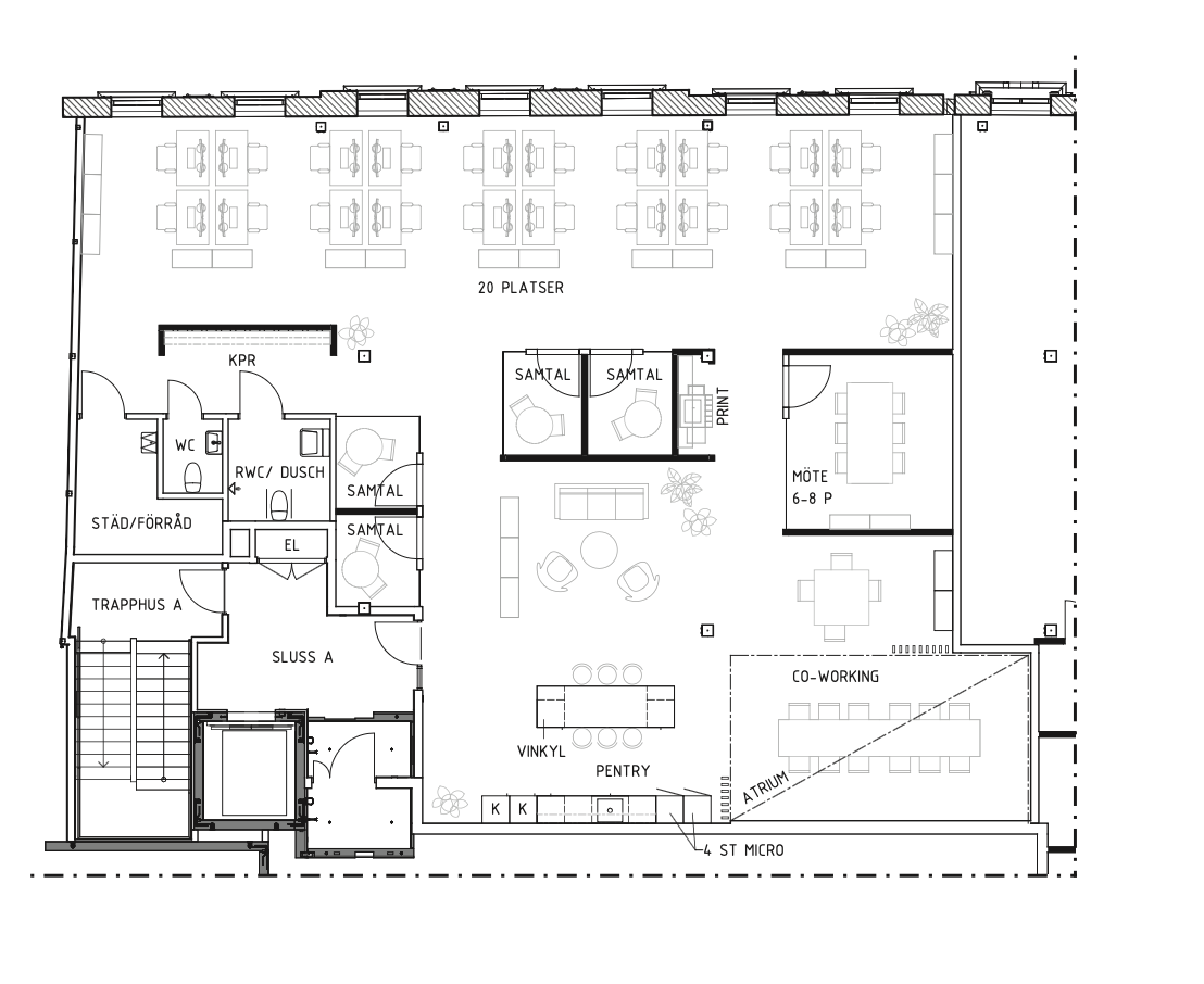
På attraktivt läge mitt på Kungsgatan i Göteborg erbjuds nu en toppklassig lokal om 261 kvm. Lokalen kombinerar modern funktionalitet med representativ känsla och passar utmärkt för företag som värdesätter både arbetsmiljö och läge. Planlösningen är genomtänkt och flexibel med ett generöst öppet landskap som skapar goda förutsättningar för samarbete och effektivitet. Här finns även flera mötesrum i olika storlekar, vilket ger möjlighet till både formella möten och kreativa workshops. De avskilda rummen bidrar till en lugn arbetsmiljö utan att kompromissa med lokalens öppna och sociala karaktär. Det stora, öppna pentryt fungerar som en naturlig samlingspunkt i lokalen – en plats för pauser, informella samtal och gemenskap. Den öppna utformningen ger ett luftigt intryck och förstärker lokalens moderna uttryck.
Om lokalen
- Lokaltyp
- Kontor
- Total yta
- 261 m²
- Adress
- Kungsgatan 55
- Område
- Inom Vallgraven
- Kommun
- Göteborgs kommun
- Hiss
- Ja
- Våning
- 4
- Takhöjd
- 400 cm
- Objektsnummer
- 41996228
Beskrivning
På attraktivt läge mitt på Kungsgatan i Göteborg erbjuds nu en toppklassig lokal om 261 kvm. Lokalen kombinerar modern funktionalitet med representativ känsla och passar utmärkt för företag som värdesätter både arbetsmiljö och läge.
Planlösningen är genomtänkt och flexibel med ett generöst öppet landskap som skapar goda förutsättningar för samarbete och effektivitet. Här finns även flera mötesrum i olika storlekar, vilket ger möjlighet till både formella möten och kreativa workshops. De avskilda rummen bidrar till en lugn arbetsmiljö utan att kompromissa med lokalens öppna och sociala karaktär.
Det stora, öppna pentryt fungerar som en naturlig samlingspunkt i lokalen – en plats för pauser, informella samtal och gemenskap. Den öppna utformningen ger ett luftigt intryck och förstärker lokalens moderna uttryck.
Kungsgatan är ett av Göteborgs mest levande och attraktiva stråk, med ett brett utbud av restauranger, caféer, butiker och service precis utanför dörren.
Omgivning
Kungsgatan är ett av Göteborgs mest levande och attraktiva stråk, med ett brett utbud av restauranger, caféer, butiker och service precis utanför dörren.
Parkering
Nej
Skyltläge
Nej
Karta
Bilder på lokalen
DJI_20260202162851_0007_D.JPG DJI_20260202163019_0014_D.JPG DJI_20260202163101_0018_D.JPG DJI_20260202163012_0013_D.JPG DJI_20260202163043_0016_D.JPG DJI_20260202163005_0012_D.JPG DJI_20260202162857_0008_D.JPG DJI_20260202162727_0002_D.JPG DJI_20260202163141_0021_D.JPG Skärmavbild 2026-02-03 kl. 11.10.04.png











