Kontor, Kontor - Sturegatan 19, Sundbyberg
- 285 m²
Kontor/Showroom Sundbyberg
Om lokalen
- Lokaltyper
- Kontor / Butikslokal / Övrig lokal
- Total yta
- 285 m²
- Adress
- Kontor - Sturegatan 19
- Område
- Sundbyberg
- Kommun
- Sundbybergs kommun
- Objektsnummer
- 41994236
Beskrivning
Lokal med ett absolut toppläge på Sturegatan i centrala Sundbyberg – Lokalen kan mycket väl fungera för verksamheter inom t ex Kontor, Showroom & Butik.
Välkommen till en fantastisk hörnlokal i hjärtat av Sundbyberg, belägen på Sturegatan, precis intill Sundbybergs station. Här erbjuds en rymlig och ljus lokal på hela 280 kvm.
Hela lokalen är genomgående mycket representativ och i gott skick med exklusiva materialval.
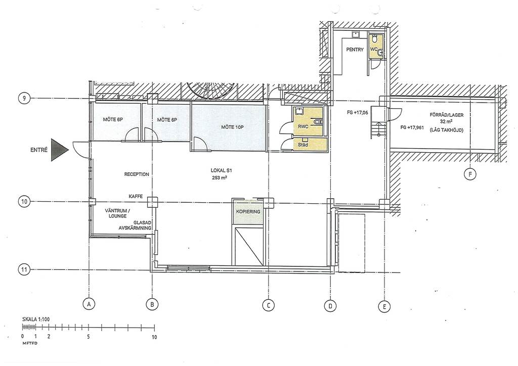
Planlösningen är mycket väl genomtänkt med ett flertal inglasade mötes & kontorsrum, modernt pentry och rymligt badrum.
Med stora, härliga fönsterpartier ut mot Sturegatan får lokalen ett fantastiskt ljusinsläpp och ett oslagbart läge . Denna lokal passar perfekt för företag som söker en synlig och lättillgänglig plats med bra kommunikationer – Sundbybergs station erbjuder både tunnelbana, pendeltåg och bussförbindelser, vilket gör att du snabbt och enkelt när hela Stockholmsregionen.
För mer information eller visning, kontakta mäklare Tillträde enligt ök. Ej mat, cafe, salong
HYRSRABATT fram till 2026-09-01 på 15 000kr/mån ( regleras via sittande hyresgäst)
Se Film: https://vimeo.com/1063131890?fl=tl&fe=ec
Hyra: 71 382kr / mån exkl. moms
Fastighetsskatt: 5 205 kr/mån exkl. moms
Övrigt: 2 020 kr/mån exkl. moms
Yta: 280 kvm
Deposition kan komma att begäras
Nextor Group AB
Johan Fahlander
Telefon: 070-46678879
johan@nextor.se













