Kamaxelgatan 11, Toftanäs, Malmö
Mileway Sweden AB
Annons max218 m²
Hyra: Ej angiven
Tillträde: Enligt överenskommelse
Ledig lagerlokal med tillhörande kontorsytor - i populära Toftanäs
Lagerfastighet med ledig lokal om ca 218 kvm, bestående av lager med tillhörande kontorsytor. Lokalen erbjuder effektiva ytor och lämpar sig väl för verksamheter inom lager, service eller lättare produktion.Lagerytan har en takhöjd om ca 6 meter och nås via en egen markport (ca 4 x 4 meter), vilket ger smidiga förutsättningar för in- och utlastning. I anslutning finns en kontorsdel med två kontorsrum, med plats för upp till fyra arbetsplatser, samt faciliteter såsom pentry och WC.Lokalen kan anpassas efter verksamhetens behov. Fastigheten är delvis inhägnad och erbjuder öppna rangerytor samt goda parkeringsmöjligheter.Höjdpunkter
• Total yta om ca 218 kvm
• Takhöjd om ca 6 meter
• Egen markport (ca 4 x 4 meter)
• Kontorsdel med upp till 4 arbetsplatser
• Pentry och WC
• Möjlighet till anpassning efter behov
• Delvis inhägnad fastighet
• Goda parkeringsmöjligheter med fri parkeringOmrådeToftanäs är ett delområde i stadsdelen Husie, cirka åtta kilometer från centrala Malmö. Toftanäs industriområde är ett av de nyare i kommunen, mellan Toftanäsvägen och Tullstorpsvägen, norr om Sallerupsvägen. Det började exploateras 1992 när Posten byggde sin terminal på området. Här erbjuds goda kommunikationsmöjligheter som trafikeras av busslinje 6 med en restid om cirka 10 minuter till Malmö centralstation.
Dokument
Lokaltyper
Typ: Kontor, Lagerlokal
Minsta storlek: 218 m²
Största storlek: 218 m²
Våningsplan: 1
Fastighet
Fastighetsbeteckning: Ventilen 4
Byggnad
Byggår: 2003
Egenskaper
Villkor lokal
Tillträde: Enligt överenskommelse
Omgivning
Parkeringsmöjlighet: Parkering finns i anslutning till fastigheten
Närservice: Bra serviceutbud med närliggande butiker som ICA Maxi, Apotek, ÖoB, Sängbutiken, Arken Zoo och gym.
Företag i närheten: Postnord, Act Logimark Sverige AB, Assemblin, DHL
Vägbeskrivning: Fastigheten ligger i anslutning till Yttre ringvägen, Sallerupsvägen och Inre ringvägen.
Kommunikation
Goda kommunikationsmöjligheter som trafikeras av buss 6 med en restid om cirka 15 minuter till Malmö centralstation.
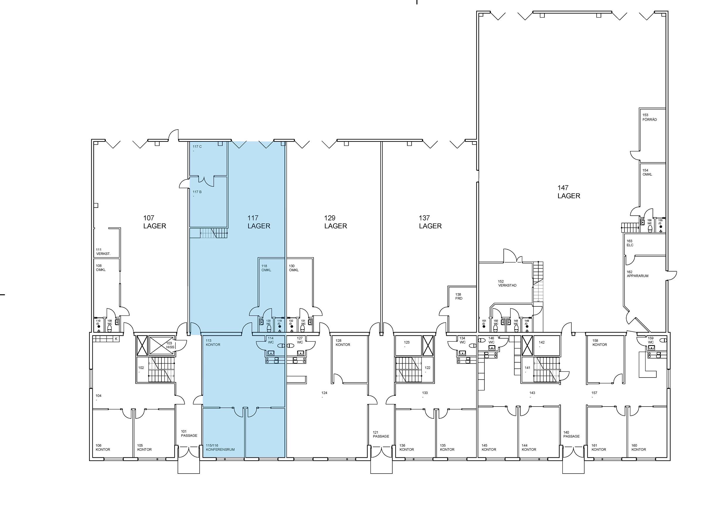
Planlösning
Se planritning bland bilder/PDF.
Annonsinformation
Publicerad: 2026-04-22
Objektsnummer: 41998353














