Johannedalsvägen 65 P, Johannedal
NP3 Fastigheter AB (publ)
Annons max1 904 m²
Hyra: Ej angiven
Tillträde: Ej angivet
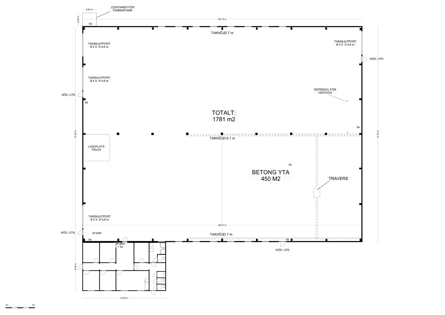
Effektiv lokal med höglager och travers (3,2ton), 4 st högportar med travers. Stor inhägnad mark.
Renoverad lokal med 4 st högportar med följande mått 4 x 4,6 m (bredd x höjd). Travers på delar av fastigheten 3,2 ton. Lättillgängliga lokaler för logistik med möjlig genomkörning i fastigheten. Stor inhägnad mark om ca 4 200 kvm.
Fastigheten ligger i Johannedals industriområde, där många företag inom lager, logistik, tillverkning, service och återvinning är etablerade. Det skapar en dynamisk miljö med goda möjligheter till samarbeten och affärer.
Dokument
Om lokalen
- Kommun
- Sundsvalls kommun
- Objektsnummer
- 41998546
Omgivning
Omgivningen kring Johannedalsvägen 65P präglas av ett tydligt industri- och logistikområde med starkt företagsfokus. Området har ett bra logistikläge med närhet till större transportleder. Johannedalsvägen används för tung trafik och lämpar sig väl för verksamheter med transporter och distribution.
Kommunikationer
Johannedals industriområde med närhet till Birsta , Alnö mm.
Bussar utanför industriområdet.
Planlösning
Höglager med ca 6 m under balk på den låga delen. Kontors- och personalutrymmen med dusch, omklädning, WC, kök, fikarum mm
Service
Endast några minuter bort ligger Birsta City – ett av Norrlands största handelsområden med brett utbud av butiker, restauranger och service. I närområdet finns även enklare lunchrestauranger.
Övrigt
Fiber finns i fastigheten























