Kontor, Industrivägen 6 C, Nynäshamn

  • 89 m²

Nyrenoverad mångsidig lokal i markplan – perfekt för kontor, showroom eller ateljé i Nynäshamn!


Lokaltyper Kontor / Butikslokal / Övrig lokal
Total yta 89 m²
Adress Industrivägen 6 C
Område Nynäshamn
Kommun Nynäshamns kommun
Objektsnummer 41992451
Bifogade filer

Beskrivning

Välkommen till en modern och flexibel lokal om 89 kvm på Industrivägen 6C i Nynäshamn. Lokalen är just nu under ombyggnation enligt ritning och erbjuder en unik möjlighet för er som vill skapa en arbetsmiljö helt anpassad efter verksamhetens behov. Här finns grunden – resten kan formas precis som ni vill.

De stora fönsterpartierna släpper in rikligt med dagsljus och skapar en ljus och välkomnande atmosfär som stärker både trivsel och produktivitet. Tillsammans med den generösa takhöjden upplevs lokalen som luftig och rymlig – en inspirerande miljö där idéer och verksamheter får utrymme att växa.

Etablera er i en dynamisk kuststad i tillväxt, där hav, stad och näringsliv möts. Industrivägen 6C kombinerar flexibilitet, närhet till service och smidiga kommunikationer med allt det bästa Nynäshamn har att erbjuda.

Fördelar i korthet:

✅ Flexibel planlösning – en stor öppen yta som kan disponeras efter era behov.

✅ Stora fönsterpartier & generös takhöjd – ljus, rymd och en arbetsmiljö som främjar kreativitet och välmående.

✅ Vindfång, pentry & wc – smart planerade ytor för både arbete och trivsel.

✅ Mångsidig användning – perfekt som kontor, showroom, ateljé, möteslokal eller kombilokal med lagerdel.

✅ Pågående renovering – möjlighet att påverka utformningen och skapa en skräddarsydd lösning.

✅ Ljus och trivsam – potential att bli en representativ och funktionell arbetsplats.

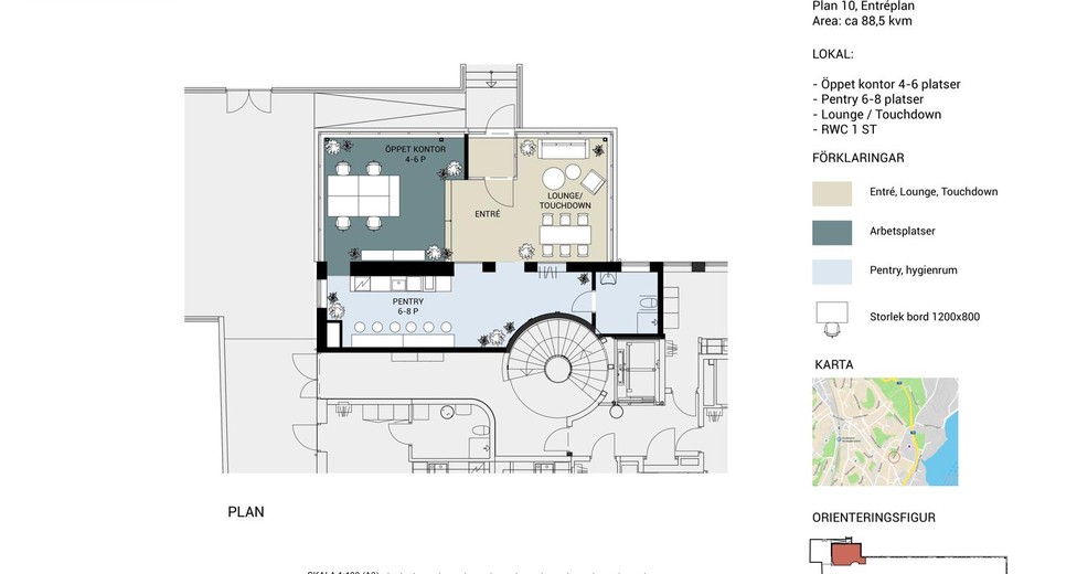
Se gärna vår ritningsförslag för inspiration till en mer effektiv användning av ytan.

Kontakta uthyraren för mer information eller för att boka en visning!

Omgivning

Fastigheten ligger i ett lugnt men centralt läge, endast några minuters promenad från Nynäshamns centrum, pendeltågsstation och hamn. Här kombineras stadens praktiska bekvämligheter med närheten till skärgården och havet – en unik balans som stärker trivsel och arbetsglädje för både medarbetare och besökare.

Parkering

Parkeringsplatser finns att hyra.


Karta

Bilder på lokalen