Kontor, Hollandsgatan, Ytterby
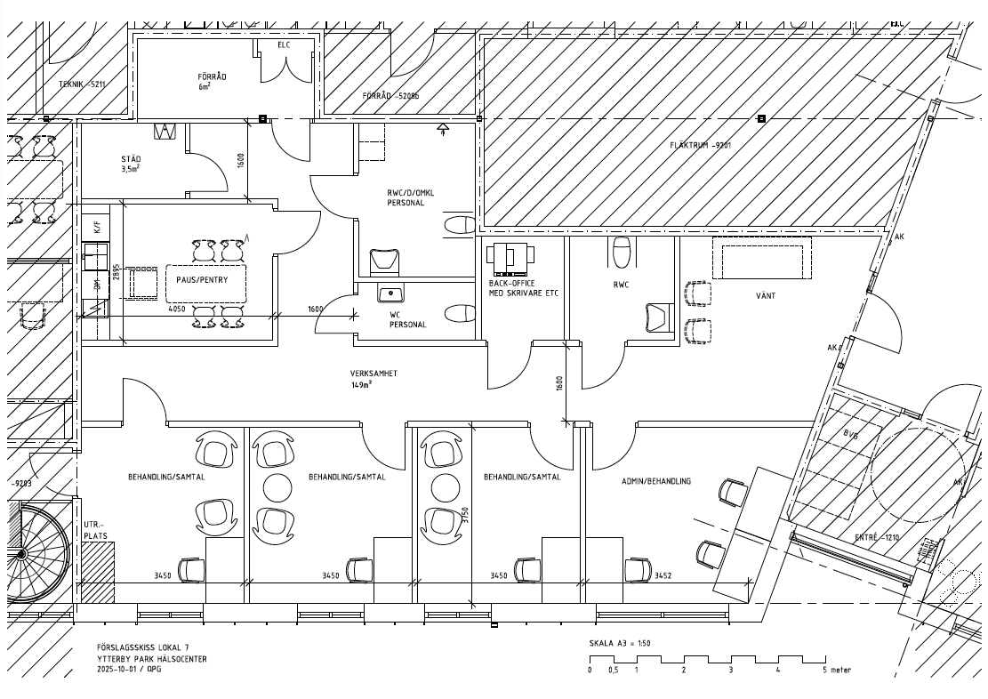
- 149 m²
Upptäck Ytterby Park – nyproducerade lokaler med ett fantastiskt skyltläge vid Marstrandsvägen. Vi söker aktörer inom hälsa och vård. Här får du moderna lokaler i ett växande område med närhet till Kungälv centrum. Ta chansen att etablera er i ett växande område, med Ytterbys bästa läge!
Om lokalen
- Lokaltyper
- Kontor / Butikslokal / Träningslokal / gym / Studio / ateljé / Utbildningslokal / Vårdlokal
- Total yta
- 149 m²
- Adress
- Hollandsgatan
- Område
- Ytterby
- Kommun
- Kungälvs kommun
- Hiss
- Ja
- Våning
- 0
- Objektsnummer
- 41980582
Beskrivning
Välkommen till Ytterby Park – en nyproducerad fastighet som erbjuder det perfekta läget för din verksamhet! Ett attraktivt skyltläge precis vid Marstrandsvägen och porten till Ytterby. Med totalt 2400 kvm kommersiell yta erbjuder vi nu den sista lokalen som passar flera typer av verksamheter – kontor, butik, vård och träning. Här får du inte bara en lokal utan också möjligheten att själv påverka utformningen och materialvalen, så att din verksamhet får precis rätt miljö och känsla. Klara hyresgäster sedan tidigare är vårdcentral, tandläkare, gym och kontor. I anslutning till den kommersiella fastigheten kommer det att byggas ca 90 nya bostäder, och i den befintliga fastigheten bredvid finns verksamheter som Kongahälla Djursjukvård, Löfgrens Bröd & Fika samt kontorshotell.
Detta är en chans att etablera sig i ett område som växer, och med Ytterbys bästa läge.
Fastigheten kommer erbjuda flexibla och ljusa lokaler med stora anpassningsmöjligheter för att passa just din verksamhet. Ytor som ännu inte är uthyrda - 41 kvm, 45 kvm samt en större yta om 265 kvm som kan delas i två. Ytterby Park anpassar sig efter dina behov, oavsett om du letar efter ett mindre utrymme eller en större enhet för att optimera din verksamhet. Oavsett om du driver ett gym som vill skapa en inspirerande träningsmiljö, kontorsverksamhet som vill flytta in till ett sprillans nytt kontor eller en vårdverksamhet som vill erbjuda lättillgängliga tjänster, så är Entré Ytterby den perfekta platsen för dig.
Ytterby Park är strategiskt beläget precis vid Marstrandsvägen, vilket ger en hög synlighet för förbipasserande. Marstrandsvägen leder även ut till ön Marstrand, som är en populär turistdestination som lockar årligen hundratusentals besökare.
Området erbjuder även utmärkta förbindelser med kollektivtrafik, hållplats precis utanför fastigheten vilket gör det enkelt att ta sig till Kungälv centrum, Ytterby Station och andra delar av Kungälv. Från Kungälv Centrum går det tåg till och från Göteborg. Med närhet till E6an kan du ta dig in till Göteborgs centrum på 15 till 20 minuter med bil.
Kommer finnas gott om parkeringsplatser utanför fastigheten.
Med närhet till Kungälvs och Ytterbys centrum har du nära tillgång till allt du kan tänka dig så som livsmedelsbutiker, restauranger, caféer och service.
Byggstarten är planerad till våren 2025, och inflyttning beräknas ske ca ett år därefter.
Välkommen att kontakta oss för mer information!
Omgivning
Ytterby Park är strategiskt beläget precis vid Marstrandsvägen, vilket ger en hög synlighet för förbipasserande. Med en kombination av närhet till både natur och stadsliv är Ytterby en plats som lockar både boende och besökare, vilket gör det perfekt för din verksamhet. Marstrandsvägen leder även ut till ön Marstrand, som är en populär turistdestination som lockar årligen hundratusentals besökare.
Kommunikationer
Området erbjuder även utmärkta förbindelser med kollektivtrafik, hållplats precis utanför fastigheten vilket gör det enkelt att ta sig till Kungälv centrum, Ytterby Station och andra delar av Kungälv. Från Kungälv Centrum går det tåg till och från Göteborg. Med närhet till E6an kan du ta dig in till Göteborgs centrum på 15 till 20 minuter med bil.
Kommer finnas gott om parkeringsplatser utanför fastigheten.
Parkering
Ja
Service
Med närhet till Kungälvs centrum har du nära tillgång till allt du kan tänka dig så som livsmedelsbutiker, restauranger, caféer och service.
Skyltläge
Ja







