Hantverksgatan 3, Kungsbacka
loqalo AB
370 m²
Hyra: Ej angiven
Tillträde: Ej angivet
Lokalens egenskaper:
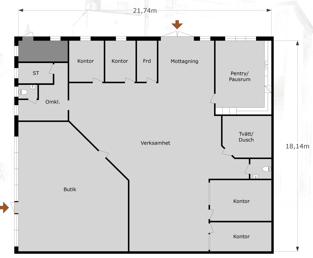
Nu finns möjlighet att hyra en rymlig butikslokal om cirka 370 kvm med ett bra och synligt läge mot Lantmannagatan i Kungsbacka. Lokalen erbjuder öppna och flexibla ytor som enkelt kan anpassas efter verksamhetens behov.
Ytan lämpar sig för flera typer av verksamheter, såsom butik, showroom, service eller ateljé. Den generösa planlösningen ger goda möjligheter att skapa en funktionell och inbjudande miljö, oavsett verksamhetsinriktning.
Det exponerade läget mot gatan ger naturlig synlighet och bra kontakt med förbipasserande, vilket skapar goda förutsättningar för en framgångsrik etablering.
Område:
Lokalen är belägen i ett levande område i Kungsbacka med flera etablerade verksamheter i närheten. Här har du gångavstånd till centrala delar av staden och ett område som präglas av aktivitet och utveckling.
Kommunikationer:
Kommunikationerna är goda med närhet till centralstationen i Kungsbacka samt smidig access till närliggande städer.
Parkering:
Parkering finns i direkt anslutning till fastigheten, vilket gör det enkelt för både kunder och personal att ta sig till lokalen.
Närservice:
I närområdet finns ett brett utbud av restauranger, gym och annan service som underlättar vardagen för både medarbetare och besökare.
Snabbfakta:
Yta: ca 370 kvm
Flexibel och öppen planlösning
Synligt läge mot Lantmannagatan
Passar butik, showroom, service eller ateljé
Parkering i anslutning till fastigheten
Gångavstånd till centrala Kungsbacka
Har ni frågor eller vill boka tid för visning?
Välkomna att kontakta oss på 031-350 49 00 eller hej@loqalo.se
Lokaltyper
Typ: Butikslokal
Minsta storlek: 370 m²
Största storlek: 370 m²
Annonsinformation
Publicerad: 2026-04-23
Objektsnummer: 41958295






