Produktionslokal, Gränsbovägen 8, Södertälje
- 2 574 m²
- 2024-05-01
Unik industrifastighet nära E4:an
Om lokalen
- Lokaltyper
- Produktionslokal / Lagerlokal
- Total yta
- 2 574 m²
- Adress
- Gränsbovägen 8
- Område
- Södertälje
- Kommun
- Södertälje kommun
- Byggår
- 1983
- Hiss
- Nej
- Tillträde
- 2024-05-01
- Objektsnummer
- 41957185
Beskrivning
Välkommen till denna välplanerade lager- och produktionslokal om ca 2 574 kvm, strategiskt placerad i ett attraktivt industriområde på Gränsbovägen 8 i Södertälje. Här erbjuds generösa ytor, smidig access via lastkaj och en mycket funktionell planlösning – perfekt för verksamheter med fokus på logistik, lager, tillverkning eller distribution.
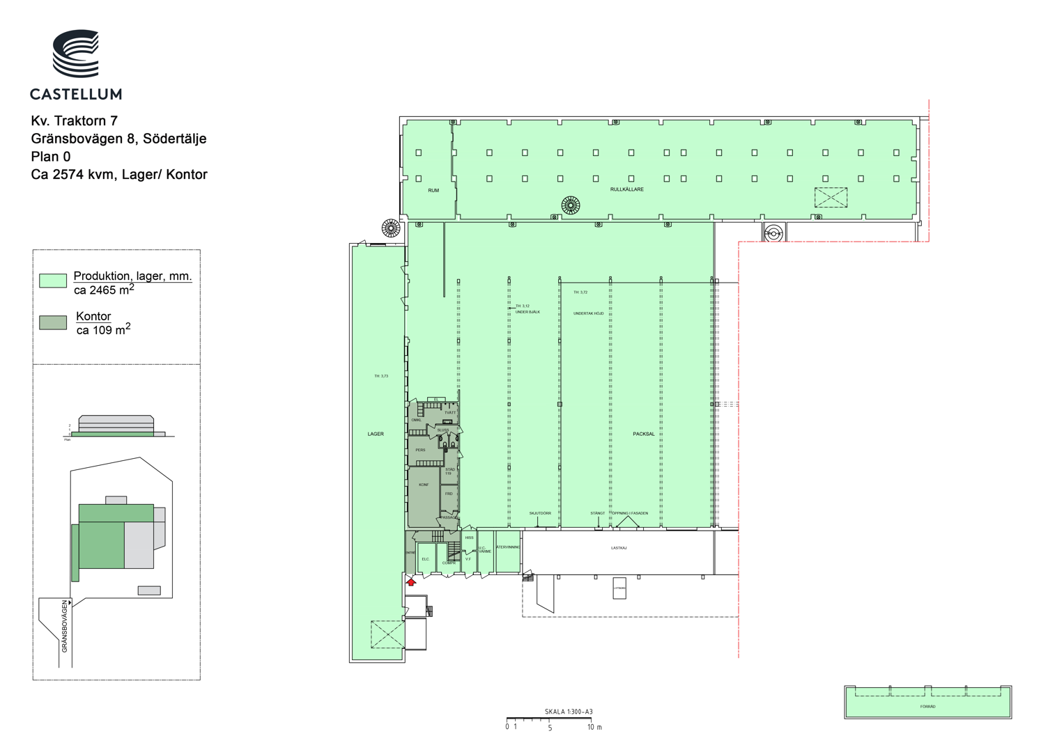
Ytor och planlösning
Enligt ritningen omfattar lokalen:
Produktion/lager: ca 2 465 kvm
Stora, öppna ytor med hög takhöjd och god tillgänglighet för trucktrafik. Planlösningen möjliggör effektiv hantering av gods och materialflöden, med flera portar i anslutning till lastkaj.
Kontor: ca 109 kvm
Praktiska kontors- och personalutrymmen med omklädningsrum, pausutrymme och administrativa ytor – direkt integrerade med lagret.
Den rektangulära utformningen och de fria ytorna gör lokalen lätt att anpassa efter verksamhetens behov.
Teknisk standard och specifikationer
Takhöjd om ca 5m.
Elkapacitet: kraftfull 3 000 A
Bärighet: robust golvkonstruktion för tung industri och trucktrafik
Lastning: lastkaj med flera lastportar, vilket ger snabb och effektiv godshantering
Tillgång: direkt anslutning till plan 1 via internkoppling möjlig
Läge och kommunikationer
Fastigheten ligger med nära anslutning till E4:an, vilket ger utmärkta transportmöjligheter både norrut mot Stockholm och söderut mot Nyköping och vidare södra Sverige.
Området är väletablerat och industriellt präglat med stabil infrastruktur. Här finns goda grannar som Ramirent, Swedol och Autoexperten, vilket stärker områdets attraktionskraft.
Sammanfattning
Detta är en funktionell, modern och lättillgänglig lager- och produktionslokal som erbjuder allt man kan önska i fråga om logistik, kapacitet och läge. Med sina höga tekniska standarder och flexibla ytor är detta en lokal som passar både etablerade aktörer och expansiva företag.
Omgivning
Fastigheten Traktorn 7 är en industri/lager lokal belägen i Södertälje. Södertälje är beläget mellan Strängnäs, Nyköping och Stockholm. Alltså enkelt att pendla från många olika håll
Kommunikationer
Kommunikationen i Södertälje består av både buss och pendeltåg. Det tar ca 45 minuter från Stockholm city. Inte långt från fastigheten svänger man av från Södertäljevägen. Vilket gör det snabbt och smidigt för de som vill köra bil.
Bussar nr 760 ,761 går från Södertälje och smidigt tar dig till Moraberg.
Planlösning
Lager och produktion är till den större del beläget på bottenplan med mindre servicekontor för arbetsplatser eller möjligt konferensrum och två separata omklädningsrum med dusch och 2 stycken wc. På plan 1 finns resterande lagerytor och ett större kontor med 11 stycken kontorsrum, ett större konferensrum, två separata omklädningsrum med bastu och 2 stycken duschar i vardera omklädningsrum, 5 stycken wc varav en styck RWC samt ljust och trevligt pentry/ pausutrymme med terrass. Kontorsdelen är beläget en trappa upp med mixad planlösning för arbetsplatser i ett öppet landskap samt ett antal enskilda kontorsrum. Här finns också större pentry med en trevlig terrass att kunna avnjuta sin lunch på.
Övrigt
Fastigheten är en industrifastighet belägen strax utanför Södertälje i Moraberg. Den ligger nära E4:an med bra skyltläge och är en singel fastighet med inhägnat markområde.
Bärighet:
Terassbjälklag: 10 kN/kvm
Golv i ställverk: 5 kN/kvm
Golv i presshall: 15 kN/kvm
Golv i manöverrum: 5 kN/kvm (tillika kontorsytorna och omklädningsrum på plan 1)
Golv i fläktrum: 5 kN/kvm
Byggnadsbeskrivning
Stomme: Stål och betong
Fasader: Tegel och puts
Yttertak: Papp
Uppvärmning: Luftburen fjärrvärme
Ventilation: Mekanisk till- och frånluft med värmeåtervinning och kyla















