Produktionslokal, Florettgatan 9, Berga, Helsingborg
- 3 015 m²
- 2026-04-01
Rymlig och flexibel lokal med kontor, lager och lastport på Florettgatan 9 i Helsingborg
Om lokalen
- Lokaltyper
- Produktionslokal / Kontor / Lagerlokal
- Total yta
- 3 015 m²
- Adress
- Florettgatan 9
- Område
- Berga
- Kommun
- Helsingborgs kommun
- Byggår
- 1979
- Hiss
- Nej
- Tillträde
- 2026-04-01
- Objektsnummer
- 41993287
Beskrivning
Välkommen till en smart planerad lokal som kombinerar kontor och lager i ett effektivt flöde. Här finns flera kontorsrum, mötesrum, pentry, pausrum samt omklädning, dusch och WC. Lagerytan har egen lastport för enkel in- och utlastning samt en del med extra högt i tak, perfekt för verksamheter som behöver volym eller vill bygga på höjden. En flexibel lokal som ger goda möjligheter att anpassa ytorna efter din verksamhets behov.
Omgivning
Området utgörs av industri, handel och kontor.
Kommunikationer
Nära till pågatåg och bussar. Stadsbusslinjerna nr 2 och 22 trafikerar i området. Ca 5 km till centrum i höjd med motorvägarna E4/E6 samt E20.
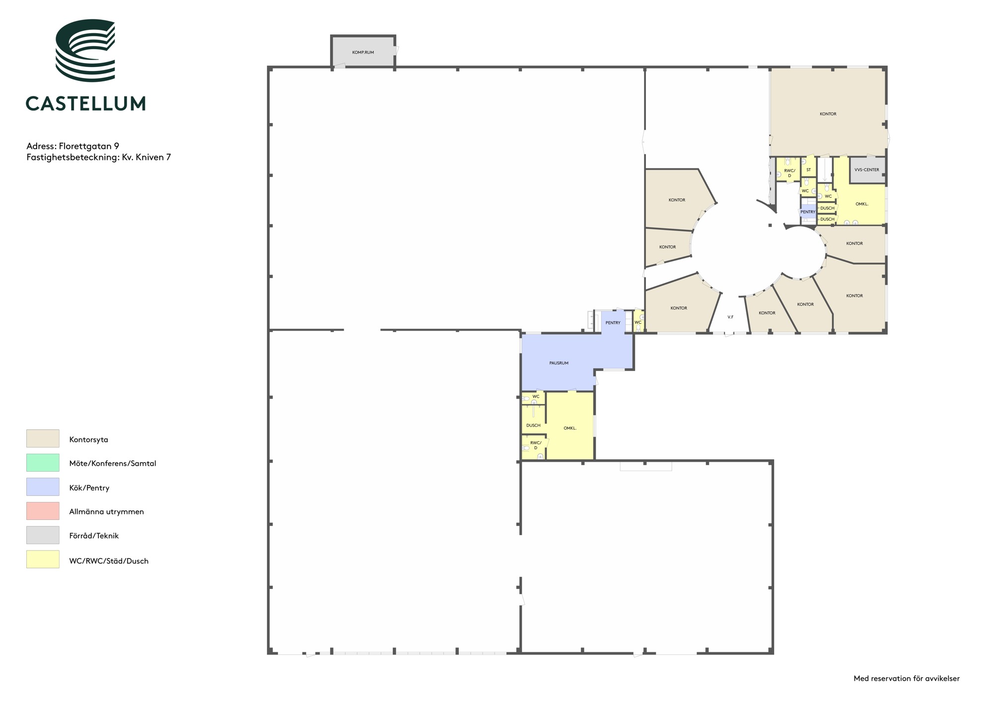
Planlösning
Lokalen är uppdelad i två delar – en kontorsdel och en större lagerdel. Kontoren är placerade kring ett centralt mötesutrymme med närhet till pentry och pausrum. Lagerdelen erbjuder öppna ytor, ett kök med matplats, lastport samt en öppning med rullband direkt till container för smidig hantering. En sektion har förhöjd takhöjd, perfekt för höglager eller större utrustning. Planlösningen är flexibel och skapar en effektiv arbetsmiljö med smidig koppling mellan kontor och lager.
Service
Närhet till stormarknad som ICA Maxi, även mindre butiker som ICA Nära, pizzeria, postombud, blomsteraffär mm finns inom gångavstånd.
Övrigt
Fastigheten är belägen på Berga industriområde som är ett av stadens största industriområde. Fastigheten består av ca 3 000 kvm lager- och kontor.























