Kontor / Lager, Flöjelbergsgatan 1 B, Mölndal
- 2 000 m²
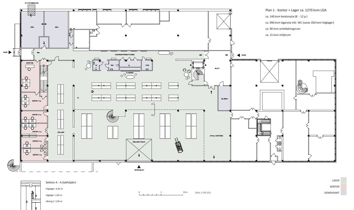
Välkommen till Södra Porten! Här finns nu en kombilokal ledig om totalt 2000 kvm. Lagerdelen har port samt en takhöjd på ca 6 m. Här finns även en tr
Om lokalen
- Lokaltyp
- Kontor / Lager
- Total yta
- 2 000 m²
- Adress
- Flöjelbergsgatan 1 B
- Område
- Mölndal
- Kommun
- Mölndals kommun
- Hiss
- Nej
- Objektsnummer
- 41955688
Beskrivning
Välkommen till Södra Porten! Här finns nu en kombilokal ledig om totalt 2000 kvm. Lagerdelen har port samt en takhöjd på ca 6 m. Här finns även en travers. Parkering finns att hyra i låst garage i fastigheten intill och bussen går precis utanför med täta avgångar. I södra porten sitter du utanför tullarna precis vid Lackarebäcksmotet med nära till både Göteborg och Mölndals innerstad. I området finns två lunchrestauranger och möjlighet att hyra konferensanläggningar. På andra sidan motorvägen ligger Krokslätts fabriker med ytterligare restauranger samt nybyggda Quality Hotel The Weaver.
Har ni frågor eller vill boka tid för visning?
Välkomna att kontakta oss på 031-350 49 00 eller hej@loqalo.se













