Exportgatan 51A, Hisingen, Göteborg
Novier
Annons max500–1 320 m²
Hyra: 900 kr/m²/år
Tillträde: Ej angivet
Möjlighet att hyra kontor med bra läge på Exportgatan!
Här finns möjligheten att hyra kontor med bra läge på Exportgatan upp till ca 1 320 kvm.
Lokalerna hyrs ut i befintligt skick, men ny hyresgäst har möjlighet att själva anpassa lokalerna.
Det är även möjligt att hyra del av lokalen.
Hör gärna av dig till oss på Novier för mer information!
Dokument
Om lokalen
- Kommun
- Göteborgs kommun
- Tillgänglighet
- Enligt överenskommelse
- Våning
- 3
- Objektsnummer
- 41997684
- Hyra
-
37 500 - 99 000 kr/mån
900 kr/m²/år
Omgivning
Exportgatan är strategiskt belägen i ett av Göteborgs mest expansiva och etablerade verksamhetsområden, Hisings Backa. Området präglas av en dynamisk mix av kontor, handel och logistik, vilket skapar ett levande och affärsnära klimat med goda möjligheter till nätverkande och tillväxt.
Här erbjuds mycket god tillgänglighet med närhet till några av regionens viktigaste trafikleder, såsom E6 och E45, vilket möjliggör smidiga transporter både inom Göteborg och vidare ut i landet. Även Göteborgs Hamn nås snabbt, vilket är en stor fördel för verksamheter med logistik- eller import/exportbehov.
Exportgatan är därmed ett attraktivt läge för företag som söker effektiva lokaler med utmärkt logistik, god service och närhet till både stad och infrastruktur.
Kommunikationer
Kommunikationerna är goda med flera busslinjer som trafikerar området och knyter samman Exportgatan med centrala Göteborg på kort tid. För den bilburne finns generösa parkeringsmöjligheter i direkt anslutning till fastigheterna samt god framkomlighet i området.
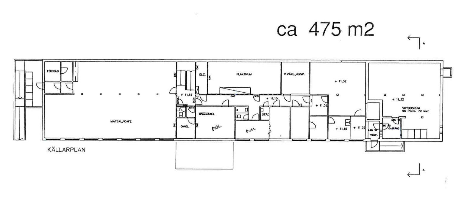
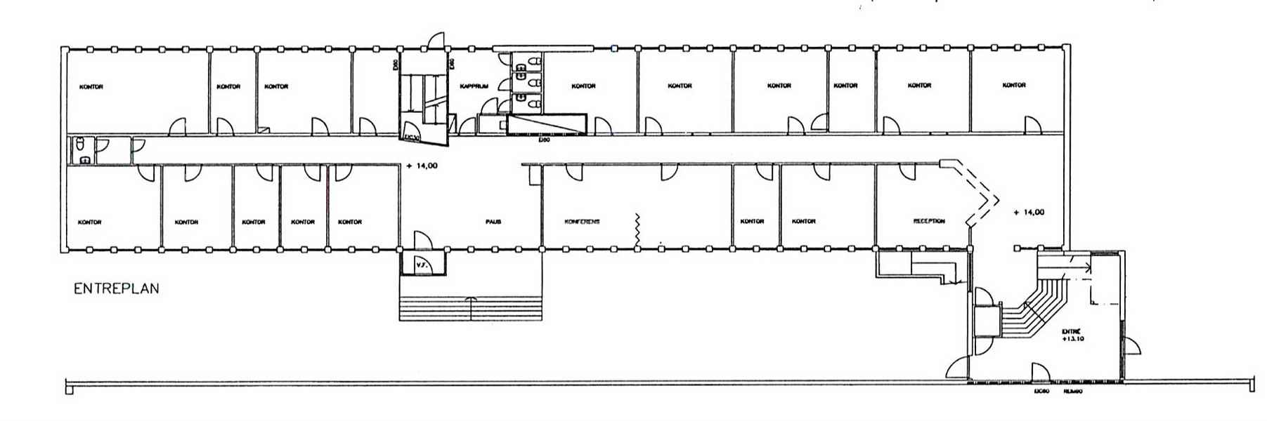
Planlösning
Lokalen har en planlösning med separata kontorsrum och mötesrum. Det finns totalt 3 våningsplan, varav den ena är källarvåning.
Parkering
Finns ett stort antal parkeringsplatser runt om hela fastigheten.
Service
I närområdet finns ett brett serviceutbud med restauranger, caféer, gym och handel. På bekvämt avstånd ligger även Bäckebol Handelsområde, som erbjuder ett stort urval av butiker och servicefunktioner som förenklar vardagen för både medarbetare och besökare.






