Dragrännan 8, Draget, Bålsta

Företag & Kommersiella fastigheter

Annons plus

900

Building 1 Streamline Icon: https://streamlinehq.comKontorShop Streamline Icon: https://streamlinehq.comButikslokalWarehouse Storage 2 Streamline Icon: https://streamlinehq.comLagerlokalCustomer Relationship Management Self Service Wrench Streamline Icon: https://streamlinehq.comVerkstad

Hyra: 1100 kr/m²/år

Tillträde: Enligt överenskommelse

Anpassa er fristående egna lokal efter era behov!

Här finns en helt egen lokal i en byggnad om ca 900 kvm fördelad på två plan. Här kan ni själva få vara med och utforma lokalen efter era önskemål. Nedre plan lämpar sig för såväl butik, showroom med ett direkt angränsande lager som för enkom lager eller lätt industri. Den generösa takhöjden på över 6 meter i lager/industridelen, gör att lokalen har många användingsområden. Lokalen är väldigt ljus tack vare de många ljusinsläppen genom fönsterpartierna. Även lager/industridelen har många fönster vilket skapar en trevlig arbetsyta. Fastigheten är dessutom utrustad med en hiss, så att övre plan nås på ett enkelt sätt. Ritningarna är förslag på layout. Beroende på ert behov kan dessa omformas. Det finns flera wc, duschar och omklädningsrum som kan anpassas.

Byggnaden har tre värmekällor. Luftvärmepumpar, solceller som installerades 2021 och en Oljepanna. (Behöver sällan nyttjas. ”Bra att ha ireserv”.) Den inhägnade asfalterade utomhusytan om totalt 2690 kvm har flertalet laddstolpar.

Egenskaper

Bathroom Shower Streamline Icon: https://streamlinehq.com Dusch Toilet Sign 2 Streamline Icon: https://streamlinehq.com WC Parking P 1 Streamline Icon: https://streamlinehq.com Parkering Information Desk Man Streamline Icon: https://streamlinehq.com Reception Garage Door Closed Streamline Icon: https://streamlinehq.com Lastport Server 1 Streamline Icon: https://streamlinehq.com Serverrum Shop Street Sign Streamline Icon: https://streamlinehq.com Skyltmöjlighet Bicycle Lock Key Streamline Icon: https://streamlinehq.com CykelgarageLastbrygga Meeting Remote Streamline Icon: https://streamlinehq.com meeting-remoteMötesrum School Locker Closed Streamline Icon: https://streamlinehq.com school-locker-closedOmklädningsrum Parking P 1 Streamline Icon: https://streamlinehq.com Besöksparkering Disability Wheelchair 1 Streamline Icon: https://streamlinehq.com Handikapptoalett Parking P 1 Streamline Icon: https://streamlinehq.com Kundparkering Fiber Access 1 Streamline Icon: https://streamlinehq.com Fiber Lift Streamline Icon: https://streamlinehq.com liftFrakthiss Kitchen Storage Streamline Icon: https://streamlinehq.com Kök / pentry Car Garage Streamline Icon: https://streamlinehq.com Varmgarage Clean Car Cable Charge Streamline Icon: https://streamlinehq.com Laddstolpe

Om lokalen

Kommun
Håbo kommun
Byggår
1988
Hiss
Ja
Tillträde
Enligt överenskommelse
Objektsnummer
41998519
Hyra
82 500 kr/mån
1 100 kr/m²/år

Kommunikationer

Busshållplats inom några få minuters gångpromenad.

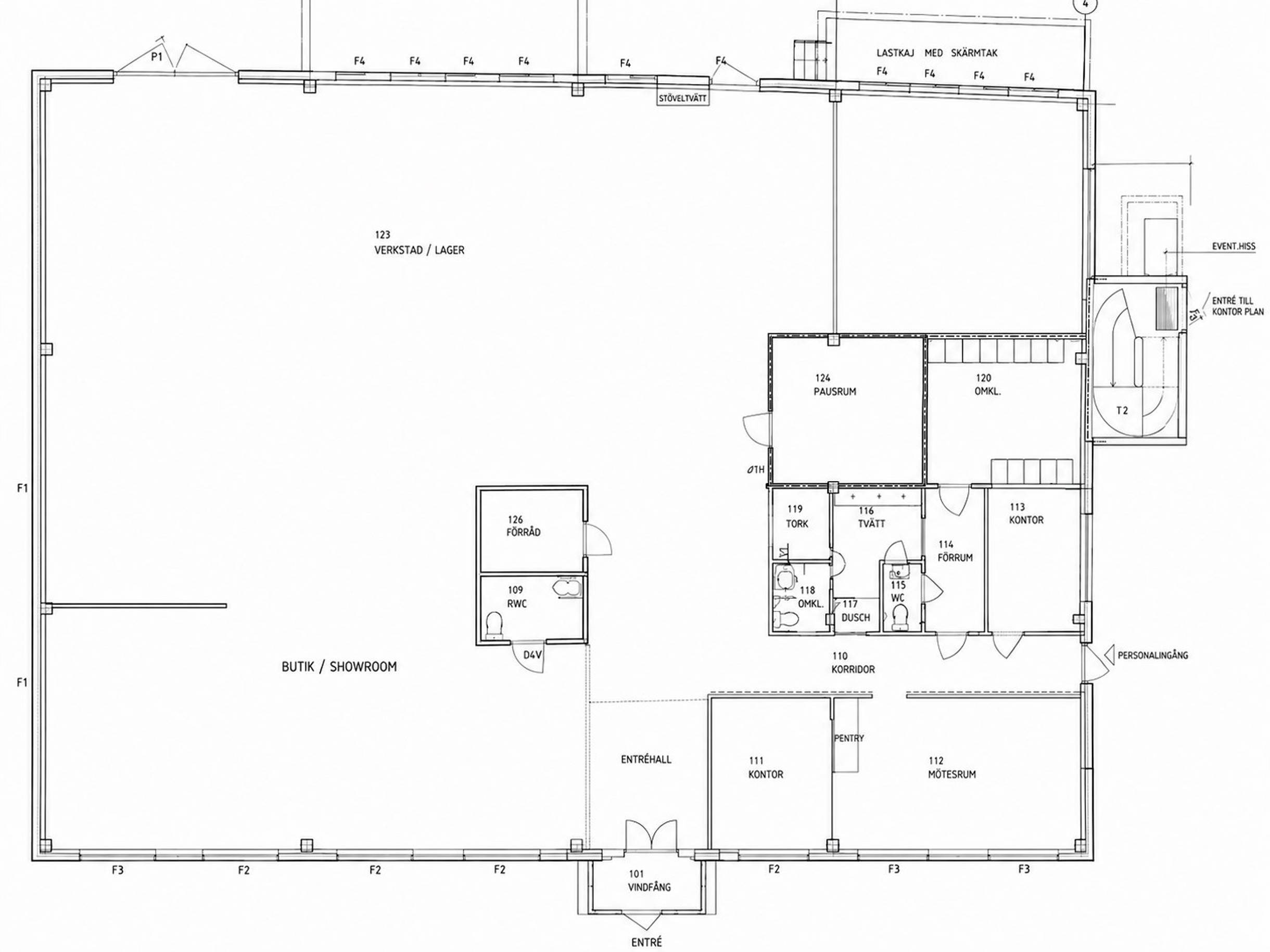
Planlösning

Kundentré på framsidan med parkeringsplatser. Entré med showroom/butik som ligger angränsande till lagret/verkstaden. Personalytor på övre plan. Även en hiss finns till övre plan.

Parkering

Garage om 50 kvm samt stor inhägnad asfalterad yta med flertalet laddplatser.

Service

ICA, restauranger, bensinmackar och övrig service i Bålsta centrum.

Vägbeskrivning

Kör 18 mot Enköping. Ta av vid avfart 147 - Trafikplats Draget (Bålsta C). Kör in på Södra Bålstaleden. Efter 1 km i rondellen - ta 1:a avfarten in på Dragrännan.

Skyltläge

Ja direkt intill Dragrännan

Uppvärmning

Luftvärmepump

Karta

Bilder på lokalen