Backa Bergögatan 13, Norra Göteborg och Hisingen, Hisings backa
loqalo AB
199 m²
Hyra: Ej angiven
Tillträde: Ej angivet
Lokalens egenskaper:
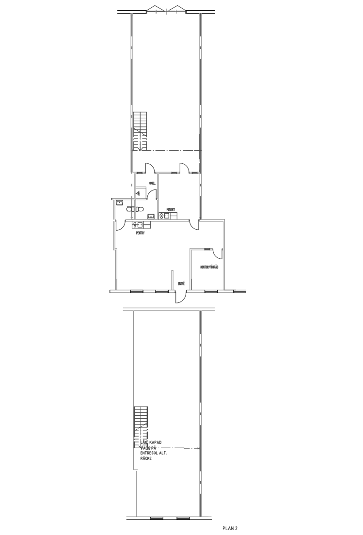
Nu finns möjlighet att hyra en kombilokal om totalt cirka 199 kvm, fördelat på 81 kvm lager/garage/lätt industri med cirka 5 meters takhöjd, ett loft om 34 kvm samt 84 kvm kontorsytor med normal takhöjd.
Både kontors- och lagerytorna erbjuder öppna och flexibla ytor med goda möjligheter till anpassning efter verksamhetens behov. I lagerdelen finns en port om cirka 3,5 x 4 meter, vilket möjliggör smidig hantering av gods. Fiber är framdraget i lokalen.
Kontorsdelen består till största del av öppen planlösning och inkluderar två pentryn, två WC samt dusch. Ovanför pentry och WC i lagerdelen finns ett loft om cirka 34 kvm som kan nyttjas som extra yta.
Lokalen är lättillgänglig med både bil och lastbil och lämpar sig väl för verksamheter som söker en kombination av kontor och lager/produktion.
Område:
Fastigheten är belägen i ett välskött område med trevliga grannar och ett brett utbud av verksamheter i närheten. Här finns företag inom bland annat service, bygg, installation och handel, vilket skapar ett levande företagsklimat.
Vid älven i närheten finns även ett promenadstråk med bryggor som erbjuder en trivsam miljö för pauser och lunchpromenader.
Kommunikationer:
Lokalen nås enkelt med både bil och lastbil. Via E6 tar du av vid Backadalsmotet (avfart 78) och följer vägen mot Stigs Center.
I området finns parkeringsplatser tillgängliga.
Snabbfakta:
Total yta: ca 199 kvm
Kontor: 84 kvm
Lager/verkstad: 81 kvm
Loft: 34 kvm
Takhöjd lager: ca 5 m
Lastport (ca 3,5 x 4 m)
Fiberanslutning
2 pentryn, 2 WC, dusch
Möjlighet till skyltning
Förstahandskontrakt (3 år, 9 mån uppsägningstid)
Tillträde enligt överenskommelse
Har ni frågor eller vill ni boka tid för en visning? Välkommen att kontakta oss på 031-3504900 eller hej@loqalo.se!
Lokaltyper
Typ: Lagerlokal
Minsta storlek: 199 m²
Största storlek: 199 m²
Annonsinformation
Publicerad: 2026-04-09
Objektsnummer: 41954048












