Butikslokal, Askims verkstadsväg 17, Södra Göteborg, Askim
- 485 m²
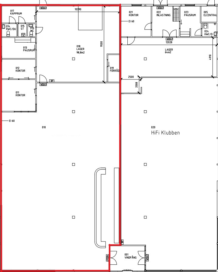
Välkommen till en rymlig och lättillgänglig butikslokal om 485 kvm på Askims Verkstadsväg 17 i det expansiva handelsområdet i Sisjön. Lokalen ligger
Om lokalen
- Lokaltyp
- Butikslokal
- Total yta
- 485 m²
- Adress
- Askims verkstadsväg 17
- Område
- Södra Göteborg
- Kommun
- Göteborgs kommun
- Hiss
- Nej
- Objektsnummer
- 41993659
Beskrivning
Välkommen till en rymlig och lättillgänglig butikslokal om 485 kvm på Askims Verkstadsväg 17 i det expansiva handelsområdet i Sisjön. Lokalen ligger i markplan och har en smidig butiksentré, vilket ger god synlighet och enkel åtkomst för både kunder och leveranser. Den största delen av lokalen utgörs av en öppen butiksyta med stora möjligheter till anpassning efter verksamhetens behov. Lokalen är pelarbyggd och därmed ges en stor flexibilitet i hur man önskar utforma lokalen. I bakkant finns idag ett lagerutrymme med separat port för smidig in- och utlastning. Det finns även personalutrymmen inklusive pentry, wc och enklare kontorsrum.
Sisjön är ett attraktivt och välbesökt handelsområde, strategiskt placerat och lättåtkomligt. Här finns ett brett utbud av handel, service och kontor med många etablerade aktörer i närområdet. Området har goda kommunikationer och är lätt att nå via bil och kollektivtrafik, med närhet till Söderleden och goda parkeringsmöjligheter.
Välkommen att kontakta oss på loqalo för mer information eller visning 031-350 49 00, hej@loqalo.se!
Karta
Bilder på lokalen
Askims verkstadsväg 17 Askims verkstadsväg 17 Askims verkstadsväg 17 Askims verkstadsväg 17 Askims verkstadsväg 17 Askims verkstadsväg 17 Askims verkstadsväg 17 Askims verkstadsväg 17 Askims verkstadsväg 17 Askims verkstadsväg 17 Askims verkstadsväg 17 Askims verkstadsväg 17 Askims verkstadsväg 17 Askims verkstadsväg 17 Askims verkstadsväg 17 Askims verkstadsväg 17 Askims verkstadsväg 17 Askims verkstadsväg 17 Askims verkstadsväg 17 Askims verkstadsväg 17 Askims verkstadsväg 17 Askims verkstadsväg 17 Askims verkstadsväg 17 Askims verkstadsväg 17 Askims verkstadsväg 17


























