Verkstad, Arlövsvägen 23, Spillepengen, Arlöv
- 2 376 m²
- 2026-11-01.
Verkstadslokal optimal för lastbilar och tung fordonsservice med 12 markportar
Om lokalen
- Lokaltyper
- Verkstad / Kontor / Lagerlokal / Övrig lokal
- Total yta
- 2 376 m²
- Adress
- Arlövsvägen 23
- Område
- Spillepengen
- Kommun
- Burlövs kommun
- Byggår
- 1975
- Hiss
- Ja
- Tillträde
- 2026-11-01.
- Objektsnummer
- 41994759
Beskrivning
Verkstadslokal optimal för lastbilar och tung fordonsservice med 12 markportar
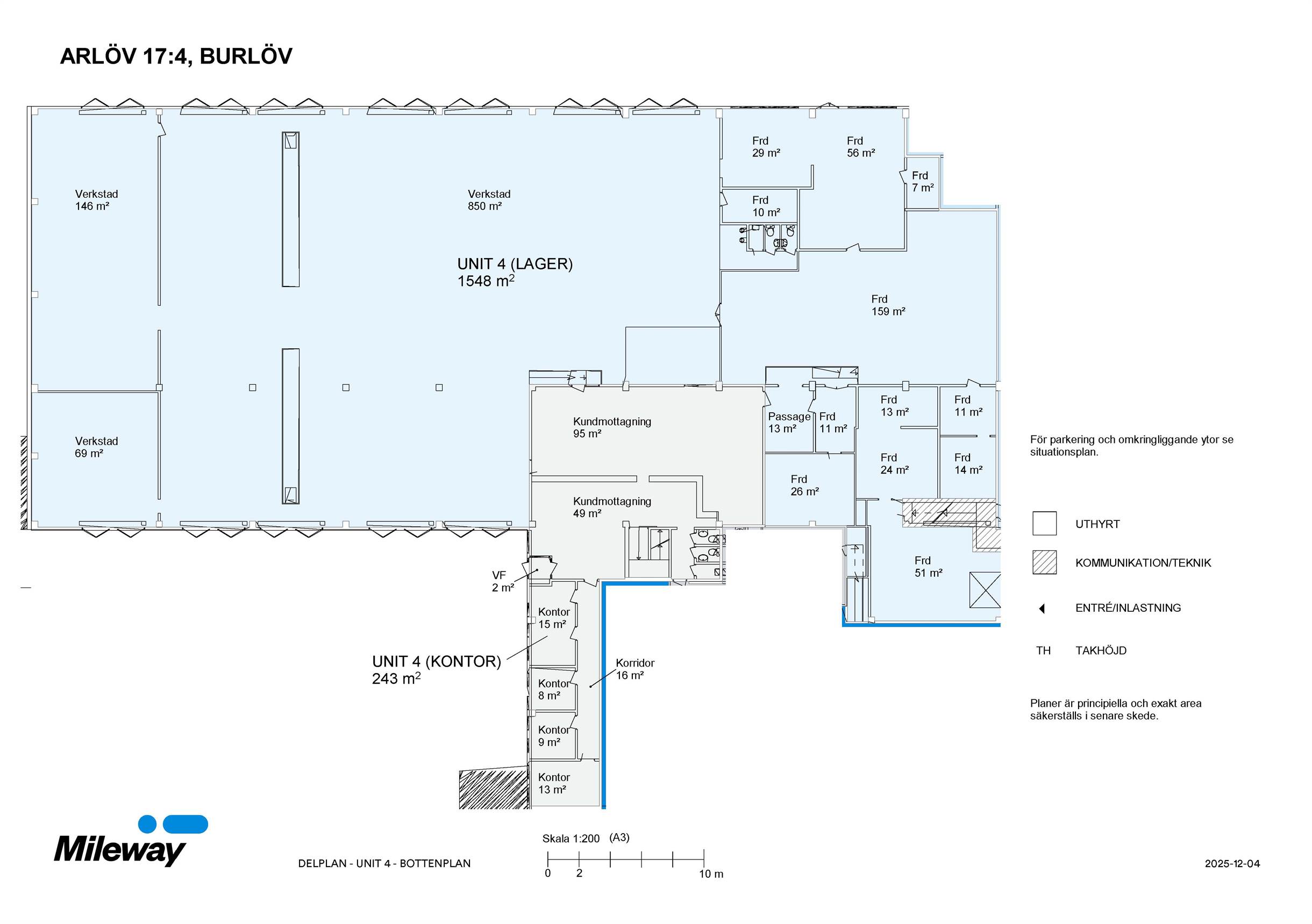
Nu finns möjligheten att etablera er verksamhet i en lokal optmial för lastbilsverkstad, skadevagnsverkstad eller annan tung fordonsservice. Lokalen erbjuder de ytor och funktioner som krävs för ett effektivt och professionellt verkstadsflöde. Det finns 12 markportar vilket skapar god logistik och flexibilitet för in- och utlastning. Lokalen erbjuder kontorsytor om 585 kvm fördelade på våning 1, 2 och 3 med faciliteter så som WC, pentry och omklädningsrum.
Lokalen erbjuder:
• 12 portar direkt kopplade till verkstadsdelen
• Takhöjd 6-8 meter – befintlig travers med maxkapacitet på 3 ton
• Ca 7 362 kvm inhägnad uppställningsyta – gott om plats för lastbilar, skadade fordon och personalparkering
• Kontorsdel i tre plan om totalt ca 828 kvm med pentry, WC och omklädningsrum
Område
Fastigheten är belägen i Arlöv, cirka 5 km norr om centrala Malmö med direkt anslutning till E6/E20 och nära anslutning till Inre Ringvägen, E22 samt Västkustvägen. Området präglas av etablerade verkstäder, fordonsservice och lättindustri och erbjuder dessutom ett enklare serviceutbud med butiker, lunchrestauranger och kaféer. Det finns goda kollektivtrafikförbindelser med buss till centrala Malmö.
Omgivning
Närhet till Spillepengens fritidsområde
Kommunikationer
Goda kollektivtrafikförbindelser med buss till centrala Malmö
Planlösning
Se bilder / PDF.
Parkering
Goda parkeringsmöjligheter i anslutning till fastigheten
Service
Enklare serviceutbud av butiker och lunchrestauranger i området
Vägbeskrivning
Direkt anslutning till E6/E20 och nära anslutning till Inre Ringvägen, E22 samt Västkustvägen.
Skyltläge
Bra exponering av skyltläge ut mot Arlövsvägen
Närliggande företag
Best Transport, NetonNet, Axfood Sverige, ProBike och StrongPoint Labels, Areco





















