Arendalsvägen 35, Kungsbacka - Hede-Borgås, Kungsbacka
MIKE Kommersiella Lokaler AB
Annons plus387 m²
Hyra: Ej angiven
Tillträde: Ej angivet
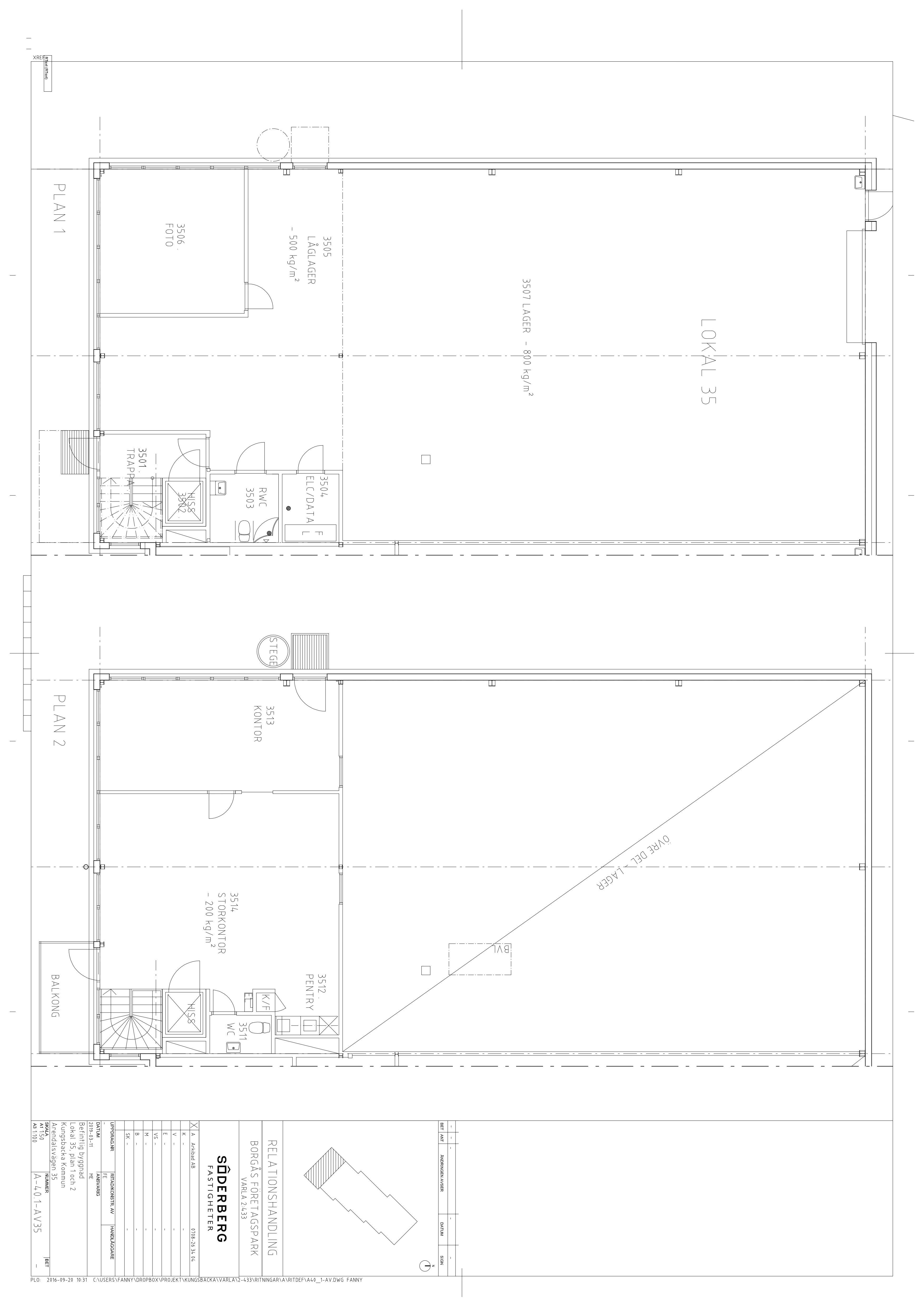
Kombilokal 387 kvm med höglager och kontor i gavelläge¨!
Modern kombilokal i gavelläge – 387 kvm med höglager, kontor och hiss
Nu finns möjlighet att hyra en mycket fräsch kombilokal i gavelläge med genomgående hög standard och smart planlösning. Lokalen passar perfekt för företag som söker en kombination av lager, kontor och showroom/studio i representativa lokaler.
Fakta
Total yta: ca 387 kvm
Höglager: ca 201 kvm
Lågdel / plocklager / produktion: ca 93 kvm
Övervåning (kontor): ca 93 kvm
Gavellokal med stora fönster och rikligt ljusinsläpp
Hiss mellan våningsplan
Toalett på båda planen
Mycket bra standard med moderna material och ytskikt
Entréplan:
Rymligt höglager med generös takhöjd och port i markplan.
Lågdel som lämpar sig för plocklager, lätt produktion eller mottagning.
Entré med wc samt möjlighet till mindre kontor, showroom eller kundmottagning.
Övre plan:
Ljusa och öppna kontorsytor med pentry/kök och gott om utrymme för flera arbetsplatser.
Möjlighet att inreda mötesrum, showroom eller studio.
Wc även på övre plan samt hiss för enkel tillgänglighet.
Övrigt
Gavelläge ger extra ljus och trevlig arbetsmiljö
Parkeringsmöjligheter i direkt anslutning till lokalen
Lokalen håller mycket god standard och är inflyttningsklar
Lokaltyper
Typ: Kontor, Lagerlokal
Minsta storlek: 387 m²
Största storlek: 387 m²
Annonsinformation
Publicerad: 2025-11-12
Objektsnummer: 41993690
Karta
Bilder på lokalen
Arendalsvägen 35 Arendalsvägen 35 Arendalsvägen 35 Arendalsvägen 35 Arendalsvägen 35 Arendalsvägen 35 Arendalsvägen 35 Arendalsvägen 35 Arendalsvägen 35 Arendalsvägen 35 Arendalsvägen 35 Arendalsvägen 35 Arendalsvägen 35 Arendalsvägen 35 Arendalsvägen 35 Arendalsvägen 35 Arendalsvägen 35 Arendalsvägen 35 Arendalsvägen 35




















